Planirani objekat u KO Vračar; Vizuelizacija: Studio TEKTO
Novi objekti

Brixwell Investment planira izgradnju sedmospratnice kod Čuburskog parka

U sklopu objekta od preko 6.000 kvadrata projektovano je 14 stambenih jedinica i isto toliko poslovnih apartmana, kao i dva lokala i 50 parking mesta.

Beogradski Sekretarijat za urbanizam i građevinske poslove stavio je u petak na javni uvid urbanistički projekat za izgradnju stambeno-poslovnog objekta na uglu ulica Černiševskog, Maksima Gorkog i Orlovića Pavla u KO Vračar.

Nosilac izrade predmetnog urbanističkog projekta je firma Studio TEKTO iz Stare Pazove, kao odgovorni projektant potpisana je Marjana Ljevaja, dia, dok je investitor preduzeće Brixwell Investment d.o.o. iz Beograda.

Pročitajte još na Gradnja.rs:

Ortofoto prikaz lokacije

Osam objekata predviđeno za rušenje

Urbanističkim projektom obuhvaćen je prostor koji zahvata cela katastarska parcela 2114/1 KO Vračar. Površina prostora obuhvaćenog UP-om iznosi ukupno 778 m².

Predmetna parcela se nalazi na teritoriji katastarske opštine Vračar, na uglu Ulica Maksima Gorkog, Ulice Černiševskog i Orlovića Pavla, u neposrednom okruženju Čuburskog parka.

Na predmetnoj lokaciji trenutno se nalazi osam objekata, koji su predviđeni za rušenje pre izgradnje novoplaniranog objekta.

Vizuelizacija: Studio TEKTO

U sklopu objekta projektovano je 14 stambenih jedinica, 14 poslovnih apartmana, 2 lokala i 50 parking mesta.

Povod za izradu idejnog arhitektonskog rešenja je izgradnja objekta, spratnosti 3Po+P+6+Ps, koji je projektovan kao stambeno-poslovni.

Objekat je funkcionalno podeljen u tri dela, stambeni, poslovni i pomoćni (garaža), a u sklopu objekta projektovano je 14 stambenih jedinica, 14 poslovnih apartmana, 2 lokala i 50 parking mesta.

Osnova podruma -3

Stambeni i poslovni ulaz u objekat

Sve tri podrumske etaže fizički su podeljene na dva dela po vertikali, jedan deo pripada ulazu A, a drugi ulazu B, te su tako i garaže podeljene na garažu A i garažu B.

Na prizemlju, na frontalnoj fasadi objekta ka ulici Černiševskog, smešteni su ulazi u objekat (stambeni – A i poslovni – B) kao i pristup jednom od auto-liftova.

Lokalima (2) koji su smešteni na frontalnoj fasadi pristupa se direktno sa ulice, tj. omogućen im je pristup iz ulice Orlovića Pavla, direktno sa trotoara, kao i auto-liftu kojim se pristupa delu garaže A.

Vizuelizacija: Studiо ТЕKТО

Bruto površina objekta iznosi ukupno 6.375 kvadratnih metara 1.955 podzemno i 4.420 m² nadzemno.

Galerijski prostor smešten je iznad lokala 1 i 2, sa pristupom koji je omogućen iz svake pripadajuće funkcionalne celine zasebno, i nije mu moguće pristupiti iz zajedničkog prostora.

Što se tiče bruto površine, ona za ceo objekat iznosi ukupno 6.375 kvadratnih metara (1.955 podzemno, 4.420 m² nadzemno), uz napomenu da galerija nije ušla u obračun predstavljen u UP-u.

Osnova 2./1. sprata

Na javnom uvidu do 12. januara

Zainteresovana lica mogu tokom javne prezentacije da izvrše uvid u Urbanistički projekat, kao i da svoje primedbe i sugestije na planirana rešenja u pisanoj formi dostave na pisarnicu Sekretarijata za urbanizam i građevinske poslove, Kraljice Marije broj 1, najkasnije do 12. januara 2024. godine.

Grafički prilozi

Situacija sa osnovom krovnih ravni
Situacija sa osnovom krovnih ravni
Osnova podruma -3
Osnova podruma -3
Osnova prizemlja
Osnova prizemlja
Osnova 2./1. sprata
Osnova 2./1. sprata
Osnova povučenog/4. sprata
Osnova povučenog/4. sprata
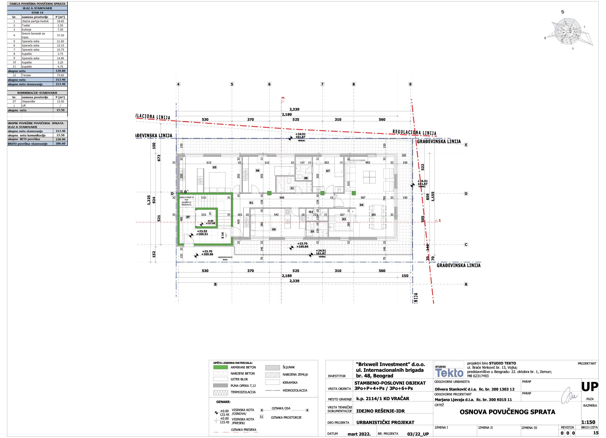
Osnova povučenog sprata
Osnova povučenog sprata
Presek 1-1
Presek 1-1
Presek 2-2
Presek 2-2

3D vizuelizacija

Vizuelizacija: Studio TEKTO
Vizuelizacija: Studio TEKTO
Planirani objekat u KO Vračar; Vizuelizacija: Studio TEKTO
Planirani objekat u KO Vračar; Vizuelizacija: Studio TEKTO
Vizuelizacija: Studio TEKTO
Vizuelizacija: Studio TEKTO
Vizuelizacija: Studio TEKTO
Vizuelizacija: Studio TEKTO
Vizuelizacija: Studio TEKTO
Vizuelizacija: Studio TEKTO
Vizuelizacija: Studio TEKTO
Vizuelizacija: Studio TEKTO

Izabrali smo za vas...

Postani deo Gradnja zajednice

Najnovije vesti s našeg portala svakog petka u vašem sandučetu.

Dizajn enterijera

Srodni tekstovi

2 komentara

  1. Kele

    Da bi bilo javnog uvida morala bi postojati javnost. Kako to nije slučaj onda je ovo sve besmisleno.j

  2. Arhitekta

    Nastavlja se silovanje Vračara.
    Rokajmo samo maximalne kvadrature i spratnosti dok ne izmuzemo sve što se izmusti može.

Ostavite odgovor

Obavezna polja *