Kućni ljubimci u fokusu dizajna: Kuća u Japanu oblikovana iz mačje perspektive
Čitava organizacija odvija se oko razigranog spiralnog stepeništa, uz dosta uglova i udubljenja usaglašenih sa potrebama i vlasnika i njihovih ljubimaca.
Sa lokacijom u gradu Kamakura, na sat vremena od Tokija, A Cat Tree House je šarmantan stambeni i radni prostor koji je arhitekta Tan Jamanuči dizajnirao za sebe, svoju partnerku i njihove dve mačke.
Kao ponosni vlasnici kućnih ljubimaca već 10 godina, njih dvoje odlučili su se da projekat oblikuju iz perspektive svojih krznenih drugara, primenivši dizajnerska znanja slušajući, kako kažu, „mačji jezik“.
Pročitajte još na Gradnja.rs:

U potrazi za savršenim mestom za boravak
Potrebe mačaka arhitekta je sumirao u tri kategorije. Na prvom mestu, tu je mogućnost da biraju željeni nivo temperature u bilo koje doba dana, s obzirom da mačke mogu da osete temperaturne razlike koje ljudi ne mogu, a stalno su u pokretu tražeći savršeno mesto za boravak.
Zatim, tu je bila želja da mačke budu u istoj prostoriji kao i njihovi vlasnici, a da pritom zadrže i svoj vlastiti prostor, te na kraju – potreba za više sigurnih mesta za skrivanje, jer vole da imaju mogućnost izbora i često menjaju mišljenje o tome gde se osećaju najugodnije u zavisnosti od doba dana i godine.
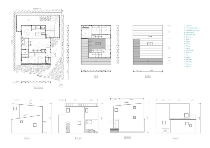
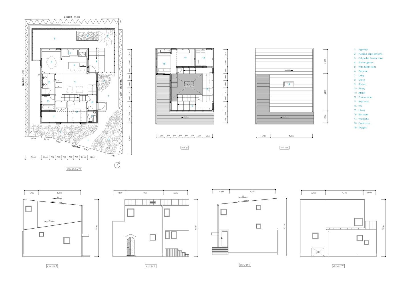
Imajući ove smernice na umu, prostor je zamišljen kao veliko spiralno stepenište, poznato kao karakola, sa dosta uglova i udubljenja usaglašenih sa potrebama i vlasnika i njihovih ljubimaca.

Nivoi su dizajnirani na osnovu gabarita naših mačaka, što je dovelo do toga da imamo 23 različita nivoa.
Kako objašnjava Tan Jamanuči, spiralno stepenište organizovano je oko atrijuma sa svetlarnikom u samom centru kuće.
„Nivoi su dizajnirani na osnovu gabarita naših mačaka, što je dovelo do toga da imamo 23 različita nivoa“ – rekao je japanski arhitekta za Designboom.
Spiralno stepenište omogućava otvorene poglede ka čitavom prostoru, a formiranje svakog nivoa stepenikom dužine 90 centimetara, mačkama je omogućeno da konstantno drže određenu distancu ili da na svakom od nivoa mirno spavaju.
Bufer za kontrolu temperature i vlažnosti
Da bi dizajnirao karakolu, Jamanuči je primenio segmente tamasudarea, ploča napravljenih od labavo isprepletanih bambusovih štapića koje se koriste za tradicionalni japanski ulični performans, gde ga izvođači uvijaju, savijaju i proširuju kako bi formirali različite oblike.
„Standardni nivo poda postavljen je jedan metar iznad nivoa zemlje, stvarajući tampon zonu kojom se uvodi vazduh iz spoljašnjosti, ali i postavljaju cevi za toplu vodu u sistemu podnog grejanja. Na taj način smo dizajnirali bufer za kontrolu temperature i vlažnosti“ – navodi arhitekta.

Kada imamo neočekivane posetioce, svaka od soba funkcioniše kao sklonište za mačke.
Na svakom od uglova karakole su smešteni spavaća soba, gostinska soba, studio, trpezarija i kupatilo. Kako je ovo podjednako i arhitektonski studio i dom, neizbežno je da u prostoru često borave i gosti i klijenti.
„Kada imamo neočekivane posetioce, svaka od soba funkcioniše kao sklonište za mačke“ – objašnjava Tan Jamamuči predstavljajući projekat.
Kako dalje navodi, planinski pogled na Kamakuru bio je inspiracija za dizajn rukohvata, koji je implementiran u atrijum kao prevencija od pada.

Pojednostavljena konstrukcija stapa se s planinama oko Kamakure, dok istovremeno ima jednostavnu estetiku.
Na zidu koji prati spiralno stepenište, arhitekta je dizajnirao i sistem polica za knjige, pri čemu, za mačke, police predstavljaju udobno mesto za neometanu dremku.
Gabarit kuće kreiran je od dva volumena u formi slova L, čijim spajanjem je nastala pojednostavljena konstrukcija koja se stapa sa planinama oko Kamakure, dok istovremeno ima jednostavnu estetiku.
„Pažljivo smo osmislili položaj i visinu prozora kako bi prolaznici i posetioci mogli da cene ljupkost mačaka kao dela arhitektonskog enterijera i pejzaža“ – navodi Jamanuči

80 vrsta biljaka u prilaznoj zoni
Bašta koja okružuje objekat podeljena je na dve zone, gde jednu čine prilazna zona koja vodi do ulaza i bašta orijentisana prema prednjem putu.
Druga zona je u formi terase i okružena je zidom sa zadnje strane visokim 1,8 metara. U prilaznoj zoni raste oko 80 vrsta biljaka, a 20 vrsta jestivog bilja raste u zoni terase.
Grafički prilozi
Foto-galerija














Faktografija
A Cat Tree House
Kamakura, Japan
94 m²
2023.

