Avala Park: U Vrčinu niče potpuno energetski nezavisno modularno naselje
Ove kuće od oko 130 kvadrata imaju prostrana dvorišta, a organizovane su tako da dnevni prostor svakog objekta pruža lep pogled na Avalu i Avalski toranj.
Smešten u neposrednoj blizini Beograda, na 20 minuta kolima od mosta Gazela, Avala Park je naselje sastavljeno od devet modularnih kuća namenjenih za život i odmor u energetski efikasnom objektu koji ima mogućnost da funkcioniše potpuno nezavisno od javne infrastrukture.
Cilj je bio postići najbolji odnos cene i kvaliteta, uz veliku prostornu fleksibilnost kuća i prilagodljivost enterijera potrebama pojedinačnih korisnika. Osim toga, zahtev klijenta bio je i da se maksimalno iskoriste prostorni kapaciteti parcele, uz formiranje karaktera stambene zajednice.
Pročitajte još na Gradnja.rs:
- Modularne kuće sa kapcima za kontrolu osvetljenja i stepena zaštite
- Puževa kućica: BIG-ov modularni stambeni kompleks organizovan oko ribnjaka

Prilagođavanje enterijera
Specifičnost ovog mini-naselja leži u tome što svaki objekat nudi mogućnost prilagođavanja enterijera, što znači da parcele u potpunosti prate potrebe vlasnika.
Kako objašnjavaju iz studija Gušić Architecture, koji autorski potpisuje projekat, oblik parcele i topografija terena opredelili su urbanistički sklop susedstva.

Raspored ispunjava zahtev da dnevni prostor svakog objekta ima pogled na Avalu i Avalski toranj.
Kuće su oblikovane tipski (identično), a postavljene su u linearni niz tako da svaka ima prostrano dvorište, dok potporni betonski zid razdvaja dve susedne parcele i niveliše teren koji je u nagibu.
Raspored ispunjava zahtev da dnevni prostor svakog objekta ima pogled na Avalu i Avalski toranj uz maksimalnu površinu parcele koja pripada objektu (oko 12–13 ari).

Materijalizacija fasade
Fasada kuća je kombinovana. Čine je velike bele površine kontakt fasade (termoblok i kamena vuna), ali i delovi ventilisane fasade koju prekrivaju drvene letvice.
Na fasadi dominiraju veliki stakleni portali u punoj visini trema (h 240cm). Stepen njihove otvorenosti se kontroliše drvenim zastorima tretiranim na isti način kao fasada. Drveni zastori otvaraju kuću u pravcu severoistoka i severozapada povezujući je sa prirodnim okruženjem.
Sve kuće imaju dvovodan, asimetričan krov pokriven falcovanim limom. Kos krov omogućava formiranje različitih spratnih visina u enterijeru, što doprinosi bogatstvu prostornog doživljaja.

Grejanje i hlađenje objekata rešeno je sistemom toplotnih pumpi – čija je pozicija pažljivo promišljena.
Na krovu kuća se nalazi i solarna elektrana kompanije Solarni. Grejanje i hlađenje objekata rešeno je sistemom toplotnih pumpi – čija je pozicija pažljivo promišljena.
Tu je i mogućnost eventualnog priključenja sistema na peć na čvrsto gorivo (drvo) sa otvorenim ložištem, čime se uz sistem solarnih panela dobija objekat potpuno nezavisan od javne infrastrukture.
Podno grejanje izvedeno je sa granitnom keramikom, a umesto bazena, predviđena je mogućnost ugradnje džakuzi hidromasažne kade iz široke ponude kompanije EuroDOM.
Svaki objekat poseduje prostrano dvorište, privatni džakuzi (opcija) i garažu sa dva dodatna parking mesta, kao i energetski efikasan sistem grejanja i pripreme tople vode u sistemu sa toplotnom pumpom.

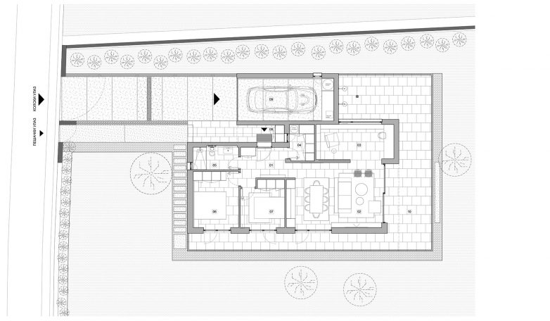
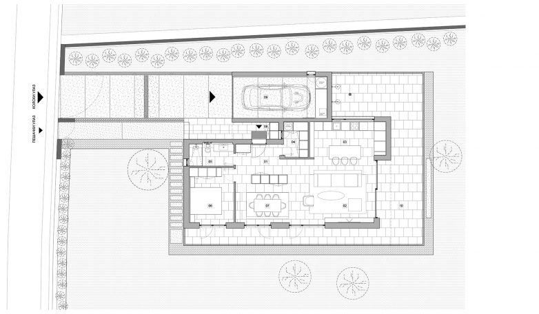
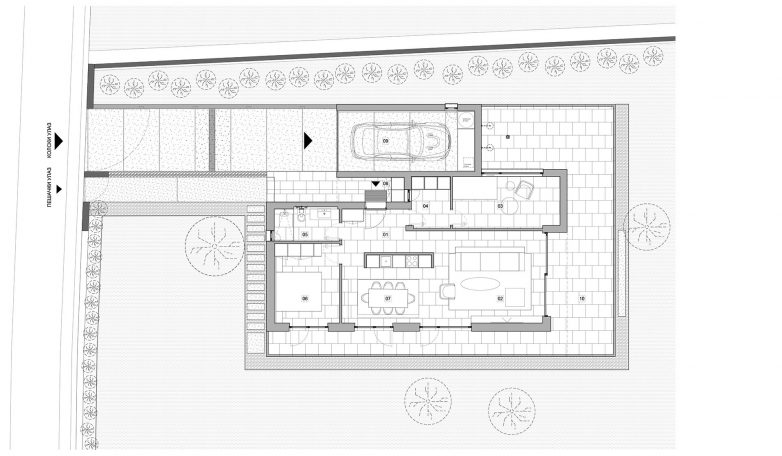
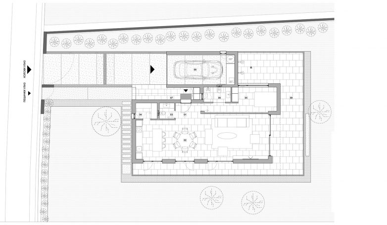
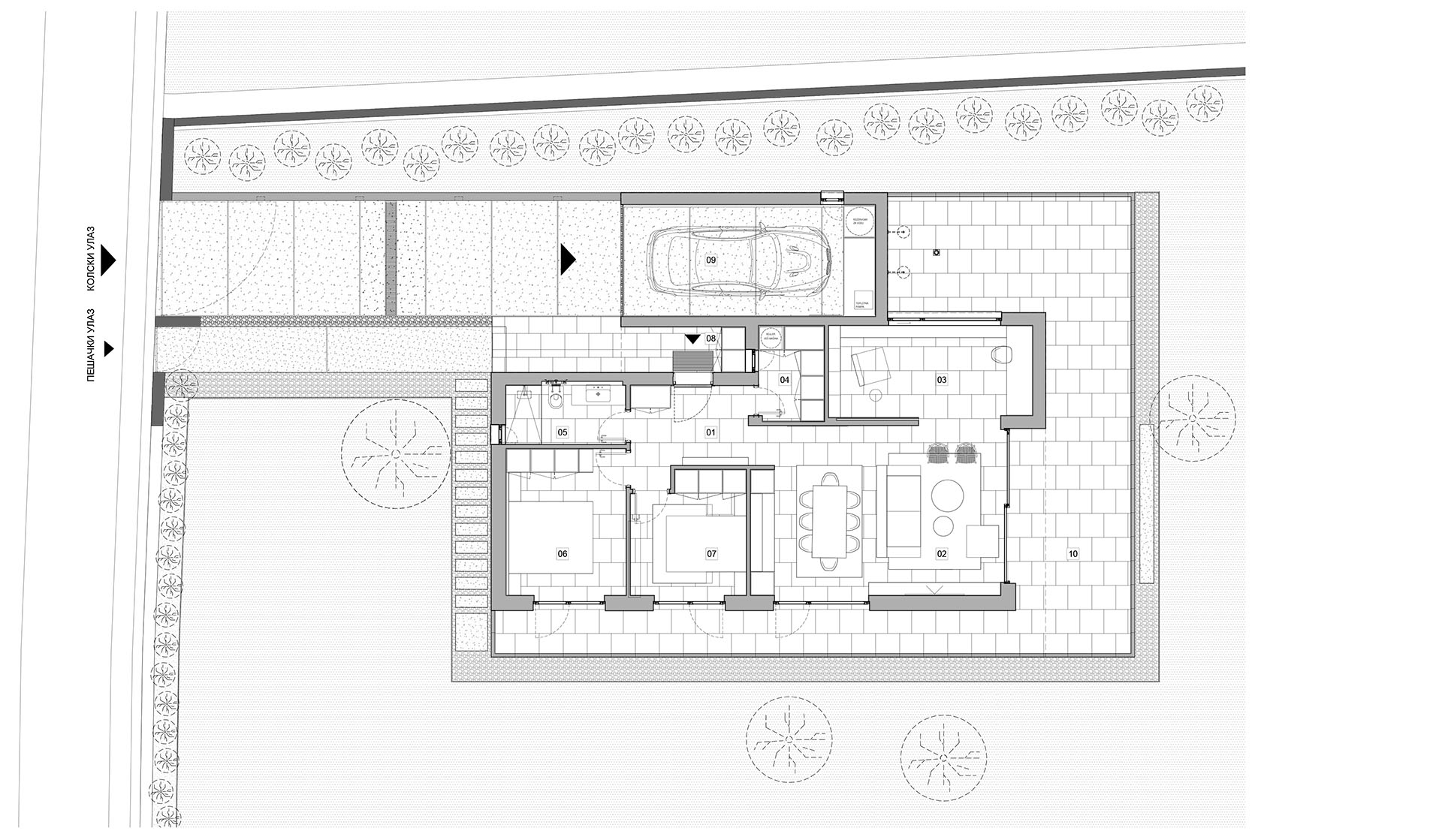
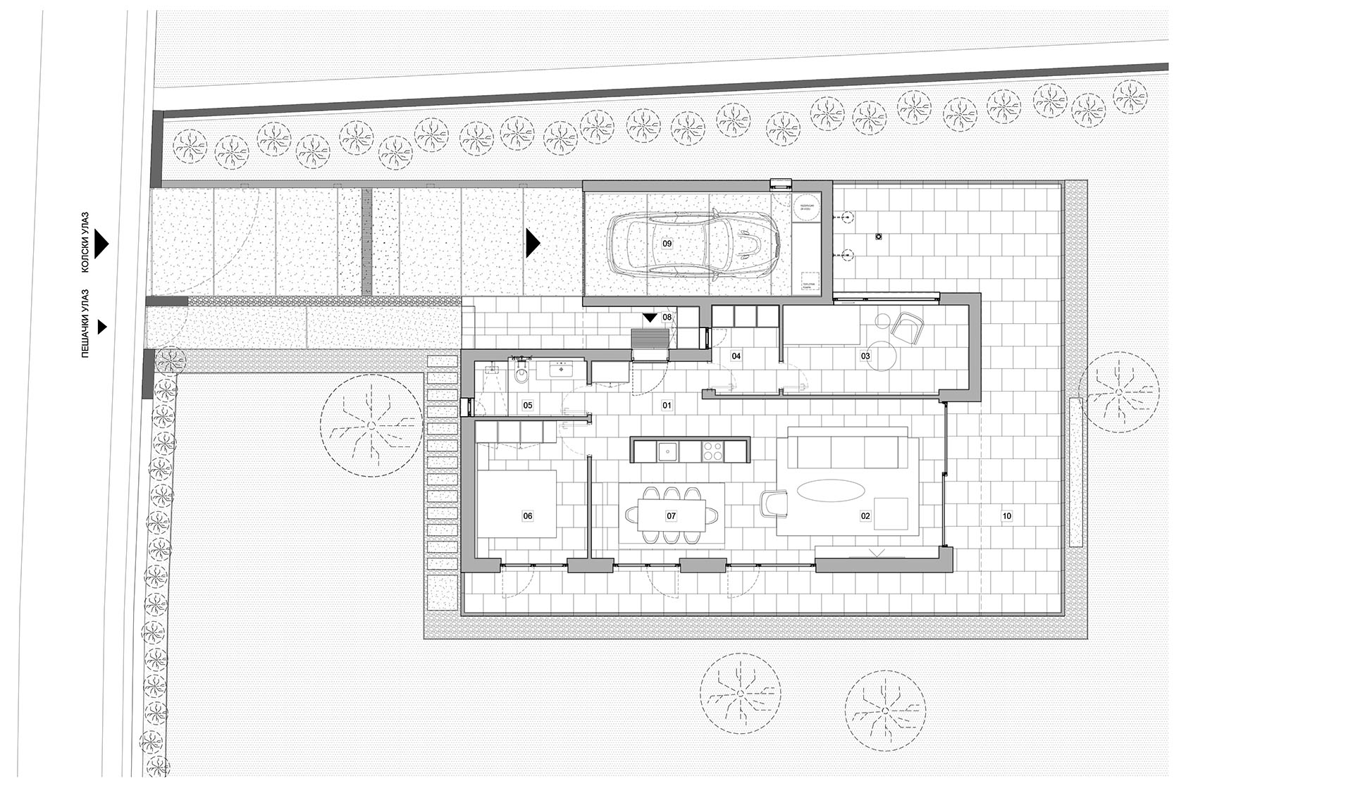
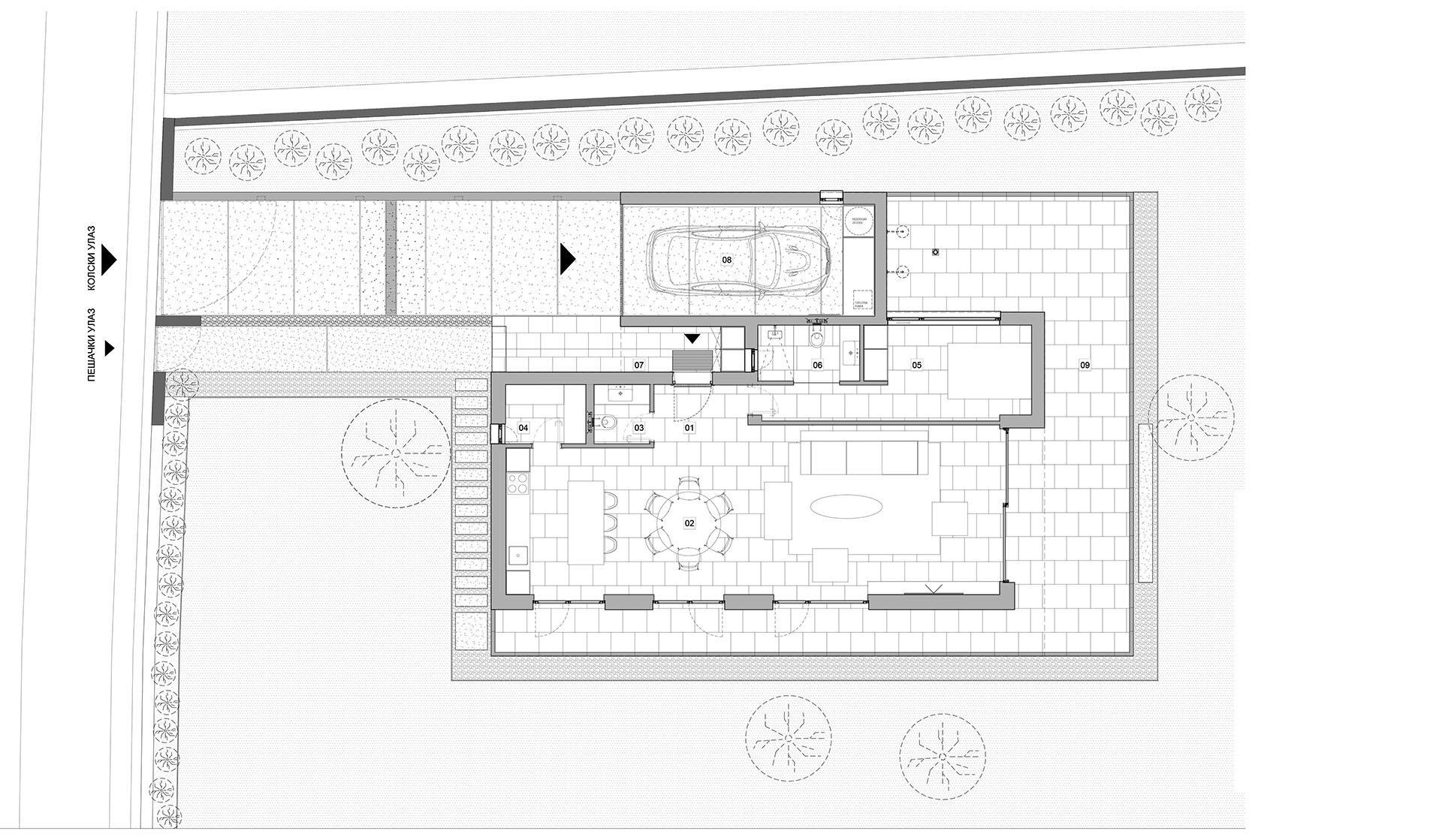
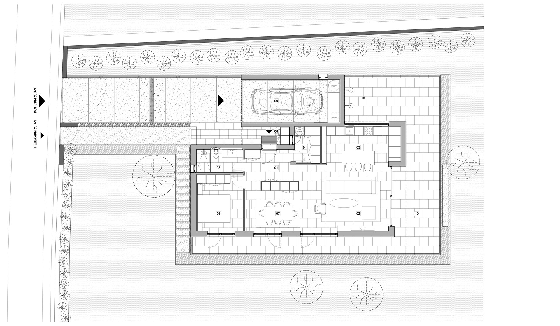
5 različitih prostornih modula
Kupcima na raspolaganju stoji 5 osnovnih prostornih modula unutrašnje organizacije, površine od 129 (moduli 1 i 5) i 130 kvadratnih metara (moduli 2, 3 i 4).
Po svojoj organizaciji, kuće variraju od trosobnih do jednosobnih prostornih struktura. Enterijer kuće zamišljen je kao prilagodljiv okvir različitim potrebama i tipovima korisnika. Svi elementi su pomerljivi osim centralnog nosećeg stuba, koji daje fleksibilnost prostornoj organizaciji.
Svi unutrašnji pregradni zidovi su suvomontažni od gips-kartonskih pregrada sa ispunom. Što se tiče pejzažnog uređenja, predviđeni su travnjak, živa ograda prema susednim parcelama i ulazni deo sa zimzelenim biljkama.

Blizina grada i auto-puta
Ono što karakteriše ovo naselje u Vrčinu jeste i blizina glavnog grada i auto-puta što ga čini lako dostupnim i jednostavnim za komunikaciju u svim pravcima.
Grafički prilozi






Galerija rendera










Faktografija
Avala Park – Naselje modularnih kuća
Vrčin, Grad Beograd
2023.
128.65 m2
1.750 evra/m2

Kakve veze ovo ima sa modularnom gradnjom koja? Modularna gradnja su prefabrikati koji se proizvode u proizvodnji i montiraju na lokaciji. Koliko sam ovde video ovde nema nista od toga samo marketinški trik da se privuče pažnja.