U Braće Baruh na Dorćolu planirana poslovna zgrada po projektu studija Zabriskie
Pored Mie Dorćol niče objekat od 3.920 kvadrata, na čijoj fasadi dominira crvena opeka.
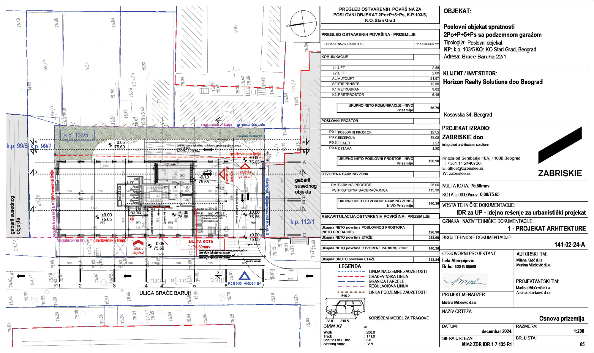
Sekretarijat za urbanizam i građevinske poslove Beograda omogućio je javni uvid u urbanistički projekat za izgradnju poslovnog objekta sa podzemnom garažom, koji investitor Horizon Realty Solutions planira u opštini Stari grad, na adresi Braće Baruh 22/1.
Nosilac izrade predmetnog urbanističkog projekta je beogradski IBM Consult, kao odgovorni urbanista potpisana je Ivana Stanojević, dok je obrađivač idejnog rešenja studio Zabriskie, takođe iz Beograda, sa Lelom Alempijević kao odgovornim projektantom.
Pročitajte još na Gradnja.rs:

Uz Miu Dorćol
Granica urbanističkog projekta je granica katastarske parcele 103/5 u KO Stari grad. Površina obuhvata UP-a iznosi 651 m².
Parcela je smeštena u bloku između Ulice braće Baruh, Mike Alasa, Solunske i Ulice Sibinjanin Janka – odmah pored Mie Dorćol nagrađivane zgrade koju je takođe potpisao Zabriskie.
Na lokaciji je izgrađeno više objekata (stambeni i pomoćni) prizemne spratnosti, koji su svi predviđeni za rušenje.

Kolski pristup parceli predviđen je sa saobraćajnice – iz ulice Braće Baruh, iz koje je pozicioniran i ulaz u objekat.
Projektnom dokumentacijom predviđa se izgradnja novog poslovnog objekta, nadzemne spratnosti P+5+Ps, sa dve podzemne garaže na dva nivoa.
Objekat je postavljen u okviru definisane zone građenja i po svom položaju na parceli pripada tipologiji jednostrano uzidanih objekata.
Kolski pristup parceli predviđen je sa saobraćajnice – iz ulice Braće Baruh, iz koje je pozicioniran i ulaz u objekat.
Ostvareno 40 parking mesta
Podrumske etaže projektovane su kao garaže sa servisno-tehničkim prostorijama. Garaže su projektovane kao zasebne funkcionalne celine sa sopstvenim ulazima.
Korisna površina Garaže 1 je 326 m², što je svrstava u kategoriju malih garaža. Korisna površina Garaže 2 je 641 m², što je svrstava u kategoriju srednjih garaža.
Ukupno je ostvareno 40 parking mesta, od toga dva parking mesta za osobe sa invaliditetom. U okviru Garaže 1, na nivou Po1, predviđen je prostor za parkiranje bicikala.

Bruto površina objekta iznosi 3.920 metara kvadratnih, od čega na nadzemni deo otpada 2.815 m², a na podzemni ostatak od 1.105 m².
U prizemlju, osim ulazne zone sa recepcijom, predviđen je poslovni prostor trostrano orijentisan ka ulici, ka unutrašnjem dvorištu i prema KP 99/6.
Spratne etaže i povučeni sprat namenjeni su poslovanju, sa pratećim servisno-tehničkim prostorijama, navodi se u idejnom rešenju.
Bruto površina objekta iznosi 3.920 metara kvadratnih, od čega na nadzemni deo otpada 2.815 m², a na podzemni ostatak od 1.105 m².
Primedbe i sugestije u Kraljice Marije 1
Zainteresovani mogu tokom javne prezentacije da izvrše uvid u urbanistički projekat, kao i da svoje primedbe i sugestije na planirana rešenja u pisanoj formi dostave na pisarnicu Sekretarijata za urbanizam i građevinske poslove, Kraljice Marije br. 1, najkasnije do 20. marta 2025. godine.










Zar Baruh nisu bile sestre?