Kako je stara kuća u Petrovaradinu postala savremen dom sa bazenom
Klasična vojvođanska kuća dobila je potpuno osvežen izgled s modernim materijalima kao i dnevni boravak koji se portalima otvara ka dvorištu i vodenoj površini.
Nakon kuće Corten Residence, koja je u februaru ove godine izazvala veliko interesovanje naših čitalaca, arhitekta Goran Obradović iz firme Numerus Inženjering potpisuje i projekat rekonstrukcije kuće u Okrugićevoj ulici u Petrovaradinu.
Kako autor arhitekture navodi za naš portal, želja klijenta je bila rekonstruisati objekat građen šezdesetih godina prošlog veka i dati mu savremenu notu, a kakvim je idejnim rešenjem odgovoreno na taj zadatak otkrijte u redovima koji slede.
Pročitajte još na Gradnja.rs:
- Umesto rušenja: Potpuna transformacija starog ambara u Donjoj Trnavi
- Kako su rekonstrukcijom objekta u Zenici dobijeni jedan mali bazen i kuća

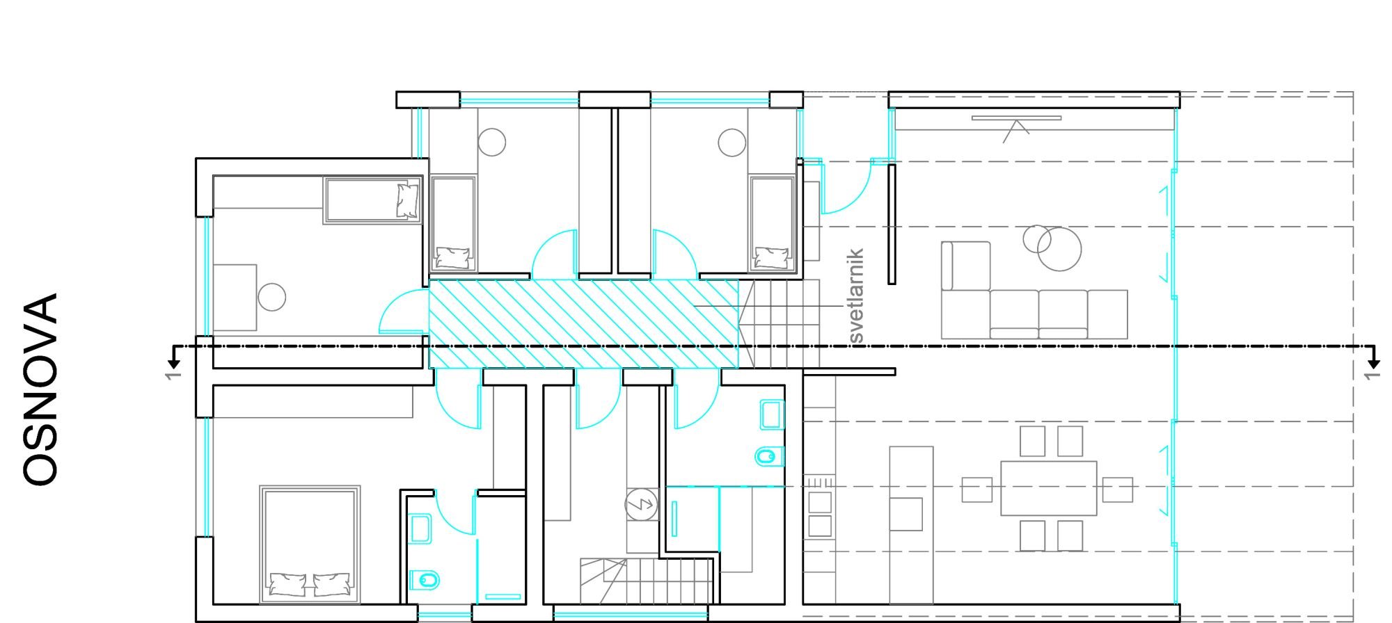
Dobar kostur
Originalni objekat je bio u dosta lošem stanju ali konstruktivno dobar. Stolarija je bila drvena i nefunkcionalna, fasada je otpadala na pojedinim delovima, a unutrašnja obrada je takođe bila zastarela.
“Parketi, obrada podova i zidova – sve je to datiralo iz vremena kad je objekat građen i nije odgovaralo vlasnicima koji su želeli udobnost, kvalitetne materijale i savremenu estetiku”, objašnjava naš sagovornik.
Dogradnja dnevne soba sa kuhinjom i trpezarijom je skoro jednake površine kao postojeći deo kuće.
Od stare konstrukcije, zadržan je ceo deo objekta ka ulici – raspored sa dve sobe ka ulici, kupatilom i još jednom sobom, koja je sad pretvorena u garderober.
Porušen je manji deo objekta ka dvorištu i umesto njega je dograđena prostrana dnevna soba sa kuhinjom i trpezarijom, a ta dogradnja je skoro jednake površine kao postojeći deo kuće.

Zadržan raspored vojvođanske kuće
Oblikovanje novog rešenja je direktno diktirano oblikovanjem postojećeg objekta koji su autori hteli da zadrže u što većoj meri.
Tako je zadržan raspored koji je kuća prvobitno imala, a to je standardni raspored vojvođanske kuće sa dve sobe prema ulici na koje se dalje nastavljaju funkcije u dubinu prema dvorištu.
“Kuća je ostala prizemna, a ono što je dodato su savremena materijalizacija, dnevni boravak koji se portalima otvara ka dvorištu i bazen”, navodi Obradović.

Objekat je produžen samo prema dvorištu, što sa ulice nije vidljivo.
Kada je okolna arhitektura u pitanju, saznajemo da se kuća nalazi u mirnoj i neprometnoj ulici, u kojoj su svi postojeći objekti jednoporodični i spratnosti P ili P+1.
Rekonstrukcija objekta je izvedena tako da ne narušava okolinu – spratnost, osnovni gabarit i odnos prema ulici su zadržani, a objekat je produžen samo prema dvorištu, što sa ulice nije vidljivo, objašnjava sagovornik Gradnje.

Čelik, drvo i staklo
Konstrukcija novog objekta je od čelika, sa čeličnom rešetkom koja nosi krov, dok su na fasadi primenjeni drvo i velike staklene površine.
“U projektovanju nije bilo nekih većih izazova, imajući u vidu to da smo imali postojeći objekat na koji je samo bilo potrebno dodati prostran dnevni boravak i urediti dvorište”, ističe Obradović.
Postojeći jednovodni krov, koji je bio u dosta lošem stanju, pretvoren je u ravan neprohodni krov.
Pri izvođenju pak najveći izazov predstavljao je postojeći jednovodni krov, koji je bio u dosta lošem stanju, a koji je pretvoren u ravan neprohodni krov.
“Takođe, želeli smo da hodniku koji spaja dnevnu zonu sa noćnom obezbedimo prirodno osvetljenje, što smo postigli uvođenjem svetlarnika koji izlazi iz ravnog krova”, dodaje naš sagovornik.

Dvorište kao deo enterijera
Kuća sadrži četiri spavaće sobe, od čega je jedna pretvorena u garderobu, dva kupatila, vešernicu i prostran dnevni boravak sa kuhinjom i trpezarijom.
Sobe, kupatila i vešernica su smeštene u stari deo objekta, a prostrani dnevni boravak je zajedno sa kuhinjom i trpezarijom smešten u novi deo prema dvorištu, otvara se ka njemu velikim staklenim portalima.
Enterijer je, navodi Obradović savremeno oblikovan, a otvaranjem dnevnog boravka ka spolja i dvorište postaje deo enterijera.

Sve površine između bazena i objekta su ostavljene kao travnate.
Pejzažno uređenje je oblikovano tako da se zadrži sto veća površina pod travom.
“Izazov je bio zadržati velike zelene površine ali i formirati popločano mesto za sedenje i boravak oko bazena”, ističe sagovornik našeg portala.
Ovo je, dodaje, rešeno tako što je bazen sa pomoćnom kućicom i nadstrešnicom za sedenje smešten uz samo dno dvorišta, uz među sa susednom parcelom, a sve površine između bazena i objekta su ostavljene kao travnate.
Grafički prilozi
Foto-galerija
Faktografija
- naziv objekta: Porodični stambeni objekat
- mesto: Petrovaradin
- investitor: privatno lice
- autor projekta: Goran Obradović
- godina projektovanja: 2019.
- godina izgradnje: 2020.
- površina: 140 m2
- spratnost: Po+P
- autorka fotografija: Đina Mandić
- izvođači: Numerus Inženjering











Šteta što nema fotografija restaurirane ulične fasade, to je sigurno bio izazov
Kad imas para i od babe napravis devojku eto takoo….
Lako, imaš milion evra viška i toje to, dve ostalo je preseravanje .
Sa stanovišta arhitekture fenomenalno, ali sa stanovišta pejzažne arhitekture katastrofalno. Koliko god bio izazov i impozantno urađeno rešenje, pejzažno uređenje ga čini jezivo jeftinim. Ako se neko ne razume u tu struku bolje da se njom ni ne bavi nego da se ovako bruka.
Prolazim kroz tu ulicu svakodnevno. Ispratio sam rekonstrukciju i kuca je zaista super, ali sam na kraju ipak razocaran finalnim izgledom. Sa ulice kada se gleda ima ozbiljan nedostatak u dizajnu – jednostavno je previse odsecena i fali joj krov ili nesto da uoblici tu kocku kako sada izgleda, jer bukvalno fali nesto iznad kao da je nedovrsena…
Svidja mi se