Nova arhitektonska ikona u Kragujevcu: Zgrada CL8 menja lice centra grada
Objekat u Ulici Cara Lazara ističe se klinker fasadom, pažljivo biranim materijalima i funkcionalnim stanovima.
Arhitektonski studio URED iz Beograda realizovao je u Kragujevcu još jednu stambenu zgradu – CL8, objekat sa deset funkcionalno optimizovanih stanova i jednim lokalom, smešten u istorijskom jezgru grada, u neposrednoj blizini glavne gradske ose.
Projekat u Ulici Cara Lazara, kažu arhitekte, osmišljen je kao svestan odgovor na urbani kontekst: čovekomerna razmera i pažljivo odabrani materijali poštuju tradicionalne principe kompozicije fasade, dok savremeni arhitektonski izraz uspostavlja dijalog između nasleđa i savremenosti.
“Ključna karakteristika projekta je njegova monohromatska pojavnost, postignuta sinergijom boje mineralnog maltera, klinker listela, fuga i aluminijumske stolarije, što zgradi daje jedinstvenu vizuelnu prepoznatljivost”, navode iz studija URED za Gradnju.
Pročitajte još na Gradnja.rs:

Materijalizacija i koncept fasade
Fasada je obložena klinker listelama, postavljenim u specifičnu ritmičku kompoziciju, dok su prizemlje, zalučeni deo ulaza i kosine iznad prozora (koje maskiraju roletne) izrađeni od mineralnog maltera.
„Monohromatski izgled nije samo estetska odluka, već i odraz namere da se jedinstvenom bojom uvežu zgrada i kontekst, ističući kontrast između glatkog mineralnog maltera i teksturisanih klinker listela bez vizuelne fragmentacije“ – kažu arhitekte.
Efekat toplotnih ostrva smanjen je kroz izbor materijala popločavanja, uvođenjem zelenih površina i novih zasada drveća.
Izgrađena na kompaktnoj parceli (manjoj od 600 m²) CL8 predstavlja jednu od poslednjih zgrada višeporodičnog stanovanja ove veličine u Kragujevcu, s obzirom na promene u urbanističkim propisima koje više ne dozvoljavaju ovakve intervencije u centru grada.
„Zahvaljujući efikasnoj prostornoj organizaciji, minimiziran je otisak objekta na zemljište, ostavljene su velike propusne površine za upijanje kišnice, a smanjen je efekat toplotnih ostrva kroz izbor materijala popločavanja, uvođenjem zelenih površina i novih zasada drveća“, navode iz URED-a.

Funkcionalnost i kvalitet stanovanja
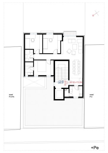
Unutrašnjost stanova, iako kompaktnih dimenzija, optimizovana je za maksimalnu funkcionalnost i udobnost, što potvrđuju i budući stanari, koji ističu prirodno osvetljenje servisnih prostorija kao jednu od glavnih prednosti ovih stanova. Iz URED-a dalje objašnjavaju:
„Skoro sva kupatila, kuhinje i centralno stepenište imaju svoje prozore orijentisane prema svetlarniku – rešenje koje je izuzetno retko u kontekstu stambene izgradnje u Kragujevcu. Ovo ne samo da poboljšava kvalitet života kroz prirodno svetlo i provetravanje, već i smanjuje potrebu za veštačkim osvetljenjem, doprinoseći energetskoj efikasnosti“.

Efikasna raspodela površina, bez nepotrebnih cirkulacionih zona, omogućava veći komfor bez puno kompromisa.
Takođe, ističu za Gradnju beogradske arhitekte, unakrsno provetravanje i optimalna osunčanost svih prostorija dodatno potvrđuju pažljivo osmišljenu prostornu organizaciju. Na kraju iz studija URED dodaju:
„Relativno mala kvadratura stanova povećava njihovu pristupačnost na tržištu, omogućavajući širem spektru kupaca da uživaju u kvalitetnom urbanom stanovanju. Dodatno, efikasna raspodela površina, bez nepotrebnih cirkulacionih zona, omogućava veći komfor bez puno kompromisa“.
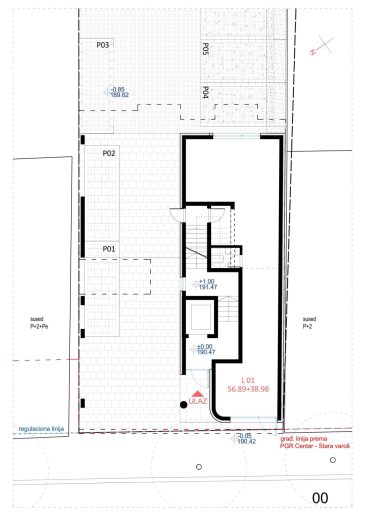
Grafički prilozi









Foto-galerija
Faktografija
CL8 – Stambena zgrada sa 10 stambenih jedinica i 1 lokalom
Ulica Cara Lazara 8, Kragujevac
Royal Standard Radosavljević d.o.o.
2023–2024.
2025.
461 m²
925 m²
Arhitektonski studio URED
Nikola Milanović, mast. inž. arh.
Jovana Bugarski, mast. inž. arh.
Gradmil d.o.o. Kragujevac











Porušiše stari centar Kragujevca zbog stanova za koje sirotinja nema para.
fino, fino. nepreteciozno. pohvale.
Elegantno rešenje.
U stan na trećem spratu se ulazi tako što se čovek provlači pored trpezarijskih stolica, baš kreativno
Ovako treba da izgleda svaka novogradnja u centru. Bravo!
Molim vas arhitekte kakvi su ovo stanovi? ovo su crtezi na kome tek treba raditi!
Prijatno sam iznenadjen fasaom. Na tome svaka cast. Stanovisu stvarno uzasni. Da li je to zasluga arhitekte ili investitora za buduce stanare i nije toliko bitno.
BETONSKI KAVEZI NIGDE DVORIŠTA NI ZELENIH POVRŠINA