Kod Mostarske petlje Harvinter planira izgradnju četvorospratnice
U objektu koji potpisuje arhitektkinja Sanja Velisavljević projektovano je osam stambenih jedinica, dva poslovna apartmana, jedan lokal i 13 parking mesta.
Nakon najave izgradnje stambenog kompleksa na Topčiderskom brdu i kondominijuma sa 12 vila kod Hajd parka, Grad Beograd oglasio je javnu prezentaciju još jednog urbanističkog projekta u opštini Savski venac, a koji se tiče izgradnje stambeno-poslovnog objekta Po+Su+P+3+Ps u Sitničkoj ulici.
Investitor je preduzeće “Harvinter” d.o.o iz Beograda, obrađivač urbanističkog projekta je „Aula” d.o.o. iz Beograda, dok projekat arhitekture potpisuje “SV Design & Development”, takođe iz Beograda, sa Sanjom Velisavljević, mia, kao odgovornim projektantom.
Pročitajte još na Gradnja.rs:
- Novi kompleks u Bloku 63: U Jurija Gagarina u planu objekat od deset spratova
- S pogledom na Kvantaš: U Novom Sadu planira se kompleks od preko 20.000 kvadrata

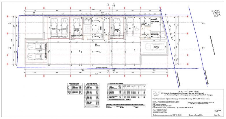
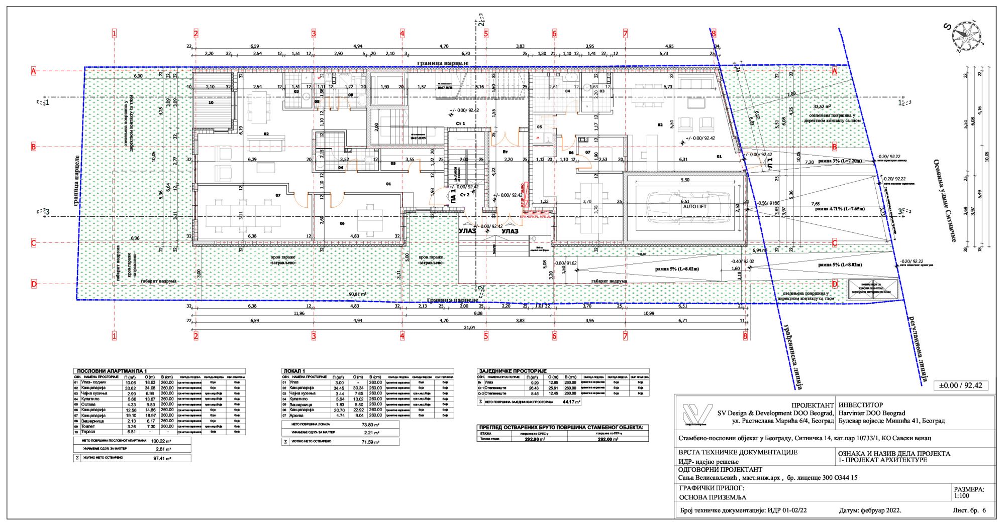
Parcela od 588 kvadrata
Katastarska parcela koja je predmet ovog urbanističkog projekta ima površinu od 588 m² i nalazi se u Sitničkoj ulici broj 14, u zoni individualnog stanovanja.
Na parceli se nalazi jedan objekat, porodična stambena zgrada koja je, kao i svi delovi partera, planirana za rušenje pre početka izgradnje projektovanog objekta.

Obezbeđen je pristup objektu osobama sa posebnim potrebama preko Omega lift podizne platforme.
Na parceli se predviđa izgradnja novog, jednostrano uzidanog, stambeno-poslovnog objekta, spratnosti Po+Su+Pr+3+Ps i ukupne bruto izgrađene površine od 2.120 kvadratnih metara.
Sa ulice Sitničke obezbeđen je pešački pristup stambenom delu objekta, pristup lokalu i pristup poslovnom delu, kao i kolski pristup garaži na etaži podruma.
Obezbeđen je pristup objektu osobama sa posebnim potrebama preko Omega lift podizne platforme.

Garaža za 13 vozila
U podrumu je projektovana zajednička garaža za 13 vozila – jedno PM za osobe sa posebnim potrebama i 12 mesta na sistemu za parkiranje.
Na etaži suterena projektovano je osam stanarskih ostava u delu objekta prema ulici i jedan poslovni apartman u delu objekta prema dvorištu.
Na etaži prizemlja projektovan je jedan lokal i jedan poslovni apartman.

U objektu je projektovano ukupno osam stambenih jedinica, dva poslovna apartmana i jedan lokal.
Na etažama prvog, drugog sprata, trećeg i povučenog sprata su projektovane po dve stambene jedinice različite strukture i površine.
U objektu je projektovano ukupno osam stambenih jedinica, dva poslovna apartmana, jedan lokal i trinaest parking mesta.

Na javnom uvidu do 12. maja
Zainteresovani mogu tokom javne prezentacije da izvrše uvid u Urbanistički projekat, kao i da svoje primedbe i sugestije na planirana rešenja dostave Sekretarijatu za urbanizam i građevinske poslove, najkasnije do 12. maja 2023. godine.
Grafički prilozi








Galerija rendera









Zastita vizure ka zasticenom objektu – 0 poena
Samo nek se zida…
Jos jedan monstrum koji ce da zakloni sve i nadvisi sve u toj ulici, naravo bice opet beton beton varijanta svuda ono njega, mozda malo trave al nista drvece. I onda krece rusenje svih mogucih kuca u kraju i zidanje slicnih monstruma po copy paste metodu al ulica nek ostane uska pa milina svim novim stanarima…