Na Topčiderskom brdu planiran stambeni kompleks sa otvorenim bazenom
Na mestu starih generalskih vila Rajka Tatića, planira se izgradnja objekta sa 10 stambenih jedinica, garažom sa 38 mesta i bazenom između dve lamele.
Savski venac, saobraćajno, turističko i poslovno središte srpske prestonice, smešteno na ušću Topčiderske reke u Savu na Topčiderskom brdu i njegovim padinama, moglo bi uskoro da dobije još kvadrata namenjenih stanovanju.
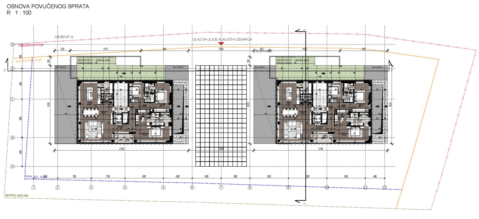
Tim povodom, Grad Beograd oglasio je javnu prezentaciju urbanističkog projekta za izgradnju stambenog kompleksa koji se sastoji od dve lamele spratnosti Po+Su+P+1+Ps na uglu ulica Augusta Cesarca i Rodoljuba Čolakovića.
Nosilac izrade projekta je beogradsko preduzeće „IBM Consult”, koje je zahtev za potvrđivanje podnelo u ime investitora „Kit komerc” d.o.o., takođe iz Beograda. Idejno rešenja potpisuje „Mapa architects“ na čelu sa arhitektom Predragom Milutinovićem, dok je odgovorna urbanistkinja Ivana Stanojević, dia.
Pročitajte još na Gradnja.rs:
- Kod Čuburskog parka na Vračaru planira se zgrada od preko 4.000 kvadrata
- Na Dušanovcu u planu stambeno-poslovni objekat od 3.100 kvadrata

Vila Rajka Tatića odlazi u istoriju
Parcela je ugaona, ukupne površine 3.215 m2. Na parceli je izgrađena posleratna dvojna vila, za generale vojske 1955. godine, prema projektu Rajka Tatića, značajnog jugoslovenskog arhitekte 20 veka.
Predmetni objekat – iako prepoznat kao deo nasleđa originalnog stilskog i organizacionog koncepta – u veoma je lošem stanju i ne uživa status kulturnog dobra. Ipak, za autorska ostvarenja Rajka Tatića brigu vode naslednici nosioca autorskih prava.
Za potrebe predmetnog UP-a pribavljena je saglasnost odnosno potpisan sporazum o obeležavanju sećanja na predmetno delo, stil i neimara, kroz memorijalni prozor na ogradi budućeg objekta.

U svakoj lameli, u prizemlju se nalaze po dva stana, na spratu takođe po dva, te na povučenom spratu po jedan stan.
U skladu sa smernicama plana na predmetnoj lokaciji, predviđena je izgradnja stambenog kompleksa spratnosti Po+Su+P+1+Ps, ukupne BGRP 4.834 kvadratna metra.
Objekat se sastoji iz dve identične slobodnostojeće stambene lamele, sa suterenom sa ostavama i tehničkim prostorijama i zajedničkim podrumom sa podzemnom garažom i tehničkim prostorijama.
Planirani objekat će sadržati 10 stambenih jedinica. U svakoj lameli, u prizemlju se nalaze po dva stana, na spratu takođe po dva, i na povučenom spratu po jedan stan.
Planirana čista visina stanova je 345 cm od poda do spuštenog plafona (prostor iznad spuštenog plafona visok je još 40 cm), čime je, navodi se u dokumentaciji, dodatno naglašen visok standard stanovanja.

Bazen se nalazi na koti suterena, između dve lamele, a zamišljeno je da bude dostupan svim stanarima objekta.
U objektu i okućnici predviđeni su brojni sadržaji zajedničkog standarda, od kojih je glavni otvoreni bazen. Bazen se nalazi na koti suterena, između dve lamele, i orijentisan je ka jugozapadu. Zamišljeno je da bude dostupan svim stanarima objekta.
Garaža je u potpunosti rešena ispod nivoa terena. Površina garaže iznosi 1.155 m² i spada u „srednje garaže“, a u skladu s tim, unutar nje je projektovana komforna dvosmerna komunikaciona površina širine 6 m.
Ostvareno je ukupno 38 parking mesta, od toga 4 parking mesta za osobe sa posebnim potrebama. U nivou suterena predviđene su ostave i pomoćne prostorije koje pripadaju stanovima.

Na javnom uvidu do 14. oktobra
Zainteresovani mogu tokom javne prezentacije da izvrše uvid u urbanistički projekat, kao i da svoje primedbe i sugestije na planirana rešenja u pisanoj formi dostave najkasnije do 14. oktobra 2022. godine.





