Kuća u Gorskom Kotaru zamenila hlad oraha
Zahvaljujući šalukatrama ova planinska vikendica tokom noći svetli poput fenjera.
U hrvatskom Gorskom Kotaru, arhitekta Tomislav Soldo projektovao je crnu vikendicu koja pleni pažnju svojim oblikovnim rešenjima ali i pričom o njenom nastanku.
Naime, na mestu sadašnje vikendice postojao je orah, u čijem hladu je vremenom izgrađena terasa, a tek nakon toga nastala je ideja o gradnji kuće.
Čitava kuća sagledava se kao jedinstveni volumen, pa se iz svakog njenog dela pruža pogled ka eksterijeru.
Padina parcele kao i položaj postojeće terase bili su prvi i jedini uslovi u procesu osmišljavanja novog objekta. Bez potrebe za preteranim koketiranjem sa tradicionalnim rešenjima, ona je samo kuća na brdu, ekstenzija terase i zatvoreni vidikovac. Jedini usvojeni oblikovno funkcionalni elementi tog podneblja jesu kosi krov, kompaktnost osnove, kao i prisutnost drva u oblikovanju okućnice.
Pogled kao glavni adut
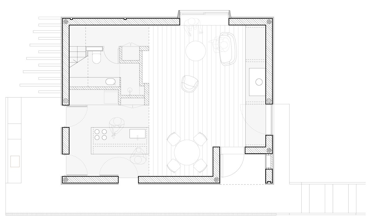
Kuća je u osnovi 69 kvadrata dok je njena ukupna površina 82 m2. Ima malu podrumsku etažu za ostavu, prizemni deo za dnevni boravak i kuhinju kao i spavaću sobu na galeriji. Čitava kuća sagledava se kao jedinstveni volumen, pa se iz svakog njenog dela pruža pogled ka eksterijeru. Prostor kuhinje i kupatila čine kompaktni mini volumen i jezgro unutar većeg volumena kuće, a iznad čega je smeštena galerija.
Ventilisana fasada urađena je od dasaka sibirskog ariša koje su potom impregnirane katranom u dva sloja.
Konstruktivno čitava kuća izgrađena je od porobetona, osim podrumske etaže i temelja, što je omogućilo znatno ubrzanje i pojednostavljenje gradnje na datoj lokaciji. Kuća je izolovana od neželjenog pregrevanja leti i toplotnih gubitaka zimi pomoću ventilisane fasade i to daskama sibirskog ariša slaganih na pero i žljeb. Fasada je potom impregnirana katranom u dva sloja, prirodnim premazom za zaštitu drva koji mu daje garanciju i do 30 godina.
Preko dana, kuća izgleda kao crni kompaktni, hermetični volumen.
Iz kuhinje se izlazi na terasu gde se nalazi letnja kuhinja na otvorenom.
Unutrašnjost vikendice izvedena je u beloj boji sa par crnih detalja. Opremljenost nameštajem je minimalna i boravak u vikendici usmeren je na uživanje u okruženju preko prozora većih dimenzija.
Šalukatre sa dijagonalno postavljenim letvicama puštaju sunčevu svetlost da tokom dana suptilno prodire u vikendicu, dok noću kuća svetli poput fenjera u svom planinskom okruženju.
Kompaktna i naizgled monolitna struktura danju, tokom večernjih sati se menja uključivanjem rasvete. Preko šalukatri, poput fenjera, izliva svetlost na okolinu, imitirajući sunčeve zrake koji osvetljavaju unutrašnjost u toku dana.
– rekao je arhitekta Tomislav Soldo.
Crteži



Foto: Jure Živkovic












