Kuća na grčkom ostrvu nastala poigravanjem sa osnovnim geometrijskim oblicima
Ova vikendica na Parosu je u suštini kvadar koji je usložen u više stambenih delova.
Projektni biro Lantavos Projects dobio je zadatak da isprojektuje kuću za petočlanu porodicu koja će u njoj boraviti ne samo leti i već i tokom godine. Arhitekte nisu ni pokušavale da imitiraju tradicionalne grčke kuće u ovom kraju, već su osmislile objekat koji je u skladu sa terenom i to potpuno u duhu vremena u kojem se kuća gradi.
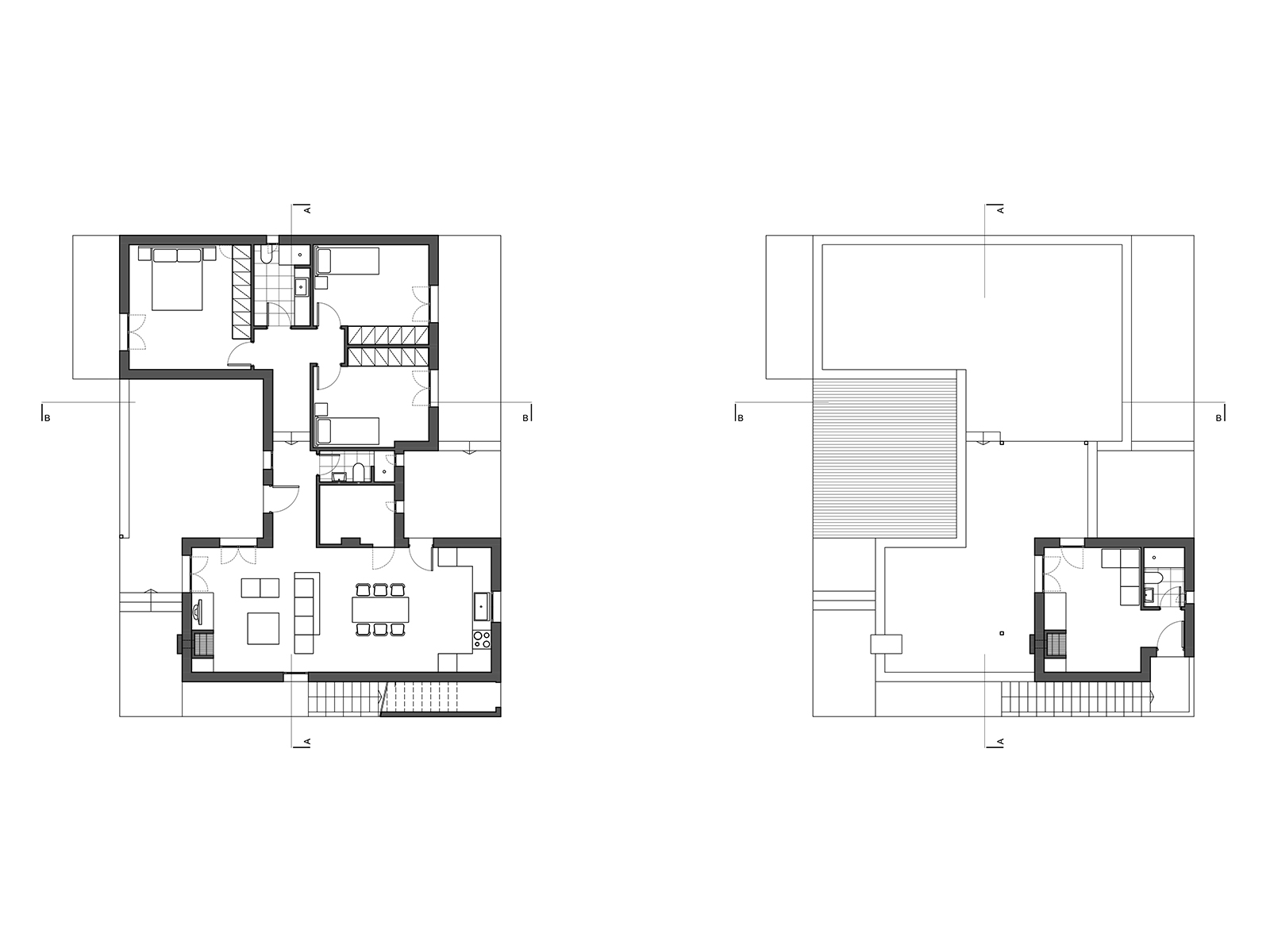
U suštini, kuća je kvadar kojem su izmeštanjem oduzetih delova kreirani novi volumeni.
Vikendica u Kamposu na ostrvu Paros okružena je poljima žitarica, malim vinogradima i maslinjacima. U skladu sa okruženjem, položajem placa, ružom vetrova i, naravno, potrebama vlasnika osmišljen je objekat koji pleni pažnju svojim savremenim oblikovanjem.

U suštini, kuća je kvadar kojem su izmeštanjem oduzetih volumena kreirani novi prostori u osnovi. Tako je formirana i veranda kojom se kuća štiti od jakih vetrova sa severa. U izmeštenom volumenu kuće, smeštenom na njenom vrhu do kojeg se dolazi spoljnim stepeništem, osmišljen je studio kao i prostor za relaksaciju sa neometanim pogledom kao području Pounta i ostrvu Antiparos.
Dva pravougaona volumena su u osnovi blago smaknuta kako bi se otkrio deo verande ali i da bi se naglasio ulaz u kuću.
Prvi deo kuće rezervisan je za dnevni boravak sa trpezarijom i kuhinjom dok je u drugom delu spavaći blok.
Zbog oštre klime na ostrvu Paros, vođeno je računa o položaju soba i otvorima na fasadi. Sa severne strane postoji samo jedan prozor čime se kuća štiti od hladnog severca zimi, dok su spavaće sobe okrenute ka jugu kako se ne bi pregrevale tokom leta. Kuća je izolovana kontaktnom fasadom, a od sunca se dodatno štiti drvenom pergolom.
Rezultat je kuća koja pleni pažnju svojim oblikovanjem, a pritom ispunjava sve želje svojih vlasnika.

Foto: George Messaritakis











