Kuća na Kamenjaru otporna na izlivanje Dunava
Ova porodična kuća u Novom Sadu oblikovana je spram ćudi velike reke koja kraj nje protiče.
Područje na kome se nalazi ova raskošna kuća od 450 metara kvadratnih je plavno. Svake dve do tri godine, Dunav plavi celo područje i dostiže visinu i do 2 metra od kote terena. Arhitekta Nikola Martinović iz studija N-Martin Project dobio je zadatak da isprojektuje kuću koja će odoleti ovom velikom izazovu. Evo kako je to rešeno!
Sistem otvora dozvoljava vodi da neometano uđe u prizemlje ali i isto tako, kad se reka počne povlačiti, omogućava brzo i neometano ispuštanje vode iz kuće.
Kuća na Kamenjaru projektovana je tako da ima sistem otvora koji, kod podizanja nivoa Dunava, dozvoljava vodi da neometano uđe u prizemlje kuće ali i isto tako, kad se reka počne povlačiti, omogućava brzo i neometano ispuštanje vode iz kuće. Pošto će reka svakako poplaviti celo područje, poenta je omogućiti što lakši i brži odvod vode kada ona počne da se povlači. Isto tako, sistem otvora omogućava i lako pranje. Pošto je celo prizemlje urađeno je u vodonepropusnom betonu, kako se ne bi dozvolilo kapilarno penjanje vode, prizemlje se posle poplave čisti vodenim šmrkom.
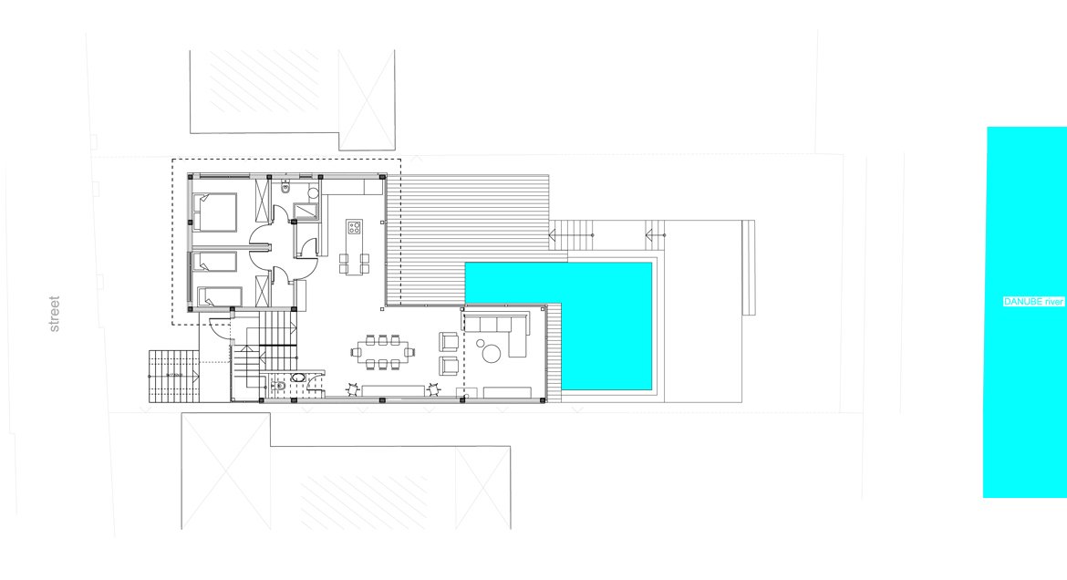
Kuća ima tri nivoa, a nivo prizemlja kuće (dnevna soba, kuhinja i trpezarija) podignut je na kotu daleko iznad najvišljeg vodostaja, tako da je siguran. Tako je formirano prizemlje u koje su smeštene pomoćne prostorije.
Bučni deo kuće (dnevna soba, kuhinja, trpezarija… ) orijentisan je prema Dunavu gde su smešteni ogromni portali i jedino je staklo fizička pregrada između unutrašnjeg i spoljašnjeg prostora.
Bazen je dimenzionisan tako da obuhvata dve strane dnevne sobe pa, kad su otvoreni portali, iz sofe možete direktno ući u bazen.
Na trećem nivou se nalazi samo spavaća soba zajedno a kompletno otvorenim kupatilom i krovnom terasom.
Drvene letvice poslagane su po grafičkom prikazu Morzeove azbuke tako da formiraju nekoliko reči koje će ostati tajna.
Raspored drvenih letvica poslaganih na velikom zidu u trpezariji nije slučajan. Naime, one su poslagane po grafičkom prikazu Morzeove azbuke tako da formiraju nekoliko reči koje vam, nažalost, ne možemo otkriti. Kada biste vukli štap po zidu, onaj ko razaznaje Morzeovu azbuku mogao bi vam reći šta je tačno napisano…
Ova kuća na Kamenjaru od 450m2 izvedenena je u februaru 2016. godine a projektovao ju je tim NMARTIN sastavljen od sledećih arhitekata: Nikola Martinović, Robert Hitenberger i Jelena Plačkov.
Kada padne mrak, noćna rasveta naglašava karakteristične delove objekta.
Foto: Relja Ivanić
Osnove i preseci


Pogledajte i domaći projekat ekobarže na Dunavu.











Bolje da je projektovana kao splav, kad naidje voda podigne je, kad se povlači vraća se na mesto. To je jos stari arhitekta Noe osmislio