Beograđanka u Podmoskovlju: Ana Sergienko potpisuje enterijer kuće među drvećem
Enterijer dvospratne porodične kuće osmišljen je kao veza čoveka i prirode, s naglaskom na minimalizam, tople materijale i panoramske poglede ka šumi.
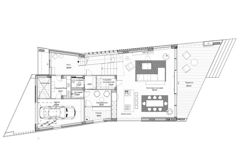
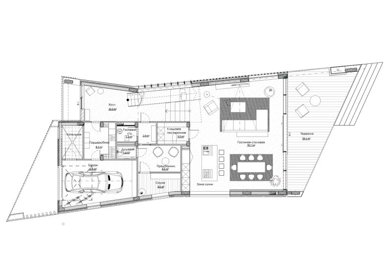
Ova dvospratna kuća od 330 m², smeštena u naselju Lesnoj Pejzaž u Podmoskovlju, predstavlja ne samo dom, već i prostor koji slavi lepotu prirode, arhitekturu i savremeni dizajn, stvarajući jedinstvenu atmosferu za mladu porodicu koju čine mama, tata, ćerka, njihova dva psa i – mačka.
Objekat je u potpunosti isprojektovao i realizovao arhitektonski biro 80/88 iz Moskve. Nikita Sergienko je odgovoran za arhitekturu kuće spolja, dok arhitekturu enterijera potpisuje Ana Sergienko (devojačko Višnjić), Beograđanka koja je arhitektonsko obrazovanje stekla u Moskvi i Parizu.
Pročitajte još na Gradnja.rs:

Okolna stabla uticala na geometriju
Kako za portal Gradnja objašnjava Ana Sergienko, složena geometrija osnove kuće bila je uzrokovana činjenicom da je na parceli raslo mnogo lepih i velikih stabala i klijenti su želeli da ih sačuvaju.
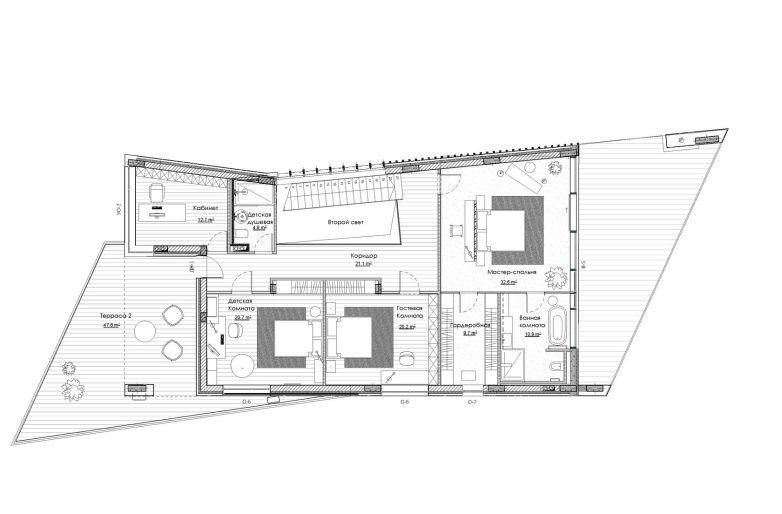
Kuća je isprojektovana s velikim panoramskim prozorima u dnevnom i trpezarijskom delu objekta, kao i u glavnoj spavaćoj sobi sa kupatilom, s pogledom na parcelu i šumu.
„Pri ulasku u kuću na prvom spratu vidimo prostor na dva nivoa sa stepeništem, odakle se vidi i parcela iz dnevnog boravka, ali i hodnik na drugom spratu koji je zamišljen kao galerija za umetnička dela“, objašnjava naša sagovornica.

Minimalistički enterijer po želji klijenata
Enterijer je, kako smo naveli, kreiran za mladu porodicu sa ćerkom, dva psa i mačkom. Klijenti imaju sopstvenu proizvodnju globusa i sa velikim poštovanjem čuvaju gipsani model svog prvog globusa, za koji su arhitekte kasnije pronašle posebno mesto u radnoj sobi na drugom spratu.
„Klijenti su želeli da enterijer bude u minimalističkom stilu. Ćerka je želela crni zid i crtež u ‘loft’ stilu na zidu. Ovo nam je omogućilo da dizajniramo dečiju sobu u stilu celog enterijera kuće“, kaže Sergienko, arhitektkinja na čelu enterijerskog odeljenja biroa 80/88.

Drugi kamin smešten je u enterijeru i „lebdi “u prostoru dnevne sobe – bez ometanja pogleda na terasu i parcelu.
Jedna od specifičnosti ovog projekta jeste i to što su u objektu isprojektovana čak dva kamina – ulični kamin je integrisan u stubu nadstrešnice za terasu, dok je drugi kamin smešten u enterijeru i „lebdi “u prostoru dnevne sobe – bez ometanja pogleda na terasu i parcelu.
„Inače, dimnjak ovog kamina prolazi kroz spavaću sobu na drugom spratu, nismo ga namerno sakrili, već naprotiv, uklopili u kompoziciju sa ostatkom nameštaja. Kao podršku crnom dimnjaku, pojavili su se crni ili tamni elementi u obliku ležaljke i slike u kontrastu sa belim zidovima, kao i velika tamna staklena pregrada“, objašnjava Ana.
Kako ističe sagovorica Gradnje, glavni zadatak u ovom projektu bila je veza između prirode i čoveka kroz arhitekturu. Stoga je zimi enterijer strožiji i elegantniji, a leti je živahniji i ispunjen bojama. Zato je, kaže, bilo teško odlučiti se kada bi bilo najbolje fotografisati kuću, te su nam stoga iz biroa 80/88 poslali zimske i jesenje fotografije kuće.
„Meni lično se sviđa ideja korišćenja mikrocementa, kao materijala bez šavova u potpunosti na podu na prvom spratu. Tako se na prvom spratu hodnik ‘preliva ‘u dnevnu sobu-trpezariju, koja se nalazi na nivou ispod zbog reljefa na samoj parceli. Iz hodnika se ulazi i u spa zonu sa saunom, gde se mikrocement takođe koristi na podu“, objašnjava Sergienko.

Umesto drvenih podova – drveni plafon
Mirne nijanse u enterijeru ističu u prvi plan tišinu prirode i lepotu pejzaža i arhitekture kuće. Tople nijanse drveta na zidnim panelama na ulazu, kuhinjе iz drveta daju toplotu i kontrast prostoru i neutrališu hladnu nijansu mikrocementa.
„U glavnoj spavaćoj sobi, umesto drvenih podova, korišćen je drveni plafon. Sve zajedno s belim zidovima i belim vratima do plafona formiraju opštu kompoziciju enterijera“, navodi arhitektkinja iz beograda sa moskovskom adresom.
Na kraju, Ana ukazuje na izuzetnu saradnju s klijentima koji su veoma kreativni i otvoreni za nove ideje. Njihovo razumevanje estetike i poverenje u rad arhitekata doprineli su uspehu projekta, što je rezultiralo kućom koja savršeno odražava stil života ove mlade ruske porodice.















