Kuća ušuškana u hrastovu šumu od 118 kvadrata
Domaći projekti, Izdvojeno

Žbun na Avali: Kuća u šumi koja svetu okreće svoja zelena leđa

Osnovni koncept ove kuće sa neobičnim zabatnim zidom jeste da se neprimetno integriše u kontekst hrastove šume, a da opet zadrži svoju autonomiju.

Novogradnje u gradovima je sve više, a čini se kako bi svi radije živeli u prirodi. Ovaj paradoks pomiruje se intenzivnom gradnjom vikendica u blizini velikih gradova, pa tako oko Beograda i Novog Sada niču kuće kao pečurke posle kiše. Nažalost, većina njih nema veliku arhitektonsku vrednost ali se ponekad nađe zanimljiv biser kao što je ovaj.

Žbun je kuća na Avali ne samo za porodični odmor, već može poslužiti i za team buildinge, a pritom je i fotografski studio. Ovaj upečatljiv objekat od 118 kvadrata za fotografa Milana Radojičića potpisuje arhitektica Ivana Milinković koje nam otkriva kako je izrasla ovakva kuća.

Srodni članci na portalu Gradnja:

Zeleni zid koji okreće leđa svetu

Ovaj zeleni fasadni zid dominira objektom, a izveden je od lima sa razigranim linijama poput žbuna.

Zahtev klijenta bio je da se u postojećem šumskom okruženju, sa pristupnim putem i u okruženju susednih kuća za odmor, isprojektuje kuća za povremeni boravak ljudi, koja će čuvati intimu korisnika a ujedno se i otvarati ka prirodi i dubini šume.

Osnovni koncept kuće Žbun jeste da se neprimetno integriše u kontekst šume, a da opet zadrži svoju autonomiju.

Specifičnost objekta jeste njen zabatni zid, odnosno kako to autori kažu okretanje “zelenih leđa” pristupnom putu i “svetu”, a koja se malim prozorom samo proviruje u unutrašnjost objekta.

Ovaj zeleni zid dominira objektom, a izveden je od lima sa razigranim linijama poput žbuna.

“Zid koji svojom hladnoćom, metalni oštro, seče šumski haos, i postavlja jasnu granicu sa ‘nešumskim’ okruženjem.” – kaže arhitektica za naš portal.

Foto: Žbun
Foto: Žbun

Kompaktnost žbuna kao ideja vodilja

Glavna ideja za oblikovanje objekta jeste kompaktnost žbuna sa dozom razigranosti forme što je rezultiralo, erkerom, nagibom krova, linijama u fasadi zelenog zida.

“Šuma je svojim postojanjem ‘uhvatila’ kompaktnu formu, koja se razigrala u haosu šumske vegetacije.” – dodaje arhitektica.

U prizemlju je predviđena i terasa koja se integriše, odnosno zalazi i grli stabla okolnog drveća.

Objekat se sastoji od velike dnevne zone u prizemlju sa otvorenom kuhinjom (toaletom i prostorijom za ventilacijom), i galerije sa dve sobe za odmor sa kupatilom. U prizemlju je predviđena i terasa koja se integriše, odnosno zalazi i grli stabla okolnog drveća.

“S obzirom na to da kuća Žbun služiti ne samo za odmor već i kao fotografski studio, ali i kao mesto na kom će se održavati razna poslovna okupljanja, prostor je morao da obuhvati sve željene funkcije.” – kaže arhitektica.

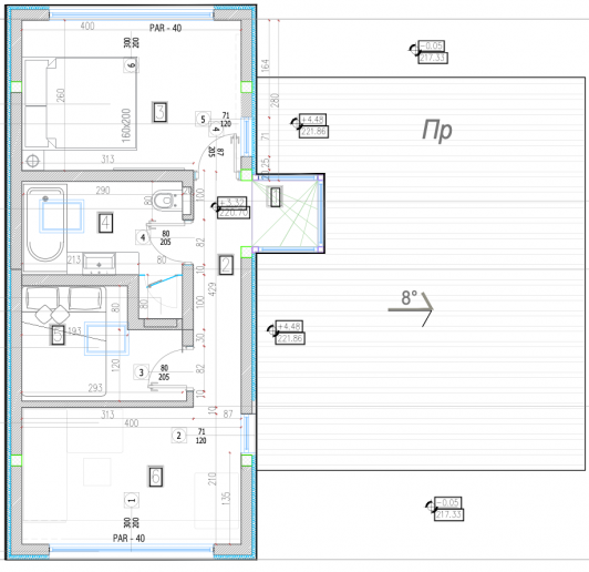
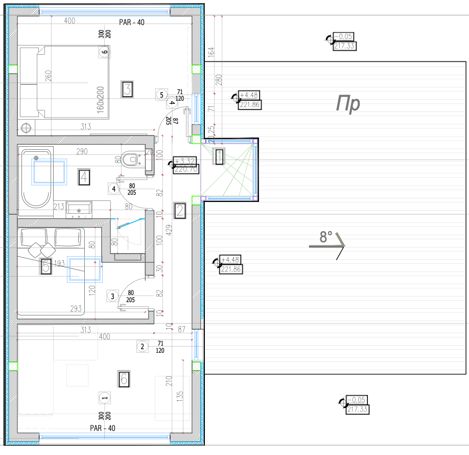
Osnova prizemlja

Veliki trpezarijski sto kao fokusne tačke

Krenuvši od dvorišta, naići ćemo na kamin koji već čini da se osetimo dobrodošlo kao u svom domu.

Unutar prostora sobe su podeljene tako da ima dovoljno mesta za spavanje i odmor.

Veliki trpezarijski sto, koji pored karakterističnog stepeništa zauzima centralni motiv u prostoru, biće mesto kreiranja najboljih poslovnih ideja i nezaboravnih porodičnih uspomena.

“A fotografske želje zadovoljene su sa različitim pozadinskim materijalima i specijalno dizajniranim postavkama, koje su nastale redizajnom i restauracijom starog nameštaja.” – dodaje arhitektica.

Veliki trpezarijski sto kao centralna tačka okupljanja

Polazna tačka u razvoju dizajna zasigurno su bili zemljani tonovi i korišćenje prirodnih materijala, drvo i mermer.

U karakterističnom okruženju kakvo ima kuća Žbun, dizajnerka enterijera Milica Obradović imala je zadatak da poveže prirodu mesta da funkcionalnom modernošću. Polazna tačka u razvoju dizajna zasigurno su bili zemljani tonovi i korišćenje prirodnih materijala, drvo i mermer.

Tome se pridružila specifična konstrukcija kuće koja je bliska industrijskom stilu, i prirodnim materijalima dodati su beton i metal, spojem ta dva nastala je perfektna mera stilskog izbora.

Kuća će se koristiti i kao fotografski studio

Modernizam susreće tradicionalizam

Kuća odiše modernizmom uz izbor opreme, materijalima i detaljima se doprinosi tradicionalnosti, a funkcija je u potpunosti ispraćena pravilnim rasporedom određenog nameštaja.

Dizajnerka kaže da joj je omiljeni deo u kući zasigurno master kupatilo, koje pored tuš kabine poseduje i samostojeću kadu, koja će bez presedana postati glavno Instagram mesto opuštanja na Avali.

Ovakav enterijer koji obuhvata više stilova, brzo postaje blizak svakom korisniku prostora.

Sve pogodnosti za udoban život u prirodi

Pogled iz dnevne sobe potpuno dopire u unutrašnjost šume budući da ceo dnevni prostor poseduje velike prozore od poda do plafona.

Funkcija kuće organizovana je tako da su dnevna soba i kuhinja smešteni u jedan prostor, uz vizuelno odvajanje trpezarijskim stolom iznad kog se nalazi luster AIM od Flosa.

Pogled iz dnevne sobe potpuno dopire u unutrašnjost šume budući da ceo dnevni prostor poseduje velike prozore od poda do plafona i prozor zanimljivog oblika iznad sudopere u kuhinji.

Pogled iz kuhinje ka šumi

Izazov uklapanja u kontekst

Naravno, nijedan projekat ne prođe bez izazova. Najveći izazov u projektovanju bio je uklapanje u kontekst i stvoriti slobodnu i dovoljno svetlu unutrašnjost objekta, dok je izazov u izvođenju bio ne poremetiti postojeću prirodu, sa svim njenim elementima.

Čini se da su autori u tome uspeli.

Grafički prilozi

Osnova prizemlja
Osnova prizemlja
Osnova galerije
Osnova galerije

Foto-galerija

Zeleni zid koji okreće leđa svetu
Zeleni zid koji okreće leđa svetu
Zeleni zid koji okreće leđa svetu
Zeleni zid koji okreće leđa svetu
Foto: Žbun
Foto: Žbun
Sve pogodnosti za udoban život u prirodi
Sve pogodnosti za udoban život u prirodi
Kuća će se koristiti i kao fotografski studio
Kuća će se koristiti i kao fotografski studio
Faktografija
projekat:

Žbun – kuća na Avali

autor projekta:

Ivana Milinković

dizajn enterijera:

Milica Obradović

godina projektovanja:

2021.

godina izvođenja:

2022.

površina:

118 kvadrata

spratnost:

Pr + 1

Postani deo Gradnja zajednice

Najnovije vesti s našeg portala svakog petka u vašem sandučetu.

Dizajn enterijera

Srodni tekstovi

1 komentar

  1. miki

    nadam se da je filtracijska napa u pitanju da ne bušimo to remek delo u zeleno boji

Ostavite odgovor

Obavezna polja *