Mali stan u Moskvi s kuhinjom u plakaru
Orman u koji je stala cela kuhinja sa stolom i garderoberom čini okosnicu ove garsonjere.
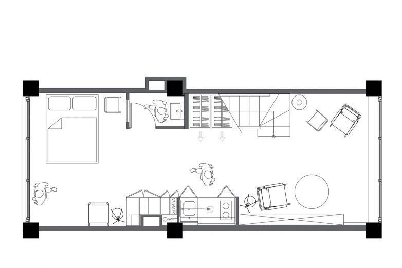
Studio Bazi na čelu s arhitekticom Alirezom Nemati potpisuje dizajn enterijera stana do 33 metra kvadratna smeštenog u istorijsko jezgro ruske prestonice. Želja klijenta bila je da se stara garsonjera renovira tako što će ona dobiti savremen dizajn ali i tako da u nju stanu svi sadržaji koji su potrebni za život: kuhinja, trpezarija, toalet, garderoberi… Pošto je kvadratura dosta mala, ideja za pravljenje multifunkcionalnog nameštaja nametnula se kao logičan izbor. Neka od rešenja su zaista inovativna!

U plakar je smeštena cela kuhinja zajedno sa šporetom, frižiderom, mašinom za sudove pa čak i sto na izvlačenje.
Najzanimljivije rešenje urađeno je duž centralnog zida gde je napravljen orman iza kojeg se krije ne samo mesto za skladištenje, već i cela kuhinja. Kada se sprema večera, kuhinja je eksponirana a kada neko dođe u posetu, ona može da se zatvori kako bi se dobio jednoobrazan, vizuelno neremećen, prostor.
Kuhinja je potpuno opremljena pa je u nju, osim šporeta i frižidera, stala i mašina za pranje sudova, ladice za odlaganje posuđa i escajga, a tu je i sto na izvlačenje.

Mirna zona stana
Dnevna zona odvojena je od spavaćeg bloka i kupatila zavesom koja atmosferu čini intimnijom i udobnijom. Spavaća soba je jednostavna i moderna, a interesantan je detalj kružnog prozora koje omogućava gledanje na ulicu za vreme tuširanja. Prirodno svetlo dolazi i preko staklenih vrata.
Kružni prozor u kupatilu omogućava pogled na ulicu za vreme tuširanja… i obrnuto.
Pored kupatila, a ispod stepeništa koje vodi napolje, smešteni su garderoberi na izvlačenje.
Što se tiče komadnog nameštaja, korišćeni su originalni komadi iz tridesetih godina prošlog veka.
Grafičke podloge
Foto: Polina Poludkina










Strava ideja. Gde se nalazi tacno masina za pranje sudova? Posto se na gif-u mogu primetiti sa desne strane, ispod sudopere, kanta, i mali ostavni deo(hemikalije?), a sa leve strane, ispod indukcione ploce, sto na izvlacenje, ladica sa escajgom, i skladisteni deo za namirnice. Da li je masina smestena u deo iza tog skladistenog, iz kojeg se vidi serpa?