Šumadijski kod: Mind Office u Kragujevcu kao međaš između prošlosti i budućnosti
Ovaj objekat izdvaja se po svom pristupu u kreiranju koncepta koji je doneo novo tumačenje savremenog radnog prostora u okviru industrijskog kampusa.
MIND Park Group je proizvodni, logistički i obrazovno-tehnološki hab, prvi takav u ovom delu Evrope. U okviru prostora od 160 hektara u Trnavi kraj Kragujevca nalazi se 60.000 kvadrata savremenog proizvodnog i kancelarijskog prostora u kojem već posluje 15 stranih i domaćih kompanija.
U okviru ovog inovativnog parka nalazi se futuristički objekat radnog naziva „Šumadija code“ čiji projekat potpisuje arhitekta Predrag Milutinović iz studija Mapa Architects.
Srodni članci na portalu Gradnja:

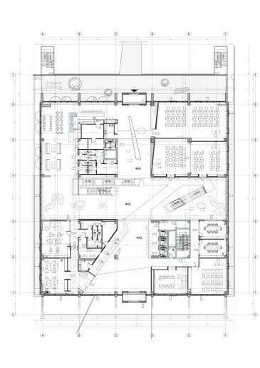
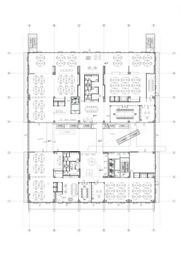
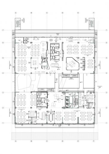
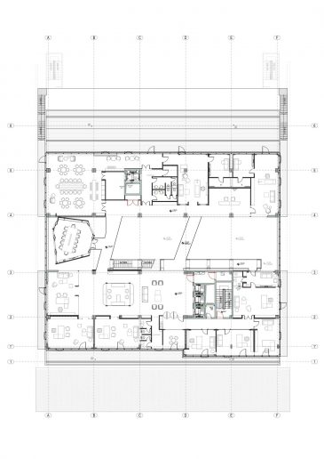
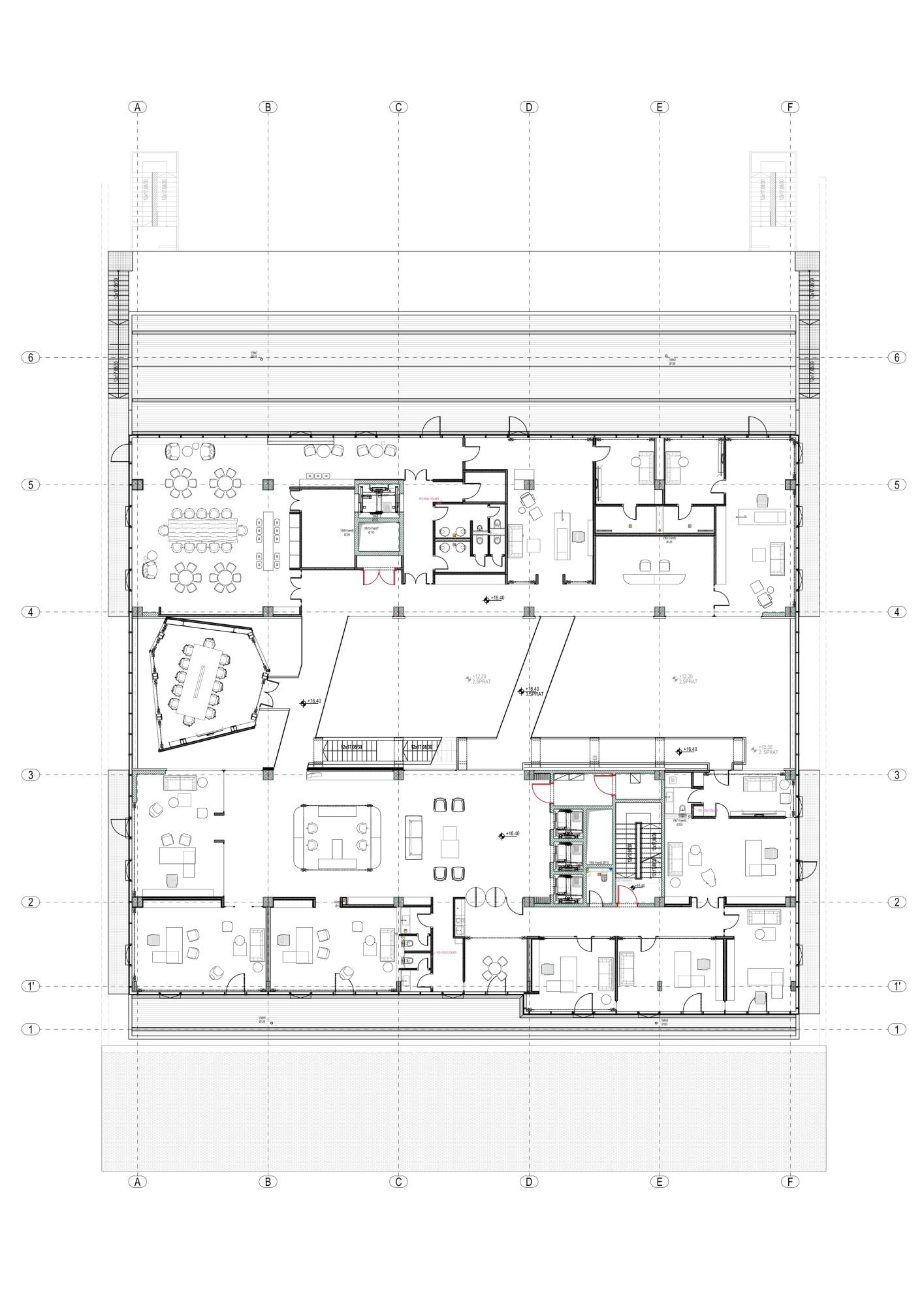
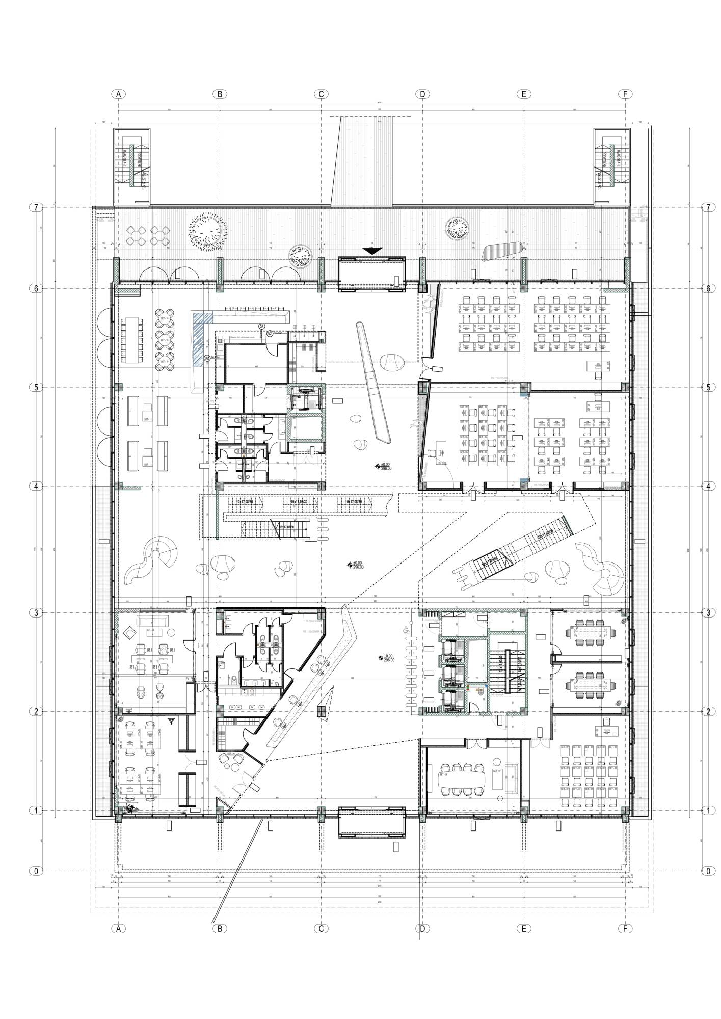
Objekat je sastavljen iz dva segmenta povezana mostovima kroz atrijum koji daje potpuno novu dimenziju komunikacije.
Mind Office Building izdvaja se po svom pristupu u kreiranju koncepta koji je doneo novo tumačenje savremenog radnog prostora u okviru industrijskog kampusa.
Objekat je sastavljen iz dva segmenta povezana mostovima kroz atrijum koji daje potpuno novu dimenziju komunikacije sa potpunom transparentnošću svih segmenata zajedničkog rada i života, stila življenja milenijumske generacije.
“Fluidno postavljene komunikacije otvaraju energiju i prave uvek novu atmosferu koja pobeđuje „dan mrmota“ na poslu”, kaže za naš portal Predrag Milutinović.

Kamen temeljac za neka buduća vremena
Objekat je energetski efikasan, a ujedno izuzetno izložen i otvoren.
Prilikom formiranja arhitektonskog koncepta arhitekta je došao na ideju da na otvorenom proplanku centralne Šumadije koncipira objekat koji je pronikao iz „zemlje Srbije“ kao kamen temeljac za neka buduća vremena, ali i kao međaš između prošlosti i budućnosti koja je sada u razmeni znanja i inovacija.
Ovaj kamen je uzdignut sa jedne strane, dok i dalje ima utemeljenost u zemlji iz koje je pronikao, što se čita i kroz geometriju i presek.

U toku noći on isijava kroz svoju opnu, kao neka savremena personifikacija svetionika i nove iskre radnika koja je ušla u digitalnu sferu nove Srbije.
Višeslojna fasada omogućava bolju zasenčenost i zaštitu od sunca, a ujedno pruža igru svetlosti i senke u začaranom inspirativnom prostoru u kome je stvaranje poetika.
“U toku noći on isijava kroz svoju opnu, transparentnu fasadu, kao neka savremena personifikacija svetionika i nove iskre radnika i koja je ušla u digitalnu sferu nove Srbije.” – dodaje Milutinović.

Parametarska promena perforacije fasade
Parametarska promena perforacije nastala je kao rezultat funkcionalnog i morfološkog povezivanja arhitekture i prirode. Napravljena je studija, uzimajući u obzir sve relevantne parametre vezane za fasadu u celosti, ali i za svaki njen pojedinačni segment.
Fasada kao zasebna celina diktira formu samog objekta i izražava vizuelne korelacije kuće i opne: otvoreno / zatvoreno, puno / prazno, skriveno / otkriveno. Istraživanje takođe obuhvata sagledavanje svih parametara opne: oblikovnost segmenata, materijalizacija, kolorit, osenčenost, prozračnost.
“Objekat nažalost nije u arhitekturi do kraja završen usled covida se stalo sa oblaganjem fasade, i to se očekuje u narednih godinu dana.” – kaže Milutinović.

Izmeštanjem jezgra na jednu od dve prostorne štangle, otvoren je prostor atrijuma.
U sintezi projektantskog procesa enterijer objekta je proistekao iz njegove osnovne arhitekture. Izmeštanjem jezgra na jednu od dve prostorne štangle, otvoren je prostor atrijuma, koji je spregnut, povezan linijama kretanja, stepeništima i mostovima.
“Ove komunikacije u otvorenom, oslobođenom prostoru atrijuma su mesta susreta, koje daje novu dinamiku savremenom prostoru rada, susreta i razmene.” – dodaje arhitekta.
Enterijer kao veza sa eksterijerom
Enterijerom je nastavljena ideja otvorenih transparentnih prostora sa jasnim komunikacijama, materijalizovana u osnovnim prirodnim bojama i materijalima.
Organska struktura gnezda, omotača, nastavljena je kroz pokrenute drvene vertikale koje izranjaju iz baze objekta, protežući se kroz čitavu vertikalu atrijuma.
“Svedene boje, odnosi punog, praznog, balansi masa, svetlosti i senke, daju posebnu atmosferu objektu kao mestu kreacije i inkubatoru novih ideja.” – zaključuje Predrag Milutinović.

Grafički prilozi
Foto-galerija
Faktografija
Mind Office Building
Predrag Milutinović dipl.ing.arh.
Olivera Stanković M.Arch.
Relja Ivanić
Mapa Architects; Branko Jovanović























