Arhitektura

Najstariji tržni centar u SAD pretvoren u stambeni objekat

Koncept tradicionalnih šoping centara izumire i u Americi. Sličnu sudbinu nije mogao zaobići ni najstariji među njima.

Tržni centar Arcade Providence podignut je još davne 1828. godine u stilu grčkih hramova i zbog svoje lepote, prozračnosti i skladnih propcija, ovaj objekat je jedan od omiljenih na Rod Ajlandu. Arcade Providence je 1971. godine upisan u Nacionalni registar istorijskih mesta kao objekat od izuzetnog značaja. Međutim, pošto je 2008. godine zatvoren, tržni centar je nakon sjajne ideje lokalnog preduzetnika pretvoren u stambeni prostor.

stanovi-u-trznom-centru-01

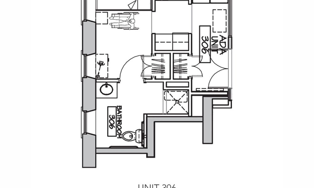
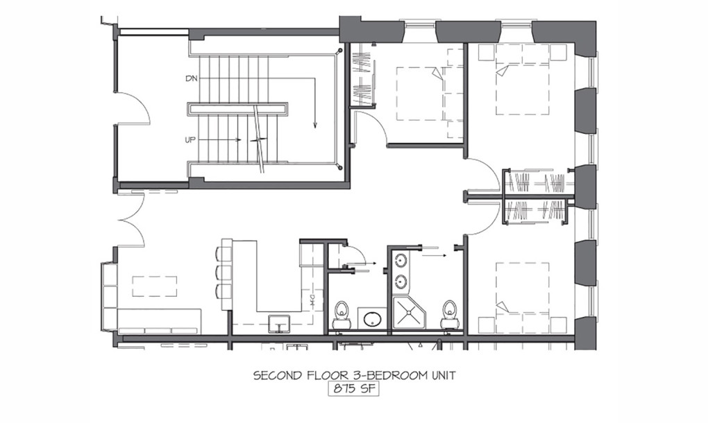
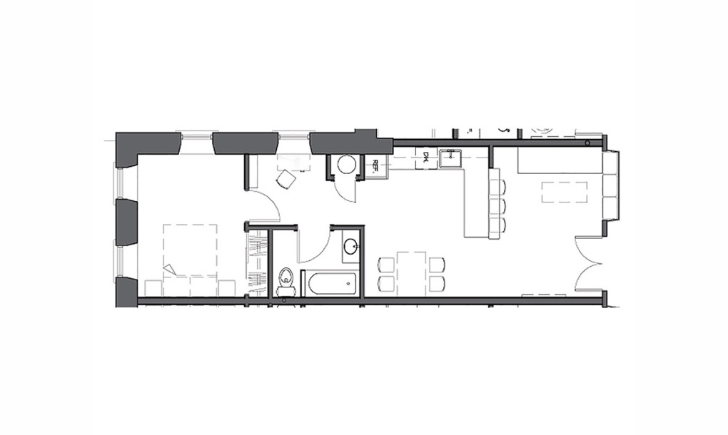
Evan Granoff došao je na ideju da šoping centar obnovi, poštujući njegovo istorijsko nasleđe, i pretvori ga u stanove koji će se moći izdavati. Po projektu biroa Northeast Collaborative Architects (NCA) i nakon inesticije od 7 miliona dolara, Arcade Providence dobio je novi život. U prizemlju su i dalje prodavnice, dok su na dva sprata iznad stanovi površine od 22 do 45 kvadrata koji se iznajmljuju s početnom cenom od 550 dolara mesečno, piše Inhabitat.

stanovi-u-trznom-centru-08

Svih 48 stanova su kompletno opremljeni i spremni za useljenje. Veći stanovi imaju dnevnu sobu, kuhinju, trpezariju, kupatilo i spavaću sobu dok su manji urađeni kao garsonjere. Stanarima su na raspolaganju razne zajedničke prostorije kao što su biciklane i teretane kao i garaže… i sve to u centru grada!

stanovi-u-trznom-centru-07

Arcade Providence je zbog svoje vanvremenske fasade, svetlom okupanog atrijuma i prepoznatljivih stubova, mamac za poglede prolaznika a nakon ponuđene mogućnosti da se u njemu i živi, svi stanovi su u kratkom roku izdati.

stanovi-u-trznom-centru-04stanovi-u-trznom-centru-06 stanovi-u-trznom-centru-05 stanovi-u-trznom-centru-09

Osnove stanova

stanovi-u-trznom-centru-11

stanovi-u-trznom-centru-03

Foto: Northeast Collaborative Architects

Pogledajte i kako je kamenolom pretvoren u luksuznu vilu.

Postani deo Gradnja zajednice

Najnovije vesti s našeg portala svakog petka u vašem sandučetu.

Dizajn enterijera

Srodni tekstovi

Ostavite odgovor

Obavezna polja *