Nova vikendica koja poštuje istorijsko nasleđe iz 19. veka
Ova crvena vikendica u švedskim pasivnim krajevima zamenila je vojničku baraku iz 19. veka, koja je poslužila kao inspiracija za novu kućicu koja evocira uspomene.
Projekat objekta nazvanog Bollbacken Cottage potpisuje arhitektonska firma Söderberg Söderberg, koja je uspela da uz primenu tradicionalnih i prirodnih materijala stvori autentičan ambijent ali da zadrži duh starog.
Kroz novi dizajn primenjena je ista organizacija prostora, gabarit, kao i vrsta materijala kako bi se vratila sećanja na stari objekat – baraku za vojnike iz sredine 19. veka koja je bila potpuno devastirana.

Naspramno postavljena vrata stvaraju zanimljivu vezu unutrašnjosti kuće sa okolnim vrtom.
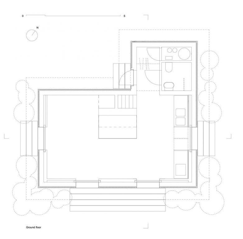
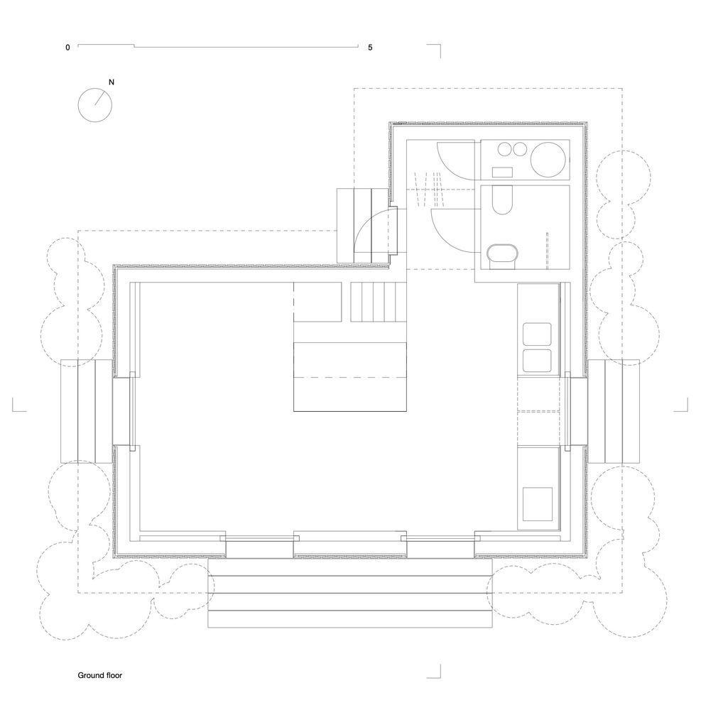
Novi objekat od 75 kvadrata oformljen je kao dvospratna struktura, gde je prvi sprat zadržao originalnu visinu plafona, ali sa kliznim skrivenim staklenim vratima od poda do plafona. Naspramno postavljena vrata stvaraju zanimljivu vezu unutrašnjosti kuće sa okolnim vrtom.
Otvoreni kamin
Karakterističan element prizemlja svakako je otvoreni kamin, obložen ručno izrađenim ciglama, pišu arhitekte za ArchDaily. Kamin je napravljen od šamotne opeke, a ložište je izvedeno od gvožđa koje se potom nastavlja u dimnjak.

Kuhinja izvedena u potpunosti od nerđajućih elementa nesvakidašnji je prizor za jednu vikendicu… čak i u Švedskoj.
Kuhinja izvedena u potpunosti od nerđajućih elementa nesvakidašnji je prizor za jednu vikendicu… čak i u Švedskoj. Iako je u jednom delu prekinuta vratima, ona se može povezati dodatnim radnim površinama.


Sprat je prozračan prostor kojeg zauzima mirni deo vikendice, pa su tako u ovom delu kuće kreveti i garderoberi.

Crvena fasada i krov
Spoljašnjost kuće je izvedena uz dominaciju crvene boje i to ne samo na drvenoj fasadi već i na krovu. Stakleni otvori na kući akcentovani su belim okvirima, dok su ulazna vrata jedino netransparentna i ona su u crnoj boji.
I tako je od ovoga:

Nastalo ovo:

Grafičke podloge
Kad ste već ovde…








Lepo izgleda! Volim kada prezentujete ovako „pristupacnije“ objekte.
Štrumfastično 😀