Eksterijer ove zgrade smelo ulazi i u enterijer stanova
Zgrada SCHULTZ nikla je u jednoj od prvih gradskih četvrti Meksiko Sitija, a svojom inovativnom fasadom privlači pažnju prolaznika i stručne kritike.
U ulici Miguel E. Schultz postoji mnoštvo očuvanih zgrada iz 19 veka, u kojoj pored toga što se oseća atmosfera minulih vremena, jasno se vidi i raznovrsnost klasnih razlika. Međutim, novi objekat kojeg potpisuje CPDA Arquitectos je tu da pomiri nepomirljivo.
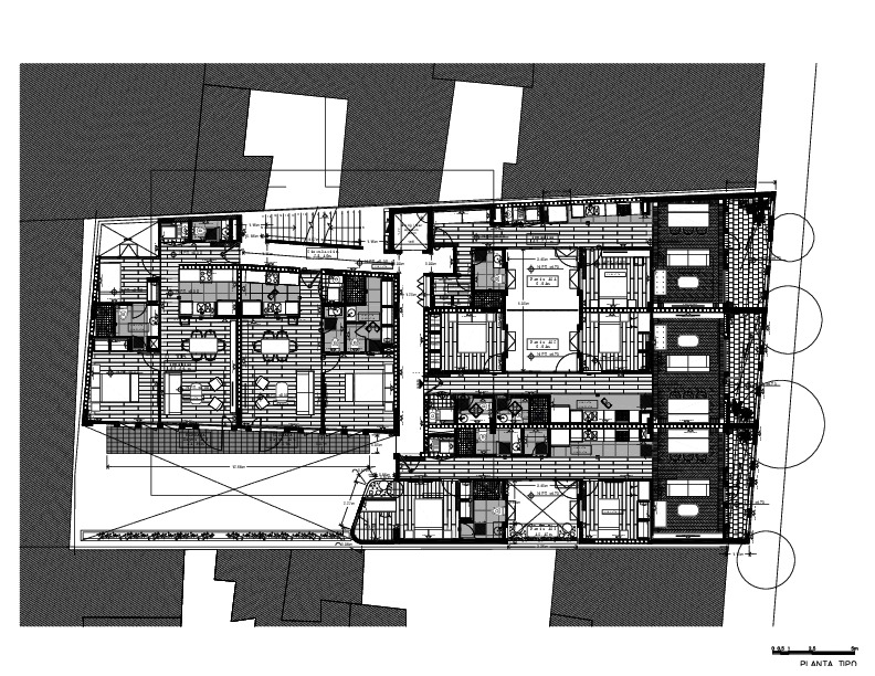
Zgrada od šest spratova ima 21 stambenu jedinicu različitih tipologija, površina od 60 do 120 metara kvadratnih. Organizacija unutrašnjosti izvedena je na način da se omogući dobra ventilacija i dosta prirodnog osvetljenja u svim životnim prostorima. Ovakav sistem je postignut tako što su stanovi otvoreni kako ka ulici, tako i ka unutrašnjim dvorištima. Zbog toga je eksterijer zgrade oblikuje i enterijere stanova.
Osnova objekta oblikovana je u formi slova L, kroz koje je protkan niz balkona, otvorenih i zatvorenih hodnika i stepeništa, koji prave vešte prelaze između otvorenog i zatvorenog, kao i javnog i privatnog.
Dupla fasada okrenuta ka ulici Schulltz je skulpturalna, monolitna, poput postera i njom dominira crvena betonska obrada, a ovakva struktura fasade omogućava veću količinu prirodnog svetla i dotoka vazduha, piše ArchDaily.
Drugi sloj fasade izveden je u kombinaciji crvene opeke i prozora velikih dimenzija.
Objekat sadrži dva tipa stambenih jedinica; frontalne, sa dve spavaće sobe i unutrašnje sa jednom sobom.
Ovako izgleda karakterističan enterijer:
Arhitekte firme CPDA Arquitectos organizovali su stanove na način da se na istoku nalazi dnevna zona, dok je spavaća zona na zapadu.
Prostrani balkoni, zahvaljujući prozorima od poda do plafona, postaju proširenja dnevnih boravaka ali i spavaćih soba, a crvena opeka sa fasade postaje pod u unutrašnjosti stana.
Osnova zgrade:
Foto: Jaime Navarro
Kad ste već ovde…









