Objekat iz Drugog svetskog rata stavljen pod stakleno zvono
Jedini preostali objekat holandskog kampa Westerbork ograđen je staklenom kutijom poput ogromnog eksponata.
Zeleno-bela kuća zapravo je bila dom komandanta Albert Konrad Gemmekera, i nalazila se u okviru holandskog prihvatnog kampa za izbeglice, koje su pretežno činili Jevreji. Nakon što je 1940. godine Nemačka preuzela kontrolu nad kampom, on postaje Centar za deportovanje Jevreja nazad na okupiranu teritoriju.
Tokom proteklih 70 godina, velike kasarne za smeštaj hiljada ljudi su srušene. Neki objekti su uklonjeni i zbog velikog stepena devastiranosti. Usled toga, odlučeno je da se jedina preostala kuća, koja je 1994. godine proglašena nacionalnim spomenikom, zaštiti od daljeg propadanja. I to na vrlo specifičan način!
Arhitektonski studio Oving Architecten sproveo je svoju ideju da zaštiti objekat tako što će ga staviti pod stakleno zvono, odnosno u stakleno-čeličnu kutiju koja ga štiti kako od prirodnih nepogoda, tako i od eventualne štete koju bi proizveo ljudski faktor.
Osim što će biti spomenik kulture Holandije, planirano je da se u ovom prostoru održavaju različiti obrazovni programi i kulturne aktivnosti, piše Dezeen.
Kako bi kuća i dalje živela u svom okruženju, odlučeno je da konstrukcija koja će je štititi bude transparentna.
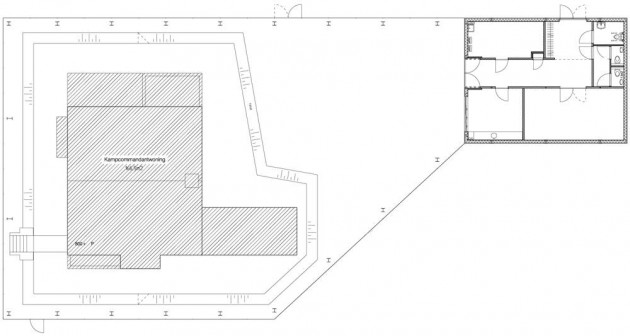
Objektu se pristupa kroz novoizgrađeni pomoćni objekat, u kome su osim ulazne zone, smešteni i toaleti i ostave.
Izometrija i osnove projekta

Foto: Susan Schuls






