Ovako će izgledati druga najveća poslovna zgrada na svetu
U indijskom gradu Surat gradiće se ogromna poslova zgrada na čak 6 miliona kvadratnih metara!
Možete li zamisliti da radite u kancelarijama koje su površine omanjeg grada? Pretpostavljamo da će otprilike takav nekakav osećaj imati armija ljudi od 45.000 zaposlenih koja će raditi u poslovnoj zgradi od čak 6 miliona kvadratnih metara u Suratu u indijskoj državi Gudžarat.
Zbog takve impresivne površine, ovo će biti druga najveća poslovna zgrada na svetu, pozicionirajući se odmah ispod Pentagona u Vašingtonu – prvoplasiranoj na ovoj (može se slobodno reći, neslavnoj) listi. Međutim, iako je zgrada stvarno ogromna ona je projektovana tako da svojom gradnjom što manje utiče na prirodnu sredinu.
Objekat je pasivan što znači da će samostalno proizvoditi električnu energiju za svoje potrebe.
Poslovni prostor Surat Diamond, čiji projekat potpisuje kompanija Morphogenesis, koristiće najsavremenije tehnologije u ekološkom smislu. Ne samo da će objekat prirodno ventilirati, i da će koristiti trenutne klimatske uslove u svoju korist, već će i cela zgrada biti pasivna što znači da će samostalno proizvoditi električnu energiju za svoje potrebe. A one nisu male! Ovde će raditi 45.000 ljudi i to pretežno u IT sektoru a svaki od njih zahteva računar i servere koji su poznati kao veliki potrošači struje.
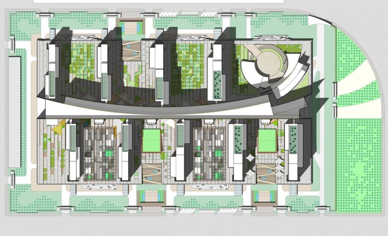
Ipak, najveći izazov bio je da se kreira prostor u kojem će se toliko veliki broj ljudi lako snalaziti. Morphogenesis je zato nivo prizemlja opredelio za javni saobraćaj dok je nivo izdignutih podijuma rezervisan isključivo za pešačku komunikaciju. Putanje staza, koje su projektovane po uzoru na terminale aerodroma, optimizovane su tako da od ulaska zaposlenog u zgradu do njegovog kancelarijskog mesta ne prođe više od 4 minuta, piše ArchDaily.
Centralna kičma
Surat Diamond poslovni prostor napravljen je tako da omogući socijalizaciju i rekreaciju. Centralna kičma objekta, koja povezuje sve kancelarijske prostore, osmišljena je tako da bude i intereaktivni prostor za neslužbene sastanke, druženja i pauze. Zeleni atrijumi i dizajnerska rešenja prilagođena da prijaju oku, tu su da potpomognu zaposlenima da se bolje osećaju. Takođe, uz centralni hol organizovani su i restorani, spa centri, teretane i slično.
Low-cost arhitektura
Efikasnost zgrade takođe se ogleda i u principu njene izgradnje. Naime, projekat predviđa inovativni pristup low-cost arhitekturi kojom se dobija maksimalni prostor za najmanje mogući uložen novac. Zahvaljujući ovom pristupu, optimizacijom i uprošćavanjem dizajna, smanjen je projektovani budžet za izgradnju ovog velikog objekta za 500 dolara po kvadratnom metru ali uz održavanje visokih standarda i održivosti.
Foto: Morphogenesis






Stopa, ne fita. A obzirom da je metrički sistem jedini i zvaničan u Srbiji (i 90% sveta), napišite da stopa iznosi 30, 48cm ili ft2=0.09290304m2. Kad već prevodite, uradite posao do kraja.