Novi kvadrati planirani na području park-šume Zvezdara i u centru Surčina
Sve manje šume – sve više kvadrata. Dok bi Zvezdara mogla da dobije preko 250 novih stanovnika, u Surčinu se planira izgradnja više od 1.800 novih stanova, ali i doma zdravlja, parka i skvera.
Nacrti dva nova urbanistička plana, koji se od 8. februara nalaze na javnom uvidu, upoznaju nas sa namerama dveju beogradskih investitorskih firmi po pitanju izgradnje novih stambenih kapaciteta i sa njima kompatibilnih komercijalnih sadržaja.
Radi se o Nacrtu izmena i dopuna Plana detaljne regulacije područja gradske park-šume Zvezdara, na delu između ulica Volgine i Mite Ružića, te o Nacrtu izmena i dopuna PDR-a centra Surčina, za blokove 9, 10, 11, 12 i 13. Uvid u oba dokumenta omogućen je do 24. marta.
Pročitajte još na Gradnja.rs:

Park-šuma Zvezdara: Plan na preko 9.000 kvadrata
Naručilac plana za područje park-šume Zvezdara je beogradsko preduzeće HTL Support Plus d.o.o. koje je izradu plana poverilo privrednom društvu Urbanistički centar d.o.o. iz Beograda. Kao odgovorni urbanista potpisana je Anđelka Miloradović, dia.
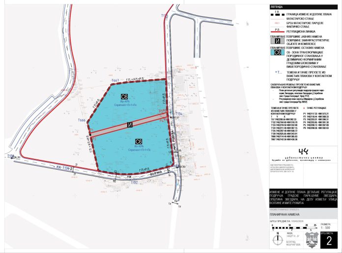
Granicom Izmena i dopuna plana detaljne regulacije obuhvaćen je deo teritorije Gradske opštine Zvezdara, između ulica Volgine i Mite Ružića, odnosno deo katastarske parcele 4502/1 KO Zvezdara. Površina predmetnog prostora iznosi ≈ 90 a (9.063 m²).
Pored postojećih stambenih objekta, spratnosti P+1+Pk, na terenu je izvedena i neplanska saobraćajnica koja ih opslužuje. “Najveći deo obuhvata jeste neuređeni teren prekriven samoniklim rastinjem”, kako piše u dokumentaciji.

Maksimalna planirana spratnost objekata je P+1+Ps, najveća dozvoljena spratna visina prizemlja iznosi 4,5 m, a spratova 4,0 m.
Planirane namene površina u obuhvatu PDR-a su površine javnih namena, odnosno površine za infrastrukturne objekte i komplekse, te površine ostalih namena – površine za stanovanje (zona S6 – zona transformacije porodičnog stanovanja u delimično formiranim gradskim blokovima u višeporodično stanovanje).
U zoni S6, kompatibilni odnosno komercijalni sadržaji sadržaji mogu biti zastupljeni do 20% ukupne BRGP na parceli. Maksimalna planirana spratnost objekata je P+1+Ps, najveća dozvoljena spratna visina prizemlja iznosi 4,5 m, a spratova 4,0 m.
Što se tiče bilansa površina i urbanističkih parametara, planirano je da se infrastukturne površine izgrade na 468 m², dok bi BRGP površina za stanovanje trebalo da poraste sa 651 m² na 10.314 m². Prema Nacrtu, broj stanovnika na ovom području povećao bi se sa 22 na 279.
Još novih kvadrata u centru Surčina
Investitor izrade plana za centar Surčina je preduzeće LUX Houses d.o.o. iz Beograda, nosilac izrade je Urbanistiq d.o.o. iz Beograda, dok je kao rukovodilac tima i odgovorni urbanista potpisan Nenad Kitanović, dia.
Obuhvaćen je deo teritorije gradske opštine Surčin, blokovi 9, 10, 11, 12, 13 i 19 definisani važećim planom, između ulica Vojvođanske, Dubrovačke i Braće Puhalović sa vezama saobraćajnica i infrastrukture do postojeće, odnosno planirane mreže. Površina obuhvaćena Izmenama i dopunama plana iznosi oko 12,9 ha.

Površine ostale namene, odnosno stanovanje i komercijalni sadržaji, povećale bi se sa 24.155 m² na 76.564 metra kvadratna.
Planirane površine javnih namena su površine za ustanove primarne zdravstvene zaštite – J6, ustanove socijalne zaštite – J8 (Nacionalna služba za zapošljavanje), ustanove državne, gradske i opštinske uprave – J10, kompleksi posebne namene – J11 (vatrogasni punkt), kao i zelene površine – park i skver, mreža saobraćajnica, te crpna i transformatorska stanica i infrastrukturni koridor.
Površine ostalih namena obuhvataju zonu višeporodičnog stanovanja u formiranim gradskim blokovima u centralnoj i srednjoj zoni grada – S5, zonu mešovitih gradskih centara u zoni srednje spratnosti – M5, zonu mešovitih gradskih centara u zoni niske spratnosti – M6, kao i zonu komercijalnih sadržaja u zoni niske spratnosti – K3.
Orijentacioni kapaciteti kažu nam da bi površine javne namene porasle sa 5.790 m2 na 30.601 m², a površine ostale namene, odnosno stanovanje i komercijalni sadržaji, sa 24.155 m² na 76.564 m². Broj stanova povećao bi se sa 167 na 1.993, broj stanovnika sa 485 na 5.779, a broj zaposlenih sa 115 na 910.

Na javnom uvidu do 24. marta
Zainteresovana lica mogu, tokom javnog uvida, svoje primedbe na planirana rešenja, u pisanom obliku, da dostave Sekretarijatu za urbanizam i građevinske poslove, preko pisarnice u ulici Kraljice Marije br. 1, zaključno sa 24. martom 2026. godine.
NAPOMENA REDAKCIJE
Ovaj tekst predstavlja informativni prikaz javnog uvida u plansku ili projektnu dokumentaciju, u skladu sa važećim procedurama i rokovima propisanim od strane nadležnih institucija.
Objavljivanjem ovakvih sadržaja, Gradnja ne izražava podršku, saglasnost niti promociju predloženih rešenja, već ima za cilj da pravovremeno informiše javnost o aktivnim i budućim projektima koji mogu imati značajan uticaj na prostor, životnu sredinu i kvalitet života.
Posebno naglašavamo da je svrha ovakvih objava da skrene pažnju na mogućnost javnog učešća, kao i da jasno istakne rokove u kojima građani, organizacije i stručna javnost imaju pravo da podnesu primedbe, sugestije i prigovore u okviru zakonom predviđenog procesa.
Gradnja podržava transparentnost, javni dijalog i aktivno učešće građana u odlučivanju o prostoru, i ohrabruje sve zainteresovane da iskoriste mehanizme javnog uvida ukoliko imaju stav, zabrinutost ili predlog u vezi sa predstavljenim projektom.
