Na dve lokacije na Vračaru planirano skoro 500 novih stanova od čega 400 oko Hrama
Dva područja u najmanjoj i najgušće naseljenoj beogradskoj opštini predviđena su za izgradnju mešovitih gradskih centara. Ravni javni uvid traje do 13. marta.
Na samom početku nove radne sedmice, na sajtu Grada Beograda omogućen je rani javni uvid u dva urbanistička dokumenta koji nas upoznaju sa planovima za novu izgradnju na teritoriji gradske opštine Vračar.
Tako se na području od blizu 9 hektara između platoa Hrama Sv. Save i trga Slavija predviđa izgradnja stambenih objekata sa poslovanjem u prizemlju, a slična „sudbina“ očekuje i lokaciju od 0,6 ha kod Crvenog krsta.
Pročitajte još na Gradnja.rs:
Skoro 400 novih stanova u okolini Hrama
Prvi na redu je elaborat za rani javni uvid Plana detaljne regulacije platoa kod Hrama Svetog Save i blokova između Trga Slavija i ulica Svetog Save, Katanićeve, Nebojšine i Bulevara Oslobođenja, sa obuhvatom površine od oko 8,82 ha.
Investitor je Srpska pravoslavna crkva, Hram Svetog Save – Patrijaršija, nosilac izrade plana je Parallel Studio iz Beograda, dok je kao odgovorni urbanista potpisana Dea Lukić, diplomirani inženjer arhitekture.
Prema Planu generalne regulacije područje u okviru granice Plana planirano je za površine za mešovite gradske centre, površine za stanovanje, površine za komercijalne sadržaje, površine za verske objekte i komplekse, kao i zelene površine i mrežu saobraćajnica.
Stanovanje je definisano kao zona višeporodičnog stanovanja u formiranim gradskim blokovima u centralnoj i srednjoj zoni grada (S5), na površini od oko 1,5 ha. Rekonstrukcija i revitalizacija bloka je planirana kroz rekonstrukciju i osavremenjavanje postojećih objekata i eventualnu zamenu pojedinih objekata novim.

Planira se rekonstrukcija i osavremenjavanje postojećih objekata i izgradnja stambenih objekata sa poslovanjem u prizemlju.
Stanovanje sa poslovanjem (mešoviti gradski centri), planirano je na oko 1,65 ha, kao zona mešovitih gradskih centara u zoni centra Beograda (M1). Planira se rekonstrukcija i osavremenjavanje postojećih objekata i izgradnja stambenih objekata sa poslovanjem u prizemlju.
Zona komercijalnih sadržaja u zoni visoke spratnosti (K1) je orijentacione površine od 0,28 ha. U ovoj zoni objekat ambasade Svete Stolice se planira za zadržavanje i po potrebi njegova rekonstrukcija ili dogradnja na slobodnom delu parcele. Takođe, planirana je zamena parohijskog doma novim objektom prema potrebama SPC.
Plan orijentaciono predviđa povećanje BGRP mešovitih gradskih centara sa 30.630 m² na 94.932 m², povećanje broja stanova sa 1.241 na 1.630, te broja stanovnika sa 3.488 na 3.098. Broj zaposlenih takođe bi porastao – sa 290 na 469.
Još 85 novih stanova u blizini Crvenog krsta
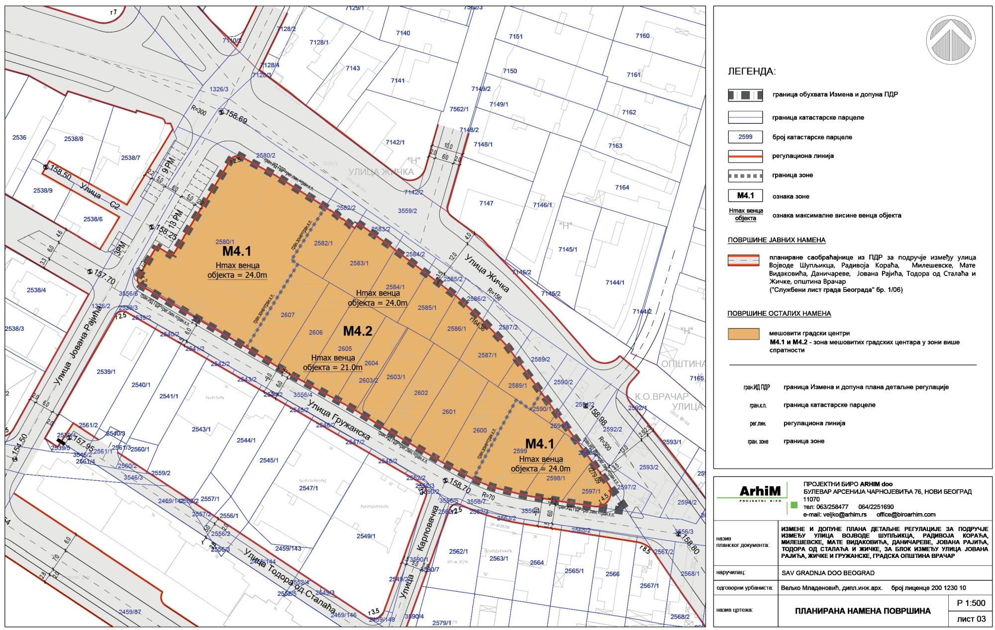
Drugi novi dokument na ranom javnom uvidu jesu Izmene i dopune plana detaljne regulacije za područje između ulica Vojvode Šupljikca, Radivoja Koraća, Mileševske, Mate Vidakovića, Daničareve, Jovana Rajića, Todora od Stalaća i Žičke, za blok između ulica Jovana Rajića, Žičke i Gružanske.
Naručilac plana je SAV gradnja d.o.o. iz Beograda, nosilac izrade plana je Sekretarijat za urbanizam i građevinske poslove, dok je obrađivač arhitektonski studio Arhim d.o.o. sa Novog Beograda. Za odgovornog urbanistu imenovan je Veljko Mladenović, diplomirani inženjer arhitekture.

Plan orijentaciono predviđa porast BRGP stanovanja sa 12.900 m² na 20.862 m², dok se BRGP komercijalnih sadržaja povećava sa 2.500 m² na 3.807 m².
Granicom predloženom Izmenama i dopunama PDR-a razrađuje se prostor površine od oko 0,6 ha. Prema PGR-u, na predmetnoj lokaciji su planirane površine za stanovanje (zona višeporodičnog stanovanja u formiranim gradskim blokovima u centralnoj i srednjoj zoni grada – zona S5), mešoviti gradski centri u zoni više spratnosti (zona M4), te mreža saobraćajnica.
Plan orijentaciono predviđa porast BRGP stanovanja sa 12.900 m² na 20.862 m², dok se BRGP komercijalnih sadržaja povećava sa 2.500 m² na 3.807 m², čime dolazimo do ukupne predviđene BRGP od 24.669 m². Broj stanova raste sa 215 na 300, broj stanovnika sa 537 na 810, a broj zaposlenih sa 62 na 118.

Rani javni uvid do 13. marta
Zainteresovana lica mogu tokom ranog javnog uvida svoja mišljenja na planirana rešenja u pisanoj formi dostaviti Sekretarijatu za urbanizam i građevinske poslove, Beograd, Kraljice Marije 1, zaključno sa 13. martom 2026. godine.
NAPOMENA REDAKCIJE
Ovaj tekst predstavlja informativni prikaz javnog uvida u plansku ili projektnu dokumentaciju, u skladu sa važećim procedurama i rokovima propisanim od strane nadležnih institucija.
Objavljivanjem ovakvih sadržaja, Gradnja ne izražava podršku, saglasnost niti promociju predloženih rešenja, već ima za cilj da pravovremeno informiše javnost – kako stručnu, tako i širu – o aktivnim i budućim projektima koji mogu imati značajan uticaj na prostor, životnu sredinu i kvalitet života.
Posebno naglašavamo da je svrha ovakvih objava da skrene pažnju na mogućnost javnog učešća, kao i da jasno istakne rokove u kojima građani, organizacije i stručna javnost imaju pravo da podnesu primedbe, sugestije i prigovore u okviru zakonom predviđenog procesa.
Gradnja podržava transparentnost, javni dijalog i aktivno učešće građana u odlučivanju o prostoru, i ohrabruje sve zainteresovane da iskoriste mehanizme javnog uvida ukoliko imaju stav, zabrinutost ili predlog u vezi sa predstavljenim projektom.

Zbogom Beograde.
Jedino što bi valjalo je da se zgrada parohijskog doma ukloni iz parka kod Hrama…sve drugo je preterivanje!
Bilo bi bolje i vrednije za tu lokaciju veliku i prostranu garažu izgraditi,stanova je i previše.
Ma da, sve za automobile! Jel shvatate da nas guše, i na parkinzima, i u saobraćaju, i da zbig podzemnih garaža nemamo ni zelenilo oko zgrada, ali imamo poplave. Mućnite malo glavom, koja ne razmišlja samo sebično. Beogradu je jedini spas bolji javni prevoz i obavezno smanjenje broja automobila… kao što rade sve pametne metropole.
Unistise Vracar. Stalno menjaju planove zakone prave za sebe. Koliko lepih zgrada su porusili koje su zidane od pune cigle kvalitetno. Jesu li jednu lepu napravili. Kad toliko ljudi smestis na malom prostoru onda to nije kvalitet zivljenja. Prvo su nadzidjivali svaku zgradu sa po dva sprata. Problem parkiranja guzve na ulicaama. Neznalice ne osecaju duh grada
Mislim da izmeštanje Hrama na lokaciju Expa je pravi pogodak, prvo ima li bi manju buku od crkvenih(istina nepravoslavnih)zvona, drugo mogli bi nesmetano da napravimo jedno moderno naselje.
To je za njih sasvim logična ideja
Kome toliki stanovi? Možda iz neke galaksije stižu stanovnici,a ne znamo…?
Skroz su upropastili ceo Svetosavski plato- nemaju nikakav estetski osećaj a tek duhovni ni lek kao ni za kulturu! Pogledajte šta upravo trenutno prave od male fine Skerlićeve ulice : porušili one divne velike zelene predbaste lepih jednospratnih kuća sa početka 20. koje su obe u odlučnom stanju jer su kvalitetno gradjene a i redovno održavane kako to danas jedino i rade stare beogradske porodice, a ulicu skoro napunili odvratnim jeftinim novogradnjama kojekakvih novokomponovanih “preduzimača” i to nedozvoljenih visina i brojem spratova pa su sve “pod legalizacijom” – a kakve bi i mogle da budu kada znamo ko ih “gradi” naročito na Vračaru ali i po celom starom divnom prelepom Beogradu !?
Aha, ne odgovara vama istina- vidim!
Foliranti jedni.