Brajtonska balerina: Arhitektura u kojoj prostor „pleše“
Zgrada dinamične, skulpturalne forme smeštena je iza zakrivljene fasade od opeke i kremena koja predstavlja most između monumentalnog i savremenog izraza.
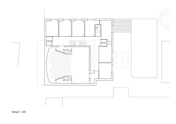
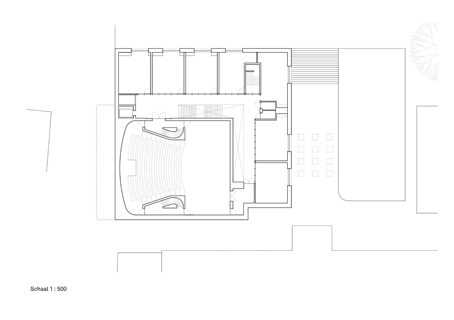
Delo holandskog arhitektonskog studija KRFT, novi Centar izvođačkih umetnosti za engleski Brajton koledž može se na prvom mestu pohvaliti svojom potpuno opremljenom, multifunkcionalnom pozorišnom salom sa 400 sedišta.
Zgrada površine od 3.000 metara kvadratnih obuhvata i studijske prostore, društvene prostore i učionice, stvarajući direktnu vezu između vežbe i izvođenja na veoma kompaktnoj lokaciji u okviru monumentalnog neogotskog kampusa.
Pročitajte još na Gradnja.rs:

Mnogo sadržaja na ograničenom prostoru
Ukupna površina koju je objekat zahtevao za sve svoje sadržaje bila je prilično velika u odnosu na ograničen prostor, koji je „stisnut“ između zaštićene glavne zgrade koju je projektovao arhitekta Ser Gilbert Skot i novoizgrađene Škole za sport i nauku.
Izdvajanjem novog objekta od ovih monumentalnih zdanja, nastali su intimniji spoljašnji prostori, ali je to ujedno zahtevalo veoma precizno i promišljeno prostorno rešenje kako bi se zgrada uklopila u okruženje, objasnile su holandske arhitekte.

Zakrivljena fasada od opeke i kremena predstavlja most između monumentalnog i savremenog izraza, kroz dinamičnu igru lokalnih i istorijskih materijala.
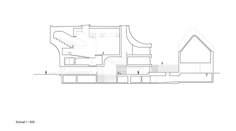
Ovaj prostorni „puzzle“ uslovio je da pojedine prostorije izlaze iz osnovnog gabarita parcele. Zbog toga je pozorišna sala podignuta, čime je prizemlje oslobođeno i namenjeno društvenim prostorima.
Takvo rešenje dovelo je do dinamične, skulpturalne forme, koja gotovo da podseća na balerinu, a obložena istim materijalom na svim fasadama i krovnim površinama. Zakrivljena fasada od opeke i kremena predstavlja most između monumentalnog i savremenog izraza, kroz dinamičnu igru lokalnih i istorijskih materijala.

Podzemni studiji, podignuta pozorišna sala i društveni prostori u prizemlju povezani su trodimenzionalnim javnim enterijerom.
Podzemni studiji, podignuta pozorišna sala i društveni prostori u prizemlju povezani su trodimenzionalnim javnim enterijerom, sa širokim stepeništima koja se uzdižu i spuštaju, obasjana prirodnim svetlom.
Sama pozorišna sala je kompaktan, inteligentno izdetaljisan „drveni kutak za igru“, sa okulusom za prodor dnevnog svetla, što joj omogućava da se koristi i kao prostor za svakodnevne probe.

Ključno mesto susreta za sve studente
U srcu zgrade nalazi se centralna praznina, koju oživljava veliko stepenište koje uvlači dnevnu svetlost duboko u unutrašnjost. Ovaj prostor, poznat kao Forum, predstavlja društveno središte: trodimenzionalno mesto okupljanja sa kafićem, salonom i stepenicama za sedenje koje brišu granicu između cirkulacije i performansi.
Kako ističu iz KRFT, projekat je poslednji deo slagalice desetogodišnjeg master plana za nadogradnju kampusa novim nastavnim, internatskim i sportskim objektima. „Njegov položaj – na raskrsnici svih glavnih puteva kampusa, čini ga ključnim mestom susreta za sve studente“, zaključuju arhitekte.
Pogledajte video!
Grafički prilozi
Foto-galerija
Faktografija
Performing Arts Centre Brighton College
Brajton, Velika Britaija
Thomas Dieben
3.880 m²
2024.
Jim Stephenson









Једна стереотипна организација простора над којом лебди насилно обликована форма. Чему…?!
Pa arhitekta je tako zamislio. Sve forme su nasilno oblikovane. Izgradjena sredina je nasilna kao takva…
Ja sam uvek za ples.
Zgrada je razigrana, kao da kaže: pleši sa mnom, takva sam i gotovo…