Dinarska kuća na Mokroj Gori za 21. vek
Fasada od belog bora, veliki stakleni otvori i rafinirana forma krova su samo neke od specifičnosti ovog ukrasa na našoj planinskoj lepotici.
Sa radom Pavla Panića, osnivača i glavnog arhitekte novosadske firme Studio 13, upoznali smo vas u junu prošle godine sagledavanjem projekta edukativnog centra Gourmet u fruškogorskom turističkom mestu Vrdnik, izrađenog sa Željkom Baričićem iz firme BI Inženjering kao koautorom.
Ovog puta, Panić nam predstavlja svoj samostalni autorski projekat, koji je takođe smešten u planinsko okruženje, ali u gotovo 300 kilometara udaljenoj Mokroj Gori, naseljenom mestu kraj Užica koje se nalazi na granici između Tare i Zlatibora i na granici Srbije i Bosne i Hercegovine.
Jednostavno nazvan Porodična kuća Tara, ovaj stambeni objekat sa garažom u dnu parcele projektovan je 2021. godine, a realizovan dve godine kasnije, te danas zauzima površinu od oko 120 metara kvadratnih, predstavljajući novi ukras u slikovitom pejzažu naše planinske lepotice.
Pročitajte još na Gradnja.rs:

Fokus na Fokusovom kaminu
Osnovni zahtev klijenta je bila kuća za odmor na obronku padine, sa minimalnim prostorima za spavanje, otvorenim dvoetažnim dnevnim prostorom i Focusovim kaminom kao centralnim dekorativnim elementom, objašnjava Panić.
„Veliki stakleni otvori su bili imperativ kako bi se maksimizirali pogledi koji se pružaju sa lokacije prema planinskim vencima u BiH i prema Zlatiboru sa druge strane i kako bi se u svakom vremenskom periodu stekao utisak otvorenog prostora unutar objekta“ – kaže novosadski arhitekta.

Specifičnost ove kuće ogleda u modernoj interpretaciji tradicionalnog tipa gradnje koji se ogleda u dinarskoj kući
Specifičnost ove kuće ogleda u modernoj interpretaciji tradicionalnog tipa gradnje, koji se pak ogleda u dinarskoj kući kao pretežnom tradicionalnom tipu gradnje u ovoj oblasti.
„Pored specifičnih zahteva u pogledu materijalizacije, nagiba krova i uslova gradnje, zahtev je bio i da kuća dobije i moderniju oblikovnu formu“ – kaže za Gradnju arhitekta Pavle Panić.
Rafiniranje dizajna
Osnovna ideja je bila uklapanje velikih i na ovoj lokaciji netipičnih staklenih otvora, kao i funkcionalne dispozicije sa specifičnim zahtevima u velike nagibe krovnih ravni koji su potrebni zbog oštrih klimatskih uslova na lokaciji.
„Klasičan četvorovodni krov nije bio adekvatan ni sa funkcionalne ni estetske strane. Dobijena forma se rafinirala i prilagodila kako bi bila jasna, dinamična, a opet podsećala na tradicionalnu gradnju u nekoj meri, i kako bi formirala čvrstu ulaznu particiju koja se vidi kada se prilazi objektu iz daljine“ – navodi
„Ulaz je time naglašen iako su sama vrata sakrivena u fasadu. Natkrivena terasa je specifično obrađena sa kosim stubovima koji nose krov u ovom delu“.

Vizure kao mera dispozicije
Što se tiče uticaja okoline i pripadajućeg konteksta na arhitekturu objekta, Panić navodi da je mikrolokacija pre svega svojim vizurama uticala na dispoziciju funkcionalnih zona i osama koje treba da privuče oko ljudi koji borave u prostoru.
„Samih susednih objekata u okolini nema u većoj meri i uglavnom su na manjoj nadmorskoj visini i tradicionalno su građeni tako da se iz samog objekta vide delimično i ne formiraju zajedno neku vrstu celine, što je bila olakšavajuća okolnost pri uklapanju“ – ističe sagovornik Gradnje.

Kamen koji je korišćen za oblaganje je nabavljen sirov, iz kamenoloma u BiH.
Po pitanju materijalizacije, objekat je AB skeletnog tipa, sa kamenom vunom za izolaciju i drvenom fasadom, sačinjenom od lokalnog belog bora, koji je neposredno u blizini sečen, obrađen i osušen kako bi bio adekvatan za ovu namenu, objašnjava dalje autor.
„Kamen koji je korišćen za oblaganje je nabavljen sirov, iz kamenoloma u BiH, isto blizu same lokacije. Na taj način je dovođenje i upotreba fasadnog materijala svedena na lokalni karakter. Crep je kompanije Tondach, imitacija biber crepa koji je već korišćen na par objekata u okolini i koji je dugotrajniji od tradicionalne šindre koja se koristila ranije“ – kaže Panić i nastavlja:
„Zidovi su od Ytong bloka, plafoni gipsani, a ploča između etaža je kombinovano TM tavanica i puna AB ploča. Fasada je ventilisanog tipa, sa drvenom podkonstrukcijom, kamenom vunom kao termoizolacijom i talpama premazanim bojom bez pigmenta kako bi prirodna boja drveta bila izražena.

Od dnevne zone do garaže
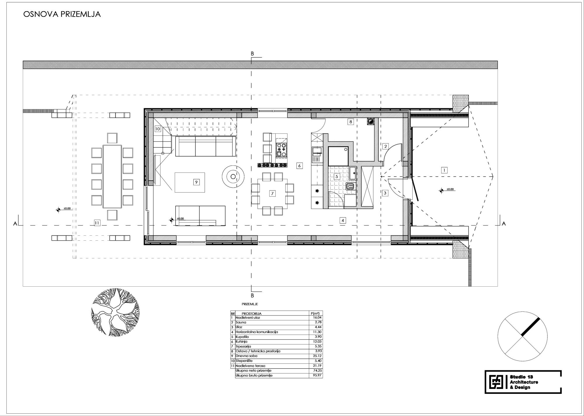
Objekat je podeljen na dve funkcionalne zone u dve etaže i to prizemlje kao dnevna zona sa otvorenim prostorom za boravak koji čine kuhinja, trpezarija i dnevni boravak, iznad kojeg se delimično nalazi galerija velike visine. Pored toga, donekle su sakrivene servisne prostorije poput ostave, kupatila i saune.
„Iz velike otvorene zone se izlazi na natkrivenu terasu. Gornja zona je podeljena u blok za spavanje sa dve sobe sa kupatilom, kao i mali dnevni deo koji može da se koristi kao pomoćno spavanje sa koga se izlazi na malu terasu i na koji se pristupa sa donje etaže. Dva dnevna boravka deli vazdušni prostor i čine veću otvorenu celinu“ – navodi Panić.
Donja etaža je zamišljena kao otvorena, izuzimajući kupatila i servisne prostorije, dok je na gornjoj etaži, osim minimalnih soba, predviđen i otvoren manji boravak sa izlazom na terasu koja uokviruje pogled prema planinskim vencima.
„Garaža je formirana u donjem delu parcele, pored asfaltiranog puta, sakrivena u deo brda, delimično ukopana i prekrivena zelenim ekstenzivnim krovnim pokrivačem koji se uklapa u okolnu floru i time čini garažu nevidljivom sem frontalnog pogleda“ – objašnjava Panić.

Koordinacija na relaciji Mokra Gora – Novi Sad
Najveći izazov pri samom projektovanju bili su zahtevi same lokacije u pogledu nagiba, visokog rastinja koje je trebalo sačuvati i pozicioniranja objekta na istaknutoj mikrolokaciji, zajedno sa zahtevom klijenta u vidu moderne interpretacije tradicionalne kuće sa velikim staklenim otvorima koje treba prilagoditi brzo promenljivim i oštrim klimatskim uslovima.
„U fazi izvođenja je bilo specifično koordinisati kako lokalne izvođače, tako i one koji su dolazili iz Novog Sada, kao i moderne tehnike gradnje i tradicionalne kamenorezačke i tesarske tehnike“ – objašnjava novosadski arhitekta.

Minimalan uticaj na okolinu
U eksterijeru je delimično izvršena sadnja mladica na obroncima padine, dok su veliki delovi stene na koju se naišlo pri kopanju temeljne jame raspoređeni kako bi se razbila monotonost velikih zelenih površina oko objekta.
„Planirana je sadnja trava u zadnjem delu na škarpi kod potpornog zida. Osim toga, nije planirana veća intervencija kako bi uticaj objekta na okolinu bio minimalan“ – navodi na kraju Pavle Panić iz arhitektonskog biroa Studio 13.
Grafički prilozi
Foto-galerija












Faktografija
Porodična kuća Tara
Mokra Gora, potez Miloševac
privatni
Pavle Panić
2021.
2023.
118,15 m² neto, 189,21 m² bruto
P+Pk i pomoćni objekat/garaža P
Gradnja Savić MS (AG), EnergyNet (M), Light System Design (E), Boby & Stef (Aluminijum)






Nije „na“ Morkoj Gori nego U Mokroj Gori.
mis’im ja realno ne kapiram naše arhitekte zaista, verovatno su to neke frustracije iz detinjsva da u parternom delu ulaziš u objekat i udaraš u ormar, a na spratu u televizor čovee, ja to ne razumem i nikad neću
Prolazio tuda nedavno i mogu da kazem da izgleda fino, u odnosu na objekte u okolini iskorak u estetskom smislu, a opet zadrzava neki smek graditeljskog nasledja tog kraja.
Odličan projekat! Spoj funkcije i forme fantastičan, nasleđe, adekvatna materijalizacija… Bravo
broj 9