Preuzmite Revit model toaleta za osobe s invaliditetom
Ovaj model pomoći će vam da u popularnom BIM programu osmislite kupatilo za osobe kojima je otežano kretanje.
Propisi odavno nalažu da javni prostori moraju da uključuje i elemente koji će osobama s invaliditetom olakšati kretanje. Međutim, kako je ova sfera dizajna relativno nova, mnoge arhitekte se ne nalaze baš najbolje sa kreiranjem takvih prostora. Prilagodljivi Revitov model rešava ovaj problem!
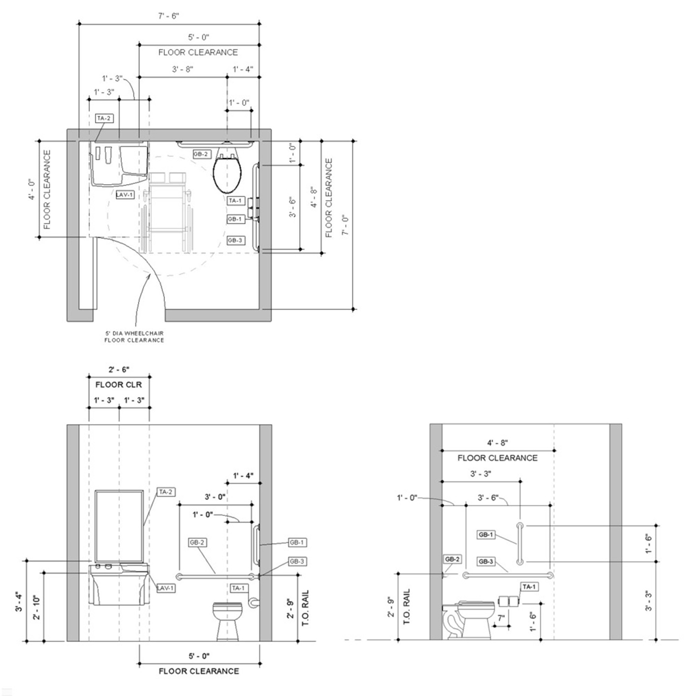
Bradley Corporation, američki proizvođač vodoinstalacija i kupatilskog nameštaja razvio je standardizovan model za kupatilo namenjeno osobama s invaliditetom. Ovaj model baziran je na osnovnim zahtevima koji moraju biti inkorporirani u ovakav projekat, a propisale su ih organizacije kao što su ADA i ANSI. Revit model pred vama prikazuje primer pristupačnog kupatila za jednu osobu sa invaliditetom. U njemu se pored ostalog, nalazi lavabo sa senzorom za pranje ruku (u pitanju je „3-u-1“ varijanta koja uključuje sapun, vodu i sušilicu), kao i mnogobrojne sigurnosne rukohvate.

Kompletan fajl sa pojedinačnim proizvodima možete preuzeti OVDE.
Napomena: Pre nego što ovaj model uključite u svoj dizajn, ne zaboravite da proverite propisane standarde koji važe u našoj zemlji!
Foto: Bradley BIM-Revit Resource Portal
