Projekat pretvaranja dela železničke stanice u Helsinkiju u hotel
Za nedovoljno iskorišćeno istočno krilo stanice sproveden je konkurs kako bi se dobilo rešenje koje bi transformisalo i modernizovalo problematični prostor.
Čuveni finski arhitekta Eliel Sarinen projektovao je glavnu železničku stanicu u Helsinkiju davne 1914. godine. Priliku da funkcionalno upotpuni celokupan njegov projekat dobila je arhitektonska firma Futudesign. Naime, na nedavno sprovedenom konkursu njihovo rešenje proglašeno je za najbolje jer se, kako se navodi u saopštenju žirija, kroz njihov projekt reinterpretira originalna namera slavnog arhitekte.
Pobedničko rešenje pravi suptilni dijalog između starog i novog.
Novo proširenje predstavlja nastavak i reinterpretaciju osnovne ideje Eliela Sarinena. Prema predstavljenom rešenju, dva postojeća kraja kompleksa železničke stanice biće naglašena, dok će se prostor između iskoristiti za smeštanje hotela. On će popuniti prostor između dva objekta formirajući zakrivljenu fasadu ka preoblikovanom atrijumu, piše piše ArchDaily.
Na fasadi objekta će se koristiti materijali koji poštuju istorijsko nasleđe, odnosno, Sarinenov dizajn čime će se stvoriti, kako se navodi u projektu, „suptilni dijalog između starog i novog.“
Prizemnim delom modifikovanog dela železničke stanice dominiraju lučni prozori koji su u skladu sa originalnim dizajnom železniče stanice. U ovom prostoru će putnici, kao i lokalno stanovništvo, moći da popiju kafu ili iskoriste prijatno uređen prostor za rad.
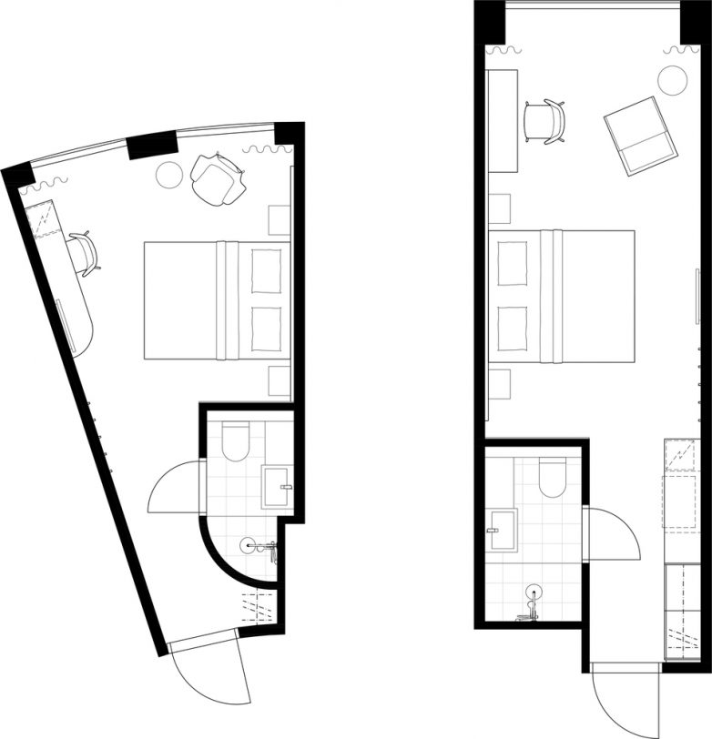
Svaka hotelska soba biće povezana s centralnim hodnikom koji prolazi kroz objekat i omogućava pogled na atrijum.
Centralni atrijum pruža protok prirodnog svetla kroz čitav objekat.
Očekuje se da će intervencija na ovom objektu biti završena do 2020. godine.
Rendering: Futudesign








