Druga i treća nagrada za proširenje depoa Narodne biblioteke
Predstavljamo sva nagrađena rešenja za proširenje depoa Narodne biblioteke Srbije u Beogradu.
Narodna Biblioteka Srbije, u saradnji sa Društvom arhitekata Beograda, raspisala je u decembru prošle godine arhitektonski konkurs za idejno rešenje proširenja postojećeg depoa biblioteke, a povod je bio nedostatak prostora za smeštaj bibliotečke građe.
Prvu nagradu na konkursu osvojili su autori prof. Branislav Mitrović, d.i.a. i doc. dr Đorđe Alfirević, d.i.a. kao i projektanti Dušan Međedović, mast.arh., Uroš Majstorović, mast.arh., Stefan Lakić, mast.arh., Dušan Grujović, mast.arh. Ovo rešenje možete videti u posebnom članku.
Druga nagrada
Drugu nagradu osvojili su tim koji čine: Anđela Karabašević, Vladislav Sudžum, Ana Petrović, Aleksa Bekić, a konkursno rešenje je rađeno u okviru arhitektonskog studija AKVS arhitektura iz Beograda.
Arhitektura pejzaža
Kako kažu arhitekte, projekat proširenja postojećih depoa Narodne biblioteke Srbije ima za cilj da oživi usnulu tačku u srcu vibrantne centralne zone glavnog grada. U kompleksnom gradskom tkivu kao što je ovo, neposredno uz impozantnu zgradu Narodne biblioteke, i velike i značajne ozelenjene javne prostore grada, nova arhitektura teži da ostane minimalna, i u okviru morfologije terena, suptilno proizilazeći iz pejzaža na koji se nadovezuje.
Nova arhitektura teži da ostane minimalna, i u okviru morfologije terena, suptilno proizilazeći iz pejzaža na koji se nadovezuje.
Osnovnom arhitektonskom intervencijom zasecanja i razmicanja ravni tla u dva poteza – jedan deo se odiže, i novi gradski izložbeni prostor smešta se ispod i otvara se ka jugu, dok se drugi deo upušta formirajući zaštićeni mikroambijent novog ulaznog platoa Galerije. Sa strane Svetosavskog platoa i iz Nebojšine ulice, objekat ostaje u linijama partera, i samo nagoveštava svoje postojanje, primarno pružajući ozelenjenu oazu u podnožju Biblioteke.
Sa druge strane, ka Skerlićevoj ulici, izdiže se i određuje novi identitet gradske celine koja je do sada tretirana kao neaktivna i samo u momentima kao prolazna. Pokrenute ravni tla su potpuno ozelenjene, nadovezuju se na dodirne parkovske celine i formiraju nove tačke sagledavanja prirodno i semantički izuzetno bogatog okruženja.
Jedini fasadni zidovi su masivni prozračni volumeni koji izranjanju iz unutrašnjosti Galerije, i isijavaju ujedno i ka eksterijeru i u enterijeru.
U širem kontekstu, pravci zasecanja tla pozicionirani su tako da omoguće povezivanje dva velika i značajna javna gradska prostora – Svetosavski plato i Karađorđev park, koji su trenutno grubo razdvojeni usnulim prostorom samog mesta intervencije, kao i Nebojšinom ulicom koja je intenzivno opterećena saobraćajem, paralelno sa Bulevarom oslobođenja.
Ulazni plato i pešačke površine su tako pozicionirane da omogućavaju kružnu vezu Svetosavskog platoa, Narodne biblioteke, ulaznog platoa nove Galerije, i Karađorđevog parka. Pristup Galeriji je dvojni, tako da i ona zadržava karakter vibrantne prometne zone grada – glavni pristup je sa platoa iz Skerlićeve ulice, dok je sa strane Svetosavskog platoa omogućen direktan pristup dugačkom rampom koja se spušta ispod nivoa tla, otkrivajući obrise skrivenih prostora Galerije. Oba prilaza susreću se u ulaznom holu, odakle je početna tačka obilaska izlagačkog prostora. Ulazni plato je delom zakošen ka Biblioteci, tako da formira zonu neformalnog sedenja u javnom prostoru grada, i specifičan prostor okupljanja prilikom svečanih otvaranja izložbi.
Kaskadirani izlagački prostor
Veliki reprezentativan izlagački prostor zauzima zonu odmah ispod pokrenutih ozelenjenih ravni tla, ujedno i krova Galerije, i kaskadno je fomiran tako da volumetrijski prati pad krovnih ravni iznad, kako bi se sa tačke ulaza sagledavao ceo prostor u planovima. Ulazni hol proteže se celom dužinom objekta na najvišoj koti, sa pogledom na postavku sa visine, i sa izložbenim delom je povezan rampom.
Izložbeni prostor čine tri celine kroz koje se kruži – glavni deo koji je odmah vildjiv sa ulaza, deo izložbe koji je skriven niže u dubini i multimedijalna sala kojom se završava obilazak postavke. Radni prostor za zaposlene je smešten u volumenu koji povezuje Galeriju sa Bibliotekom, tako da gleda na ulazni plato, osunčan je sa juga, i direktno je povezan i sa novim i sa postojećim prostorom. Prostori za smeštaj arhivske građe zauzimaju jednu polovinu nivoa -2, neposredno uz postojeće depoe Narodne Biblioteke, i prostiru se u punoj površini etaža -3 i -4 ispod.
Prozračni zid: iznutra-spolja
Jedini fasadni zidovi objekta su masivni prozračni volumeni koji izranjanju iz unutrašnjosti Galerije, i isijavaju ujedno i ka eksterijeru i u enterijeru, gradeći ambijentalnu i mentalnu vezu podzemnog i nadzemnog prostora. U parteru, lagani prozračni zid nosi velike ozelenjene krovove, dok iznutra prolazi kroz sredinu izlagačkog prostora, formirajući manje celine kroz koje se kruži u obilasku postavke. Masivne krovne ozelenjene ploče nosi čelična konstrukcija u okviru samih prozračnih zidova, tako da je ona sakrivena duplim slojem mutnog stakla spolja i iznutra, praveći efekat velikog prozračnog volumena zida koji gradi i fasadu i unutrašnjost Galerije.
Krovne ploče su u detalju blago zakošene na ivicama tako da je samo tanka okapnica vidljiva na staklenoj fasadi, a masivnost krovne ravni je sakrivena iza. Mutno staklo filtrira direktnu dnevnu svetlost i pušta je difuzno u izlagački prostor, dok noću, po oblačnom danu ili u
zoru isijava različitim intenzitetima ka parteru. Parterno uređenje je jednostavno i čisto, imajući u vidu blizinu uređenih parkovskih površina. Urbani mobilijar je sveden na minimum, dok su parterne površine ozelenjene travom, i potpuno čiste – bez niskog i visokog zelenila, otvaraju i usmeravaju poglede ka zgradi Narodne biblioteke, i parkovima u okruženju.
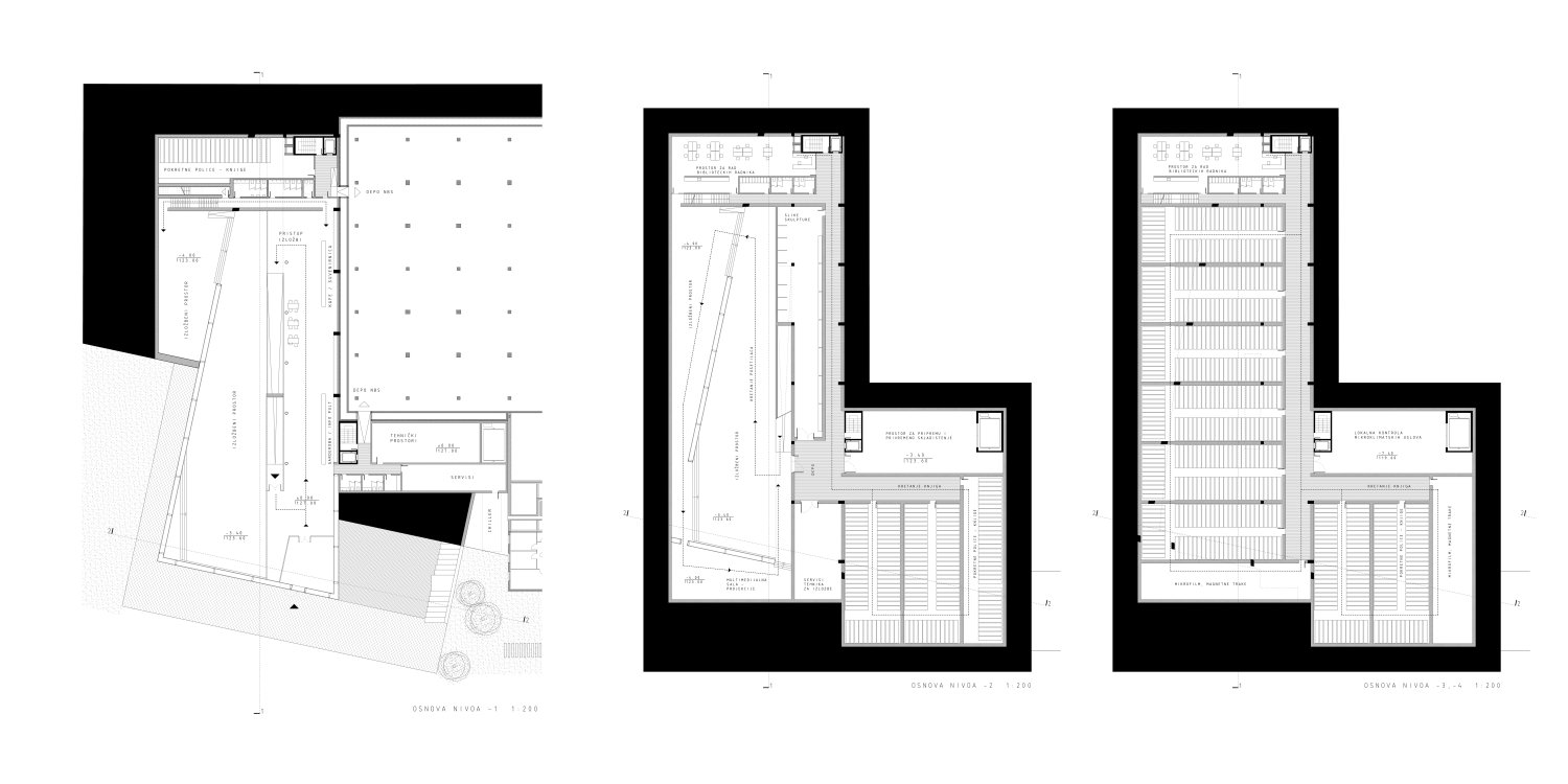
Treća nagrada
Treća nagrada pripala je timu koji čini: Zoran Radojičić i Dejan Miljković, sa projektantima saradnicima: Petar Sazdanović i Vida Nedeljković. Rad je izrađen u okviru biroa „ARCHTIC d.o.o.“ i „Dejan Miljković arhitekti d.o.o.“
Koncept predloženog rešenja je formiranje prostorno determinisanog javnog prostora ispred postojećeg objekta Narodne biblioteke Srbije. Denivelisanjem postojećeg terena formira se novi ambijent – pristupni plato sa glavnim ulazom u multifunkcionalnu salu i uspostavlja se veza između prostora ispred Hrama Svetog Save i Skerlićeve ulice.
Pristup platou je ostvaren celom dužinom iz Skerlićeve ulice, rampama sa prostorom ispred Hrama Svetog Save i stepeništem prema Narodnoj biblioteci Srbije (opciono sa novom vezom ka atrijumu unutar objekta).
Novi prostor je u formi atrijumskog dvorišta čiji ambijent karakterišu stakleni kubusi.
Novi prostor je u formi atrijumskog dvorišta čiji ambijent karakterišu stakleni kubusi, kao elementi koji prostorno i funkcionalno povezuju spoljni, unutrašnji prostor i ulaze u hol multifunkcionalne sale.
Dvovisinski hol povezuje nivo platoa i multifunkcionalne galerije. Fleksibilnost izložbenog prostora omogućena je sistemom kliznih panela – polica.
Administrativni deo je pozicioniran u produžetku postojećeg administrativnog trakta, koji horizontalnim i vertikalnim komunikacijama (stepeništa, rampe, teretni lift/platforma) povezuje sve nove sadržaje sa postojećim objektom.
Topdown izgradnja
Depo je projektovan u predloženom sistemu skladištenja u podzemnim etažama i rampama je povezan sa postojećim depoom objekta Narodne biblioteke Srbije. Primenom tehnologije iskopavanja i gradnje odozgo-nadole (topdown), obezbediće se stabilnost postojećeg objekta i ostvariti neophodan prostor za smeštaj bibliotečke građe.
Srodni link:
















jako dobar rad kolega iz AKVS
no, čudno da Brana i Deki nisu u istom timu s obzirom da su radili projekat za Svetosavski Plato