Šah parket kao polazna tačka za renoviranje stana u Lisabonu
Pogledajte kako izgleda stan s hodnikom dugačkim 15 metara i u kojem je jedina svetla tačka bio postojeći pod.
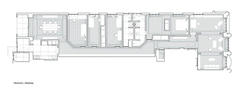
Projektni biro Aboim Inglez Arquitectos dobio je interesantan zadatak da stan od 250 kvadrata u užem jezgru portugalske prestonice adaptira u savremen prostor za život po meri mladog bračnog para. Zadatak im nije bio nimalo lak jer stan ima veoma neobične dimenzije – dug je 33, a širok 7 metara! Ako se tome doda podatak da je hodnik dugačak 15 metara, jasno je kakvo je ovo bila noćna mora.
Međutim, u moru problema arhitekte su našle jednu svetlu tačku, a to je drveni pod. Bio je u relativnom dobrom stanju, protezao se kroz ceo stan i vizuelno je povezao prostorije. Tako je parket poslužio kao polazna tačka za renoviranje ovog šarmantnog stana.
Jedan od izazova bio je šta uraditi s hodnikom dugačkim 15 metara. Dobio je još jednu ulogu!
Interesantan parket, složen u šah polja, bio je zreo za osvežavanje. Nakon dodavanja daski koje su nedostajale, presložavanja na pojedinim mestima, usledilo je hoblovanje i lakiranje pa je on zasijao starim sjajem i poslužio je kao dobar početak za renoviranje stana, piše ArchDaily.
Dugačak i uzak stan
Intervencija je podrazumevala i malu izmenu rasporeda postojećih prostorija. Dnevni boravak je ostao tamo gde jeste, odnosno, ka uličnoj strani stana, spavaći blok je smešten u središnji deo stana, dok su trpezarija i kuhinja prebačeni prema dvorišnoj strani stana. Trpezarija je dobila verandu, dok su se dnevni blok i kuhinja vizuelno povezali.

Iz želje klijenata da stan deluje što svetlije i vedrije, arhitekte su odlučile da pojedina vrata uklone čime je svetlo prodrlo i u hodnike i čime je dodatno naglašena veza između prostora.
Problem dugačkog hodnika rešen je tako što je, pored skidanja vrata i otvaranja prostora, ugrađena dugačka klupa koja je omogućila vlasnicima ovog stana da u njemu mogu i da borave.
Foto: Ricardo Gonçalves








