Staklenik od 9.500 kvadrata nikao na krovu zatvorene pijace
Bašta dodata na postojeću strukturu podeljena je na 4 klimatske zone, a sadrži i prostor duple spratne visine koji je dizajniran radi vertikalnog uzgoja.
Firme Meta Architectuurbureau i Van Bergen Kolpa Architecten projektovale su objekat nazvan Agrotopia, smešten u belgijskom gradu Ruselareu, kao najveći javni objekat u Evropi za urbanu proizvodnju hrane, a koji će se koristiti i za edukaciju javnosti o poljoprivredi.
Staklenik površine 9.500 kvadrata izgrađen je na vrhu poljoprivredne pijace REO Veiling, a projekat je poručen od strane REO Veilinga zajedno sa flamanskim institutom za istraživanje poljoprivrede i hortikulture Inargo.
Pročitajte još na Gradnja.rs:
- Krovne bašte: Kako se pravilno izvode i koje su im prednosti
- Urbani tepih od crvenkastog teraca za novu pijacu u Ptuju

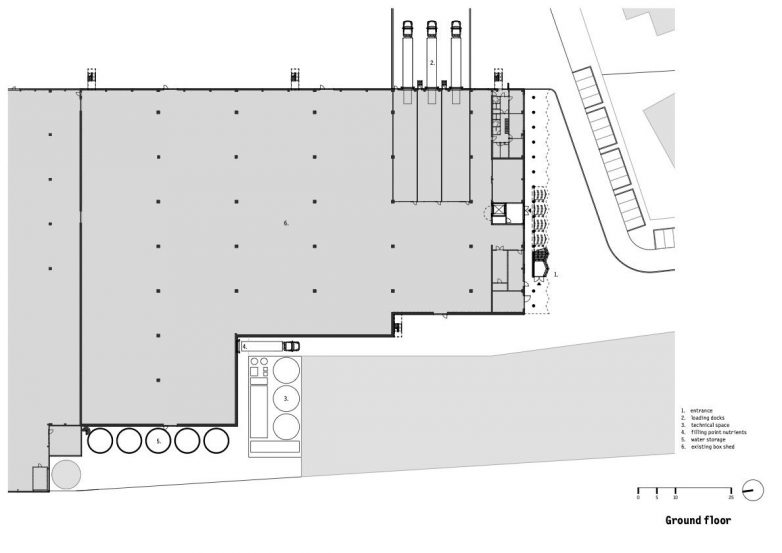
Četiri klimatske zone
U svojoj unutrašnjosti Agrotopia je podeljena na četiri klimatske zone, kako bi se omogućilo uzgajanje velikog broja različitih vrsta voća i povrća, piše Dezeen.
Pored prostora za uzgajanje, objekat sadrži i istraživačke prostore, te obrazovni deo koji je namenjen široj javnosti.
Takođe, arhitekte su kreirale box-in-box prostore unutar toplog i vlažnog staklenika, kako bi područja namenjena istraživanju i obrazovanju imala pogodniju klimu za ljude koji rade u zgradi.

Fasada na kojoj je organizovan ulaz u objekat je fasetirana tako da formira erkere sa širokim stepeništem, koje se proteže duž objekta.
Gledano spolja, Agrotopia izgleda kao jedan kohezivni staklenik koji arhitekti iz Meta Architectuurbureau opisuju kao „ponosnu i providnu skulpturu od čelika i stakla“.
Fasada na kojoj je organizovan ulaz u objekat je fasetirana tako da formira erkere sa širokim stepeništem, koje se proteže duž objekta. Ovaj put vodi do Trga urbane hortikulture, koji predstavlja polaznu tačku za posetioce centra.

Kružna simbioza sa gradom
Staklenik sadrži i prostor duple spratne visine koji je dizajniran tako da podrži vertikalnu kultivizaciju. Dobra osunčanost se garantuje za ovaj prostor, dok se istovremeno stvara pogled bez refleksije na nivou tla.
U podnožju ove staklene bašte nalaze se „silosi“ u kojima se čuva kišnica prikupljena sa krova, a koja se koristi za navodnjavanje staklenika.
Otpad od navodnjavanja se takođe reciklira i ponovo koristi u stakleniku, dok toplotu za grejanje staklenik dobija od obližnje spalionice otpada, kreirajući tako „kružnu simbiozu sa gradom“.

Izgradnja staklenika na vrhu postojeće zgrade nikad ranije nije izvedena u ovom obimu i kroz nju su predstavljeni mnogi izazovi i prilike.
„Ova jedna zgrada sadrži različite klimatske zone, održivo i ekonomično koristi prostor, bavi se istraživanjem uzgajanja voća i povrća u gradu, koristi krov za javnu funkciju i kružno koristi energiju“, istakao je Jago Van Bergen, direktor prakse u Van Bergen Kolpa Architecten.
„Izgradnja staklenika na vrhu postojeće zgrade nikad ranije nije izvedena u ovom obimu i kroz nju su predstavljeni mnogi izazovi i prilike“, dodao je Niklas Debut iz biroa Meta Architectuurbureau.
Agrotopia zapravo predstavlja pilot-projekat flamanske Vlade, nazvan Pilot Projects for a Productive Landscape (PPPL), pokrenut radi finansiranja inovativnih građevinskih projekata koji se suočavaju sa društvenim izazovima.

Grafički prilozi
Foto-galerija
Fotografije: Filip Dujardin










Vise tekstova o ovakvim viyionarskim projektima! Hvala novinarki, uvek bira najbolje teme!