Vila u kojoj jedinu dekoraciju čini igra svetlosti
Rekonstrukcijom postojećeg objekta kreiran je prostor koji pruža mir i utočište.
Po projektu biroa ZAV Architects u Iranu, u gradu Purkan nedaleko od Teherana, podignuta je vila od 142 kvadratna metra na mestu stare, derutne kuće. Prvobitna ideja klijenata bila je da se podigne potpuno novi objekat ali posle stručne analize, arhitekte su ih ubedile da je pametnije uraditi sveobuhvatnu rekonstrukciju kojom će kuća dobiti savremen izgled, a pritom bi zadovoljila i njihove želje.
A njihove želje bile su da prostor bude rasterećen detalja, da pruža mir i utočište ali da u isto vreme bude prostor u kojima će se moći organizovati velika druženja. Upravo su to i dobili!
Na prozore su dodati stakleni paneli u tri boje koji prave toplu atmosferu kada kroz njih prođu sunčevi zraci.
Projekat je vođen uz poštovanje tri osnovne strategije: da se vila obnovi uz korišćenje lokalne tehnologije i materijala, da se otvoreni i zatvoreni prostor što bolje integrišu s dvorištem, kao i da se postigne utisak iranskog prostora kroz igru senki, svetlosti i kolorita.
Ovo poslednje postignuto je tako što su na prozore dodati stakleni paneli u tri boje koji prave toplu atmosferu kada kroz njih prođu sunčevi zraci. Pošto je prostor lišen detalja i pošto je on potpuno beo i minimalistički, ova pokretna koloritna šema spiritualno obogaćuje prostor, piše ArchDaily.
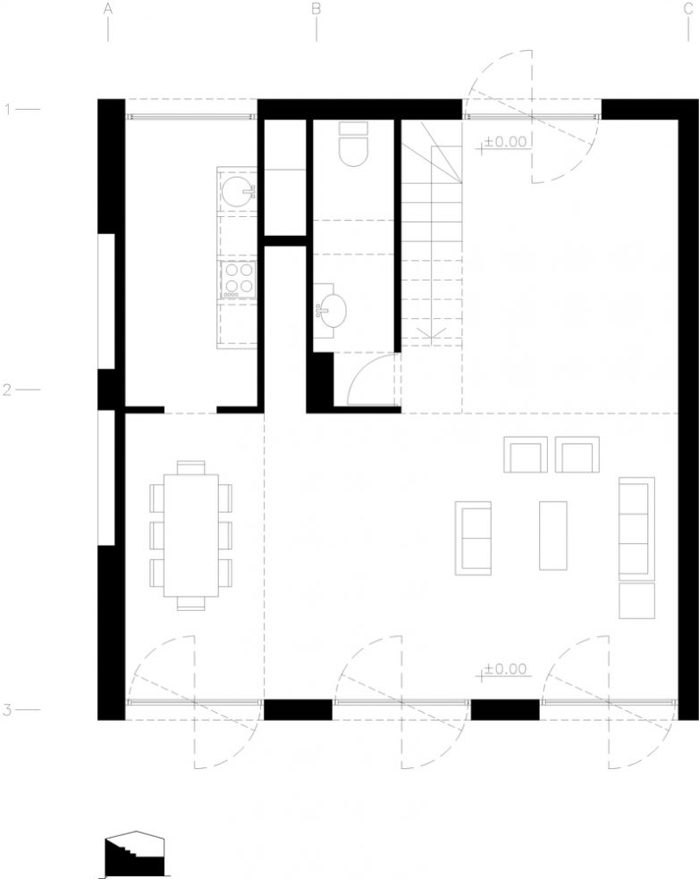
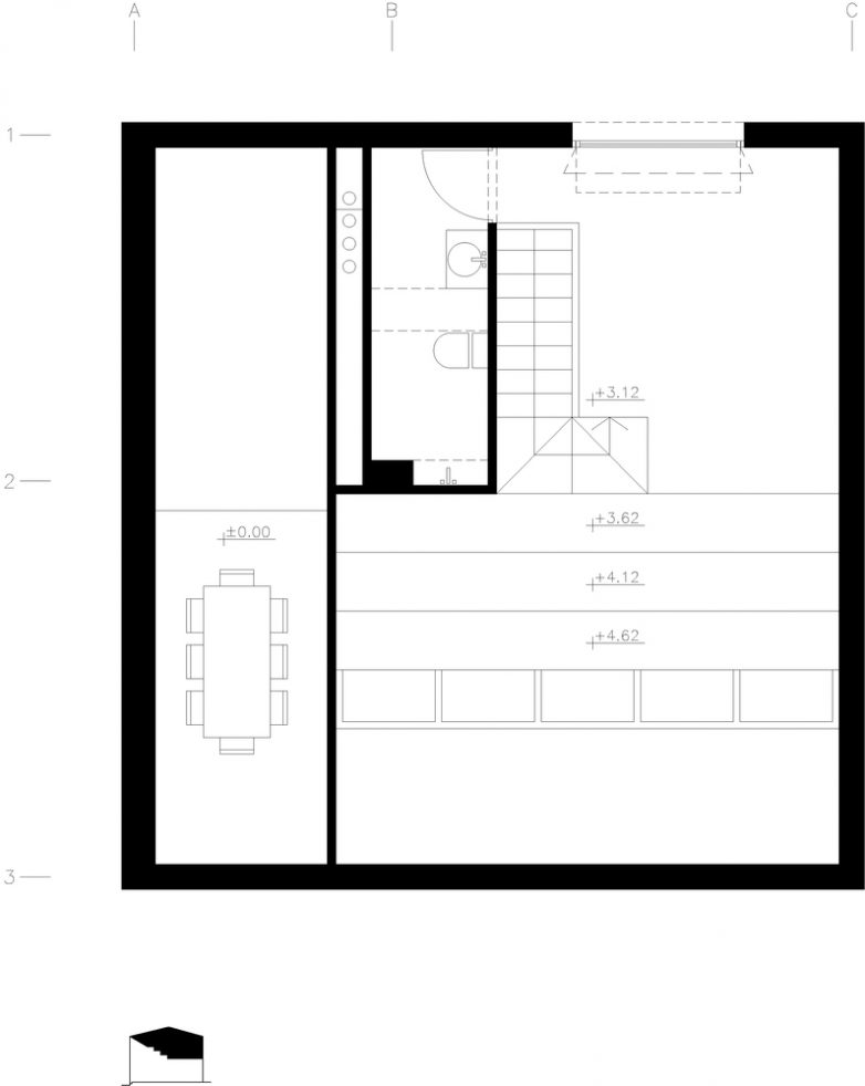
Objekat na dve etaže sačinjen je od tri međusobno povezana prostora. Na prizemlju je dnevni boravak sa kuhinjom i trpezarijom dok je na spratu smešten galerijski prostor sa toaletima. A spavaće sobe? Ne u ovoj vili se ne spava!
Prozori su urađeni tako da se veza između enterijera i eksterijera bude što tešnja.
Kuća je na bočnim stranama zatvorena, dok je na frontalnim stranama potpuno otvorena velikim staklenim površinama.
Igra svetlosti nastavlja se i noću kada svetlo prodire iz unutrašnjosti ka spolja.
Osnove vile
Foto: Soroush Majidi








