Stambena zgrada Forte u Melburnu; Foto: Lendlease
Konstrukcije

Zbog čega je smreka za kulu u Australiji dopremljena čak iz Austrije

Prva australijska stambena zgrada sa CLT panelima, dopremljenim s drugog kraja sveta, imala je dalekosežne posledice po budućnost tamošnje građevinske industrije. 

Objekat Forté, kada je izgrađen 2012. godine od unakrsno lameliranog drveta (CLT), sa svojih deset spratova i 32 metra visine bio je dugo na svetskom tronu u svojoj kategoriji.

Zgrada je napravljena od 759 CLT ploča, izrađenih od evropske smreke, koju je u Austriji uzgajala kompanija KLH, a koje su kao gotov materijal spreman za izgradnju transportovane u Australiju.

Pročitajte još na Gradnja.rs:

Zgrada je napravljena od 759 CLT ploča izrađenih od evropske smreke; Foto: Lendlease

Nova era održivog razvoja

„Eksplozivna želja za novim i prirodnim, zapravo je trenutak sretanja moderne arhitekture sa prirodnim građevinskim materijalom, zvanim unakrsno lamelirano drvo (CLT),  koji će otključati novu eru održivog razvoja i zdravijeg života u budućnosti“, rekli su za Dezeen u vreme izgradnje objekta iz firme Lendlease.

Za razliku od Evrope u kojoj se ovaj revolucionarni materijal godinama koristio, Australija je u vreme izgradnje objekta bila tek na početku primene CLT-a.

Stanovi maksimalno iskoriste sunčevu svetlost i potencijal prirodne ventilacije; Foto: Lendlease

Sa svojih deset spratova i 32 metra visine, objektat je dugo bio na svetskom tronu u svojoj kategoriji.

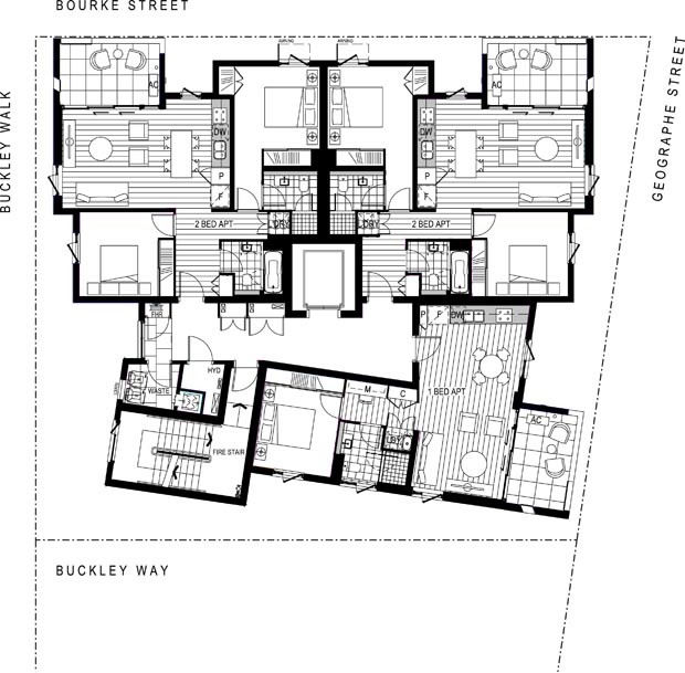
Sa lokacijom u luci Viktorija u Melburnu, Forté se sastoji od 23 stambene jedinice i to sa tri jedinice po spratu, a tu je i maloprodajni prostor u prizemlju.

Zgrada ima kubičnu formu i višeslojni eksterijer koji je naglašen izbočenim prozorima i balkonima obloženim drvetom. Stanovi su projektovani tako da maksimalno iskoriste sunčevu svetlost i potencijal prirodne ventilacije.

Pod, koji je takođe izveden od CLT-a, ispušten je u odnosu na fasadu kako bi se formirao balkonski prostor za svaki sprat. Zanimljivo je i da su kupatila u potpunosti montažna, te su samo ugrađena u stanove kao modularne komponente.

Osnova tipskog sprata

Kao 400 automobila uklonjenih sa ulica

Ovaj objekat predstavlja prvu australijsku visokogradnju od masivnog drveta, a objekat Forté ima manji celokupan uticaj na životnu sredinu i pored transporta drveta. Ova zgrada je drugi stambeni blok u Australiji koji je dobio ocenu 5 zvezdica od Saveta za zelenu gradnju Australije.

Iako su temelji zgrade izvedeni od armiranog betona, a na ploči u prizemlju i na prvom spratu korišćen je geopolimer betona, ona je svojim većinskim delom izvedena od drveta, te je, kako se navodi, imala za 22% niži ugljenični otisak od uporedivih konstrukcija.

„Forté je smanjio CO2 ekvivalentnu emisiju za više od 1.600 tona u poređenju sa zgradom od betona i čelika, što je ekvivalent uklanjanju preko 400 automobila sa naših saobraćajnica“, rekli su iz Lendlease.

Kupatila su ugrađena u stanove kao modularne komponente; Foto: Lendlease

Budući da je ovo bila prva CLT stambena zgrada u Australiji, struktura je morala da pokaže održivost i sigurnost materijala.

Ipak, postojala je i određena borba prilikom izgradnje. U to vreme bivša šefica za održivost iz Lendlease, Kejt Harisje objasnila da je Forté imao za cilj da „otključa novu eru u budućnosti održivog razvoja tako što će značajno smanjiti svoju emisiju ugljenika“ i ovakva ideja nosi određene izazove sa sobom.

Budući da je ovo bila prva CLT stambena zgrada u Australiji, struktura je morala da pokaže održivost i sigurnost materijala.

„Morali smo da se borimo protiv čeonog vetra skoro tokom celog procesa. Ipak, u kontaktu sa vlastima, bankama, osiguravajućim društvima i drugim zainteresovanim stranama sve je uspevalo. Zgrada je na kraju odobrena na svim nivoima, te su svi stanovi prodati, a lokali izdati“, rekao je Endru Nejland iz Lendlease.

Zgrada ima 10 spratova i visoka je 32 metra; Foto: Lendlease

Ovakav način gradnje je dobrodošao s obzirom na hitnost stvaranja gradova pogodnih za život, koji su klimatski pozitivni.

Izgradnja ove zgrada uticala je i na zakonsku regulativu, te su tako 2016. godine građevinski propisi izmenjeni kako bi se omogućila izgradnja konstrukcija od drveta do osam spratova visine, bez zahteva za dugotrajnim procesima kontrole.

„Sa sve većim brojem ljudi koji se sele u urbana područja, ovakav način gradnje je dobrodošao, s obzirom na hitnost stvaranja gradova pogodnih za život, koji su klimatski pozitivni. Usvajanje zelenih tehnologija, materijala i građevinskih procesa, kao što je CLT, znači da smo bliže postizanju ovoga“, rekao je svojevremeno bivši izvršni direktor australijskog poslovanja u Lendlease Mark Menhinit.

A transport? A lokalni materijali?

Pojavila su se, naravno, i pitanja zbog čega je smreka morala biti dopremljena sa drugog kraja sveta i koliko je CO2 izbačeno tokom ovog skupog i sporog transporta.

Takođe, struka se pitala da li je kula mogla biti sagrađena od lokalnih materijala čime bi se takođe smanjila emisija CO2.

Sve u svemu, ova zgrada je utrla put korišćenju drveta u visokogradnji pa su joj ovi propusti progledani kroz granje… pardon, kroz prste.

Foto-galerija

Stambena zgrada Forte u Melburnu; Foto: Lendlease
Stambena zgrada Forte u Melburnu; Foto: Lendlease
Foto: Lendlease
Foto: Lendlease
Foto: Lendlease
Foto: Lendlease
Foto: Lendlease
Foto: Lendlease
Foto: Lendlease
Foto: Lendlease
Foto: Lendlease
Foto: Lendlease

Izabrali smo za vas...

Postani deo Gradnja zajednice

Najnovije vesti s našeg portala svakog petka u vašem sandučetu.

Dizajn enterijera

Srodni tekstovi

Ostavite odgovor

Obavezna polja *