3D prikaz sa susedima; Vizuelizacija: Saurus Duo
Novi objekti

U Zahumskoj ulici na Zvezdari planirana zgrada u nizu sa 13 stanova

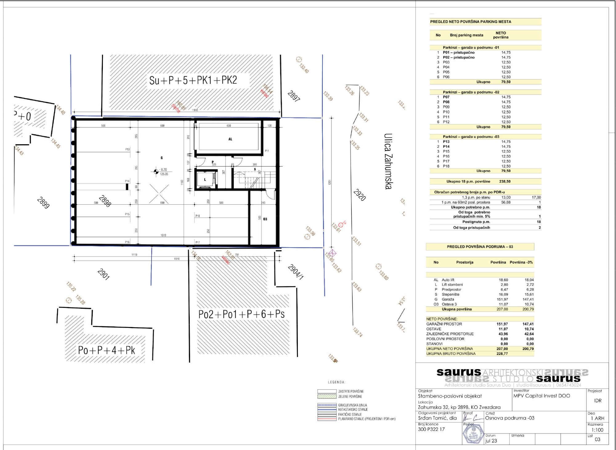
U objektu bruto površine od 1.983 kvadrata planirana je i izgradnja podzemne garaže sa 18 parking mesta, kao i lokala od 57 kvadrata u prizemlju. 

U Zahumskoj ulici broj 32 na Zvezdari uskoro bi mogla da nikne nova stambeno-poslovna sedmospratnica, za čiju izgradnju je izrađen urbanistički projekat koji je stavljen na javni uvid do 25. marta.

Finansijer ovog građevinskog poduhvata je MPV Capital Invest iz Beograda, nosilac izrade urbanističkog projekta je preduzeće Yugo Biro, takođe iz Beograda,  dok je kao autor idejnog rešenja projekta arhitekture potpisan Srđan Tomić, dia, iz Arhitektonskog studija Saurus Duo iz Aranđelovca.

Pročitajte još na Gradnja.rs:

Bruto površina od 1.983 kvadrata

Izgradnja objekta je planirana na parceli površine od 285 m². Na predmetnoj parceli planiran je objekat stambeno-poslovne namene, spratnosti 3Po+Pr+6+Ps, ukupne neto površine od 1.609 m².

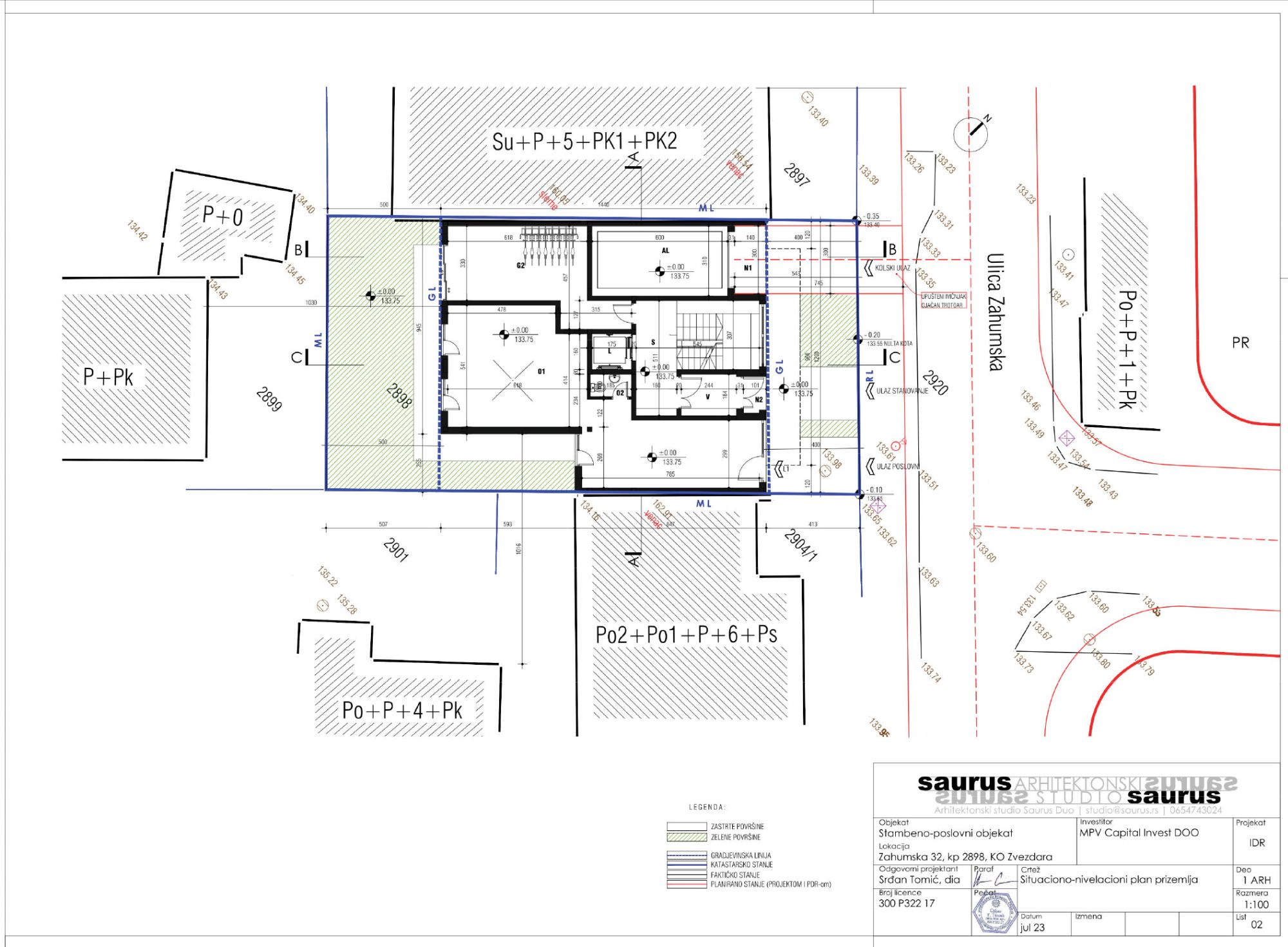
U skladu sa uslovima PDR-a, planiran je objekat u nizu, koji je u odnosu na regulacionu liniju uvučen 4,0 m, a od zadnje međe minimalno 5,0 m u nivou prizemlja.

Situaciono-nivelacioni plan prizemlja

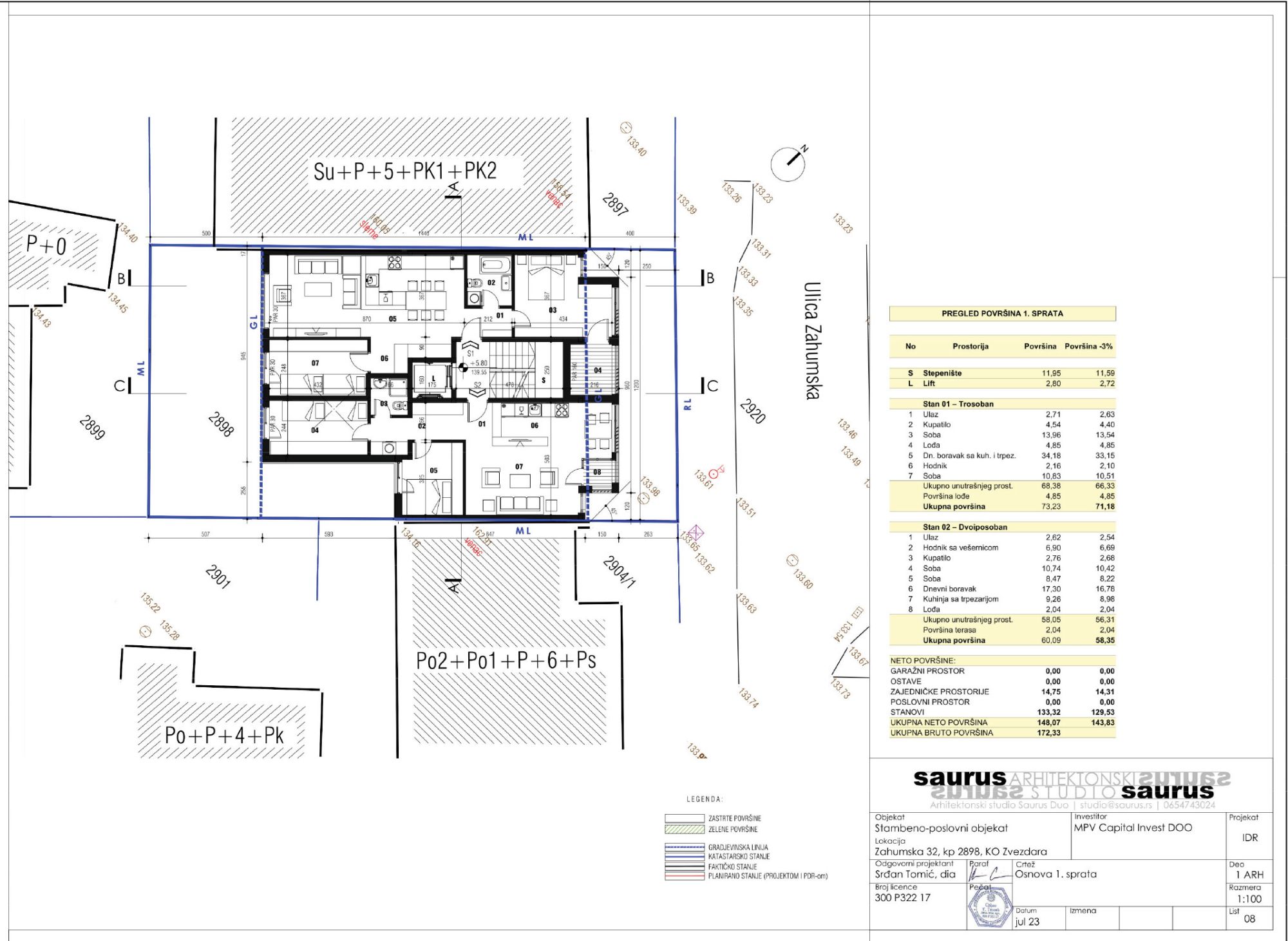
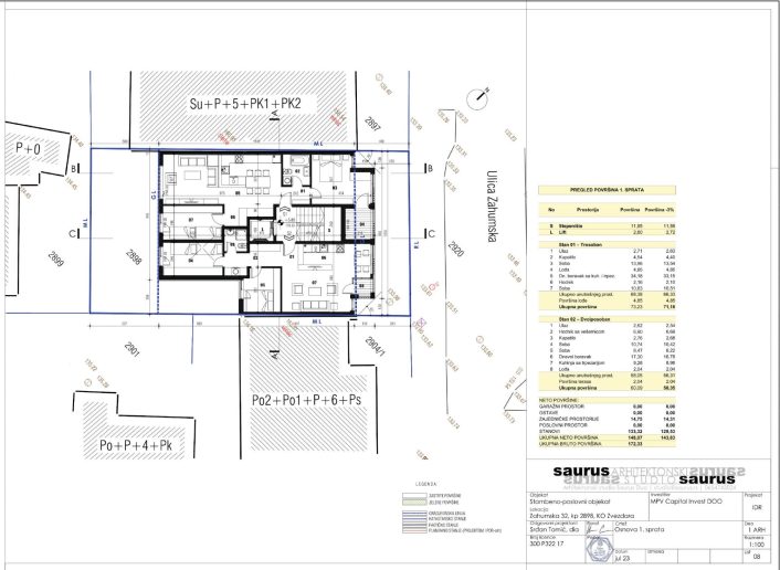
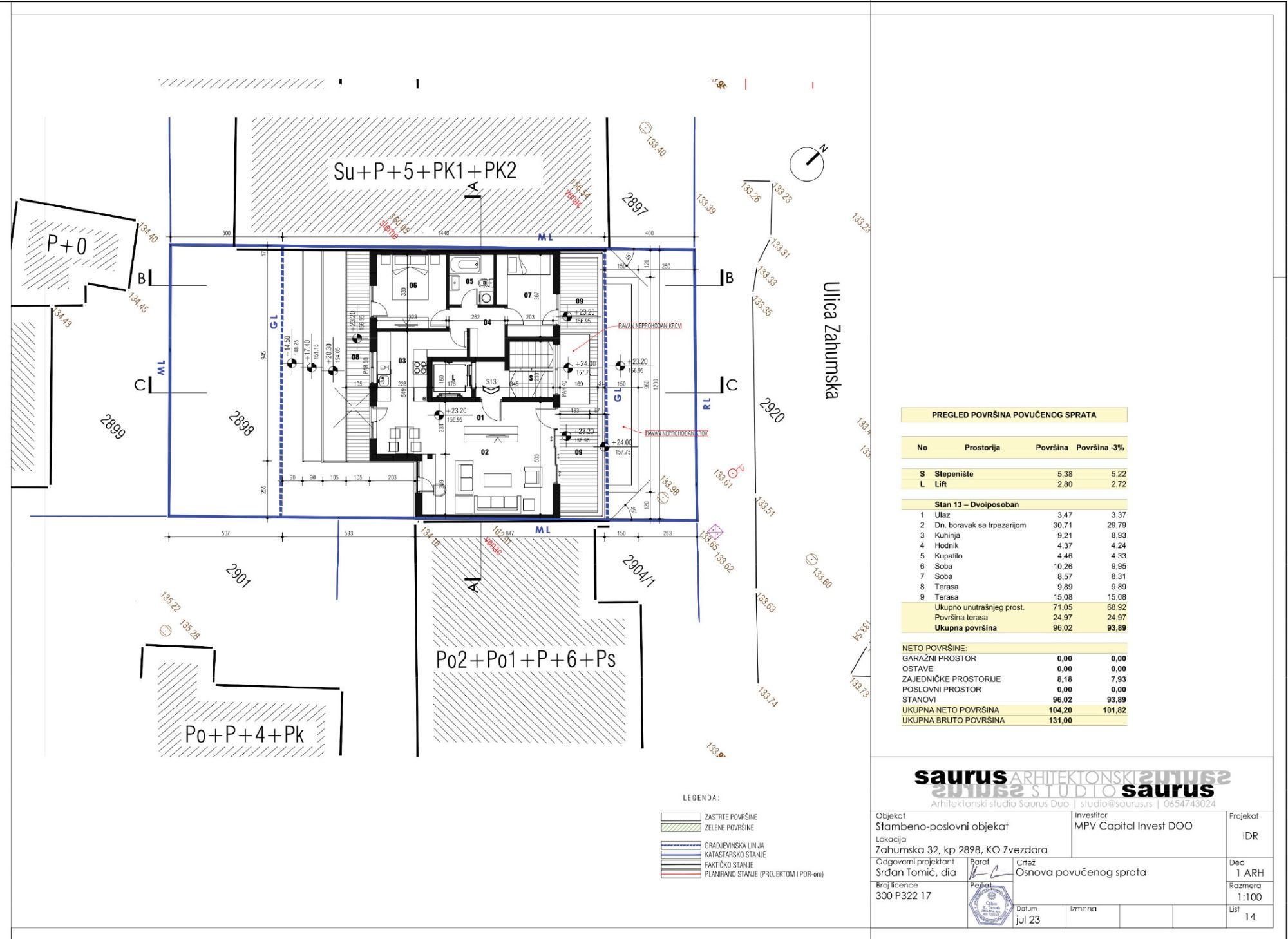
Na tipskim spratovima projektovana su po dva stana, dok je na povučenom spratu predviđen jedan stan.

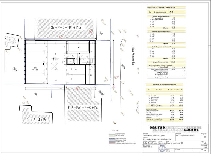
Za pristup garažama u tri nivoa predviđen je auto-lift. Ostvareni broj parking mesta je 18, od čega su dva pristupačna. Na tri podzemna nivoa su predviđene i tri ostave.

U nivou prizemlja je pored poslovnog prostora od 56,88 kvadrata predviđena i biciklana.

Na tipskim spratovima projektovana su po dva stana, dok je na povučenom spratu predviđen jedan stan, čime dolazimo do ukupnog broja od 13 stambenih jedinica.

Izgledi

Primedbe i sugestije do 25. marta

Zainteresovana lica mogu tokom javne prezentacije da izvrše uvid u Urbanistički projekat, kao i da svoje primedbe i sugestije na planirana rešenja dostave do 25. marta 2024. godine.

Grafički prilozi

Situaciono-nivelacioni plan prizemlja
Situaciono-nivelacioni plan prizemlja
Osnova podruma -3
Osnova podruma -3
Osnova podesta
Osnova podesta
Osnova 1. sprata
Osnova 1. sprata
Osnova povučenog sprata
Osnova povučenog sprata
Presek A-A
Presek A-A
Presek B-B
Presek B-B
Izgledi
Izgledi

Izabrali smo za vas...

Postani deo Gradnja zajednice

Najnovije vesti s našeg portala svakog petka u vašem sandučetu.

Dizajn enterijera

Srodni tekstovi

1 komentar

  1. Arh

    Ih bre, pa malo je 9 etaža…. može to da ide i na 15 u jednosmernoj ulici.

Ostavite odgovor

Obavezna polja *