Evo kako arhitektura može da pomogne u prevenciji mentalnih bolesti
Studentkinja Državnog univerziteta u Novom Pazaru predstavlja nam projekat čiji je dizajn zasnovan na principima terapijske arhitekture.
Osnovna ideja za razvoj master rada Adne Kriještorac, na temu Centar za sticanje imuniteta na mentalne bolesti u Novom Pazaru, zasniva se na izučavanju povezanosti arhitekture i mentalnog zdravlja.
U protekloj godini, u kojoj je započela pandemija Kovida-19, ljudi su bili primorani na usamljenost i izolaciju unutar svojih domova, čime se zabeležio značajan porast u broju mentalnih oboljenja. Takve okolnosti nameću pitanje – koliko zapravo prostor u kojem provodimo vreme utiče pozitivno ili negativno na naše mentalno zdravlje?
Pročitajte još na Gradnja.rs:
- Student generacije: Potrebno je naučiti živeti s arhitekturom
- Arhitekta dao otkaz zbog projekta studentskog doma bez prozora

Ustanove namenjene za ovakav vid lečenja rezervisane su obično samo za osobe sa dijagnostikovanim mentalnim obolenjima.
„Brz način života modernog doba pruža različite izazove na mentalno zdravlje pojedinca. U doba prekovremene stimulacije teže nam je da se nosimo sa stresom. Osećaj nesigurnosti i otuđenosti poseduje sve veći broj ljudi koji nisu u stanju da se nose sa stresom koji se javlja pri zauzimanju raznih društvenih uloga“, ističe studentkinja.
Budući da su danas mladi pristupili tehnologiji već tokom odrastanja, te da su suočeni s dinamičnim društvenim normama, generacije milenijalaca podložne su više nego ikada za razvijanje mentalnih bolesti usled neispravnih mehanizama suočavanja, kaže Adna.
U ovom konceptu, pak, reč imunitet će predstavljati više svesno suočavanje sa problemima putem adekvatnih mehanizama suočavanja sa stresovima svakodnevnice koji utiču na čovekovo mentalno zdravlje.

Za koga je namenjen centar?
Kada je reč o tome ko će imati koristi od ovog centra, autorka navodi za naš portal da tu prvenstveno dolaze u obzir odrasli mladi ljudi, jer su neprestano bombardovani informacijama i podvrgnuti novim zahtevima o tome šta znači biti relevantan radni profesionalac u 21. veku.
“Prekomernom stimulacijom medijskog prikazivanja samo uspešnih ljudi postaju razočarani sopstvenim putem i žele više od sebe, što dovodi do frustracije, anksioznosti i depresije”, napominje Adna Kriještorac, koja je svoj projekat uradila pod mentorstvom doc. dr Branka Slakovića i komentorima doc. dr Julije Aleksić i doc. dr Vladana Nikolića.
Centar bi, dodaje, takođe bio usmeren i na studente, jer bi se trebalo pozabaviti i pritiskom u akademiji. Udovoljio bi ljudima koji osećaju da ne mogu da se nose sa zahtevima u svom socijalnom i profesionalnom životu, ljudima kojima nije potrebna institucionalizovana pomoć, ali žele preventivni tretman; ljudi koji trebaju naučiti mehanizme suočavanja, kao i ljudima koji traže grupnu terapiju i mirno individualno povlačenje.
Cilj je, navodi Kriještorac, omogućiti centar za savetovanje koji će u nekoj meri skinuti teret sa zdravstvenih centara, koji su u Srbiji i dalje primaran vid lečenja mentalnih bolesti.

Briga u zajednici
Briga u zajednici i teorija normalizacije bili su glavni teorijski koncepti koji se trenutno koriste za planiranje i dizajn ustanova za mentalno zdravlje i oni još uvek nisu ozbiljno dovedeni u pitanje. Pod tom prizmom bolnica je optužena za negovanje institucionalnog ponašanja i sprečavanje reintegracije mentalno obolelih nazad u društvo, posebno onih koji su tamo ostali duže od minimalnog vremena potrebnog za akutnu epizodu.
Suprotno tome, pretpostavlja se da su optimalni ambijenti za negu oni koji su se neposredno odnosili na strukture normalnog života u zajednici. Optimalno rešenje za smeštaj korisnika bilo je najbliže rešenju stambene kuće.
Dvovodni krov je verovatno jedan od najjačih i najizrazitijih simbola za dom. Njegov poznati oblik može izazvati osećaj udobnosti i bliskosti, pri toj asocijaciji ovakva forma je uzeta kao modul koji će se rasporediti u skladu sa funkcijom centra.
Terapijska arhitektura
Dizajn zasnovan na principima terapijske arhitekture znači da planiranje i odluke o dizajnu zdravstvene ustanove teže da postignu najbolji mogući osećaj za pacijente i osoblje.
Jedinice koje su prijatne i udobne i koje stvaraju osećaj sigurnosti ali nemaju institucionalan karakter imaju važan uticaj na korisnike.
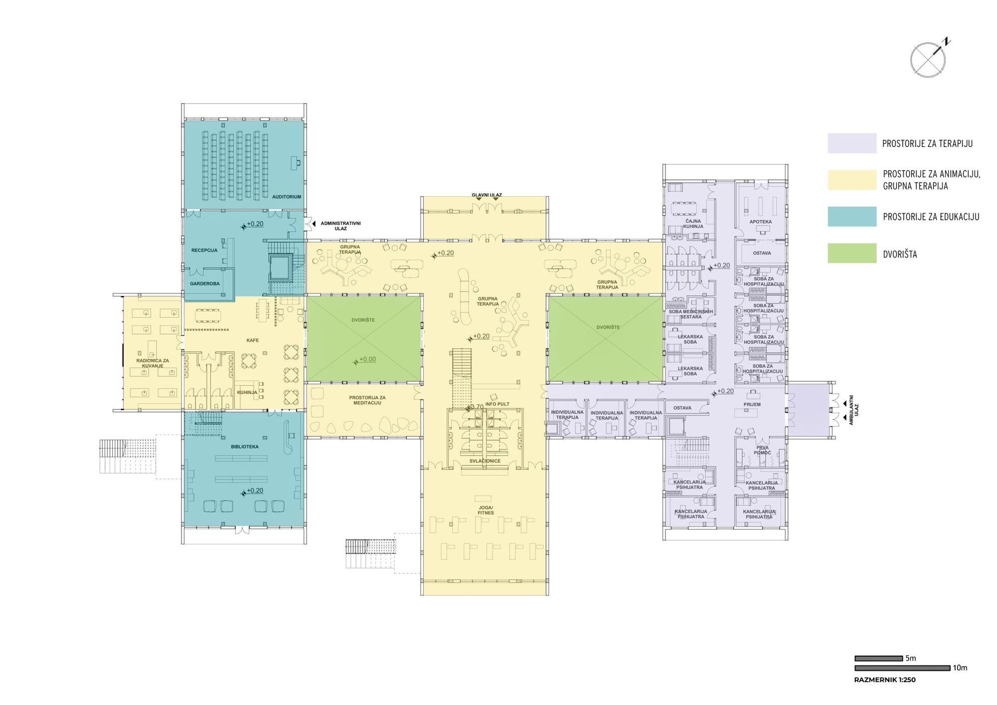
Jedan od bitnijih elemenata terapijske arhitekture jeste integracija zelenih površina kroz objekat, koji su u ovom centru oformljeni u vidu unutrašnjih dvorišta i prirodnih materijala.
Unutrašnja dvorišta su korištena kao jezgro oko koga se grupišu funkcije centra.

Funkcionalni program centra
Projekat će se ograničiti na to da bude centar koji pruža psihološko savetovanje, radnu terapiju kroz grupne aktivnosti i nudi intimnost po potrebi, ali i edukovati populaciju podižući nivo svesti o mentalnim problemima na viši nivo.
Iako će se u centru pružati medicinska pomoć, namera autorke nije bila da se objekat dizajnira kao zatvorena medicinska ustanova, niti bi, kako naglašava, dizajn trebalo da bude u liniji banje, ili spa centra, jer je plan da se stepen medicinske stručnosti ulije u program projekta.

Edukacija, terapija i animacija
Prostorije ovog centra mogu se razvrstati u tri sadržajne grupe.
Prostorije za edukaciju nalaze se u vidu biblioteke, čitaonice i auditorijuma u kojem bi se održavala razna predavanja sa ciljem povećanja svesti o problematici mentalnih oboljenja.
Prostorije za terapiju pružaju širok spektar usluga, od intimnih prostorija poput prostorija za individualnu terapiju, ali i neophodnih soba za hospitalizaciju određenih pacijenata, do prostorija za grupnu terapiju.
Prostorije za animaciju predstavljaju prostorije koje se koriste za radnu terapiju u vidu radionica za kreativno delovanje – radionica za vajanje, radionica za slikanje, muzička radionica, radionica za dekupaž, radionica za šivenje i heklanje.

Kako odabrati idealnu lokaciju
Zelene površine u blizini lokacije su najbitnija karakteristika, jer pojačavaju ulogu centra kao mesta za povlačenje, pritom postiže se veza između objekta i prirode što pobojšava terapeutsku ulogu objekta. Pogledi na prirodu pomažu u oporavku i raspoloženju.
Potrebno je stvoriti različite nivoe privatnosti koji omogućavaju bolje korišćenje prostora u svakom trenutku, različitim vrstama pacijenata.

Da bi se objasnila važnost čovekove povezanosti sa prirodom, oko objekta su kreirane mnogobrojne staze.
Takođe, potrebno je omogućiti lokaciju za objekat koja je okružena objektima male spratnosti, kako bi centar mogao nesmetano da iskoristi maksimum prirodne sunčeve svetlosti.
Centar služi kao zagovornik za bitnost terapeutskog efekta prirode i prirodnog okruženja na pojedince.
Da bi se objasnila važnost čovekove povezanosti sa prirodom, kreirane su mnogobrojne staze oko objekta, koje će služiti samo kao jedan vid aktivnosti koje podstiču čoveka na provođenje više vremena u prirodnom okruženju.
Grafički prilozi:
Kad ste već ovde…



jednostavno,inteligentno …. sjajno! svaka čast!