Šta se planira u Beogradu? Tri nova projekta u Zemunu i Bežaniji donose poslovne i stambene kvadrate
Sa dolaskom lepog vremena polako se zahuktava građevinska sezona u našem glavnom gradu, a o tome svedoče i ova tri planirana projekta.
Na sajtu Grada Beograda u poslednjih sedam dana na javni uvid je stavljeno više dokumenata u kojima se najavljuje izgradnja novih objekata na teritoriji srpske prestonice.
Planirani objekti smešteni su u Zemunu, Zemun Polju i u novobeogradskom naselju Bežanija, a po funkciji variraju od stambeno-poslovnih do proizvodno-skladišnih.
U nastavku teksta saznajte osnovne podatke vezane za svaki od njih.
Pročitajte još na Gradnja.rs:
Zgrada u Zemunu sa tri stana i tri poslovna prostora
Na adresi Dobanovačka 17 u Zemunu planirana je izgradnja stambeno-poslovnog objekta spratnosti Po+P+2+PS, čiji su investitori dva fizička lica, dok je projektant preduzeće Alextra d.o.o. iz Beograda.
Na parceli površine od 584 m² nalazi se niz izgrađenih objekata stambene i poslovne namene, koji su predviđeni za rušenje, navodi se u UP-u koji je na javnom uvidu do 21. marta.
Novoplanirani objekat ukupne bruto površine od 1.267 m², imaće podzemnu garažau sa ukupno 6 parking mesta. Prizemlje je namenjeno poslovanju, dok je na spratovima planirano stanovanje. U objektu su planirane 3 stambene jedinice i 3 poslovna prostora.

Afrodita u Zemun Polju
Preduzeće Kozmetika Afrodita d.o.o. iz Zemuna podnelo je Sekretarijatu za zaštitu životne sredine zahtev za odlučivanje o potrebi procene uticaja na životnu sredinu projekta izgradnje proizvodno-skladišnog objekta u Zemun Polju. Idejno rešenje potpisuje studio Archybility iz Beograda.
Predmetni objekat je smešten na parceli od 3.123 kvadrata, a svojim većim delom namenjen finalnoj obradi i pakovanju kozmetičkih preparata. Ukupna bruto površina objekta iznosi 1.105 m².
Na građevinskoj parceli ima ukupno 17 parking mesta.

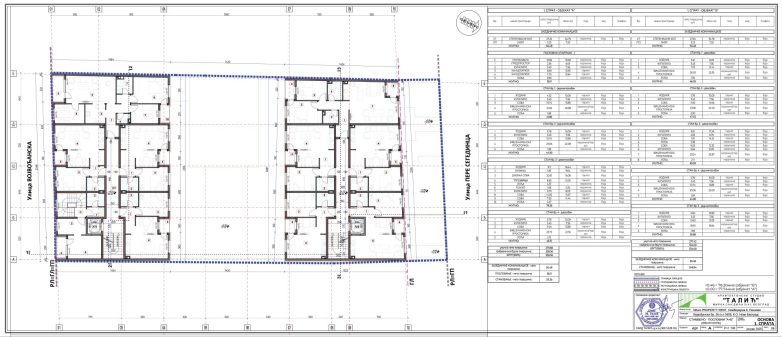
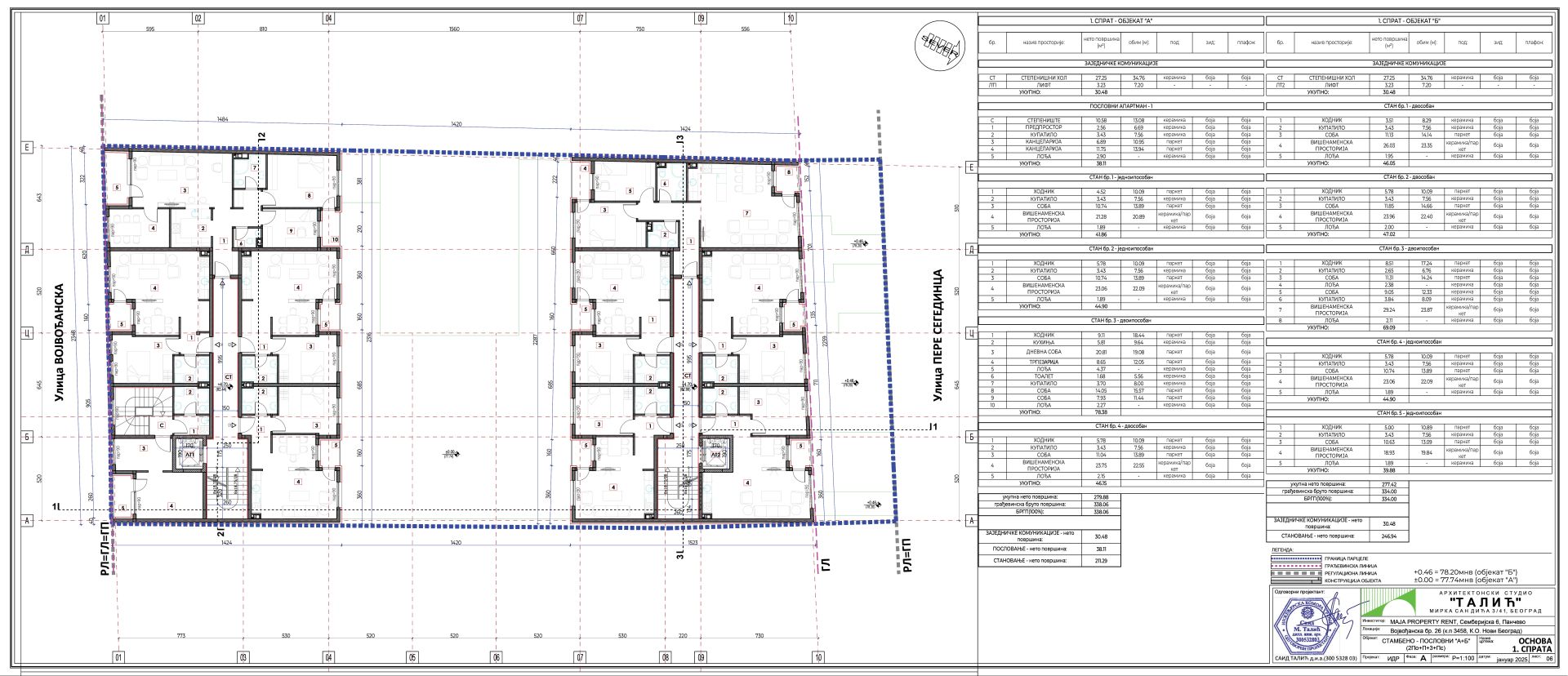
39 stanova u dve zgrade na Bežaniji
Investitor Maja Property Rent planira na Bežaniji izgradnju dva objekta sa zajedničkom dvoetažnom garažom, koji su po funkciji stambeno-poslovni, ukupne BGRP od 5.067 m².
Objekti spratnosti 2Po+P+3+Ps, projektovani su kao dvostrano uzidani i smešteni su između građevinskih linija Vojvođanske i ulice Pere Segedinca, navodi se u idejnom rešenju koje potpisuje Arhitektonski atelje Talić.

Investitor Maja Property Rent planira na Bežaniji izgradnju dva objekta sa zajedničkom dvoetažnom garažom.
U prvom objektu projektovano je ukupno 19 stanova, tri poslovna prostora i jedan poslovni apartman, dok je u drugom smešteno 20 stanova i dva poslovna apartmana.
Na parceli su projektom obezbeđena 52 garažna mesta u podzemnoj garaži na dve etaže, kojima se pristupa auto-liftovima iz ulice Pere Segedinca.
Ovaj urbanistički projekat nalazi se na javnom uvidu do 27. marta 2025. godine, do kada možete poslati svoje primedbe i sugestije na planirana rešenja.

