Češča vas: Bazenski kompleks u Sloveniji čiji krov kao da lebdi nad strukturom
Prigušeni izgled zgrade u prostoru postignut je niskim plutajućim krovom, ispod kojeg je dozvoljeno da okolni pejzaž teče preko bazena.
Od ljubljanskog biroa Enota već smo navikli da viđamo sjajne projekte. Jedan od najfascinantnijih je svakako kompleks Terme Olimia sa hotelom Sotelia u slovenačkom mestu Podčetrtek koji je odavno stekao simpatije ne samo kod ljubitelja spa tretmana već i kod ljubitelja dobre arhitekture.
Međutim, Enota ne sedi na lovorikama već je nedavno predstavila svoj novi, realizovan projekat nastao na osnovu pobedničkog rešenja na konkursu koji su osvojili 2020. godine. Reč je o bazenskom kompleksu Češča vas, otvorenom ove godine u istoimenom naselju u opštini Novo Mesto u Sloveniji.
Pročitajte još na Gradnja.rs:
- Piranesi Award 2023 za projekat urbane revitalizacije u istorijskom delu Ptuja
- Ovih 5 domaćih projekata odabrano je za nagradu Mies van der Rohe 2024

Korišćenje prednosti nagnutog terena
Novi bazenski kompleks u Češčoj vasi nalazi se u prostoru kojim dominira postojeći, nedavno renovirani velodrom.
Želja arhitekata bila je da izgradnjom novog bazena ne menjaju drastično prostorne odnose, jer bi to unelo nered bez kojeg bi prostor mogao, a i dodatno bi ga zasitio.
„Novi bazenski objekat koristi prednosti topografskih karakteristika nagnutog terena. Smešten je što je moguće niže i ne predstavlja novu dominantu u prostoru“ – objasnile su arhitekte iz Enote.

Prostorni dizajn koristi delimično ukopane nivoe da odvoji pojedinačne nove amfiteatralne ambijente putem nadmorske visine.
Kompleks obuhvata dva zatvorena bazena i njihovu infrastrukturu, dok će u drugoj fazi projekta biti dograđen i spoljašnji olimpijski bazen.
Kako navode arhitekte, prostorni dizajn koristi delimično ukopane nivoe da odvoji pojedinačne nove amfiteatralne ambijente putem nadmorske visine.
Ulazni hol je time odvojen od saobraćajnih površina, dok najniže ležeći bazenski prostor odgovara koti okoline na najzapadnijoj ivici prostora. Obale usečenog terena pretvaraju se u tribine za posetioce.
„Na ovaj način se dizajnom smanjuje površina omotača fasade, čime se povećava njena energetska efikasnost i smanjuju troškovi ulaganja. Na taj način se efikasno balansira mogući rizik usled povećanog iskopavanja terena“ – kažu nagrađeni autori.

Pejzaž koji teče preko bazena
Prigušeni izgled zgrade u prostoru postignut je niskim plutajućim krovom, ispod kojeg je dozvoljeno da okolni pejzaž teče preko bazena.
Istovremeno, krov konstrukcije pokriva sve programe koji ne zahtevaju direktan kontakt s vodenim površinama.
Programski raspored obezbeđuje veću visinu plafona iznad prostora bazena i nižu visinu plafona na recepciji i u svlačionicama.

Konzolni krov na ulaznoj strani zgrade deluje kao nadstrešnica, koja zajedno sa ukopanom površinom amfiteatra čini spoljnu ulaznu platformu.
Strukturalni dizajn krova sa rešetkom zasnovanom na zidnim gredama skrivenim u pregradnim zidovima programa omogućava velike raspone i zahteva malo vertikalnih oslonaca.
Svetlost koja se pojavljuje duž celog perimetra stvara i utisak krovne zapremine koja lebdi iznad površine bazena, dok se iz unutrašnjosti otvaraju široki pogledi na okolnu prirodu.
Konzolni krov na ulaznoj strani zgrade deluje kao nadstrešnica, koja zajedno sa ukopanom površinom amfiteatra čini spoljnu ulaznu platformu.

Jednostavna i suzdržana materijalizacija
Kako dalje saznajemo, materijalizacija kompleksa bazena u Češčoj vasi je vrlo jednostavna i suzdržana.
Fasadni omotač plutajućeg krova je prekriven prirodnim, nelakiranim drvenim pločama koje će vremenom ostariti i na taj način dodatno spojiti objekat sa materijalnošću okolne šume.
„Zajedno sa nagnutom geometrijom, krov se pojavljuje u prostoru kao parafraza lokalnog ruralnog razvoja“ – navode iz ljubljanskog studija.

Ovako naglašen enterijer deluje kao diskretna pozivnica za korisnike okolnog spoljašnjeg prostora
Dizajn amfiteatralnih prostora, tj. programske platforme na različitim nivoima, homogen je i izveden u lokalnom betonu sa različitim površinskim obradama.
Jedini materijalni akcenat nalazi se u unutrašnjosti zgrade. Donja strana plutajućeg krova bazena je jednolično obojena intenzivnom, toplom nijansom.
„Plafon je na taj način dovoljno prisutan da deluje kao prijatno sklonište za korisnike uprkos nedostatku ispunjenih zidova po obodu bazena. Istovremeno, ovako naglašen enterijer deluje kao diskretna pozivnica za korisnike okolnog spoljašnjeg prostora“ – navode autori.

Obe zgrade kao jedan sportski kompleks
Kako na kraju navode iz Enote, saobraćajni dizajn zajedničkog prostora velodroma i bazena je pojednostavljen pomoću jedinstvenog ulaza i izlaza i zajedničke parking površine za automobile i autobuse.
„Reorganizacija i proširenje postojećih saobraćajnih površina velodroma omogućava postavljanje velike ulazne platforme, svojevrsnog centralnog trga namenjenog pešacima koji može da primi velik broj posetilaca tokom događaja i poveže obe zgrade u jedan sportski kompleks“ – zaključuju iz ljubljanskog studija.
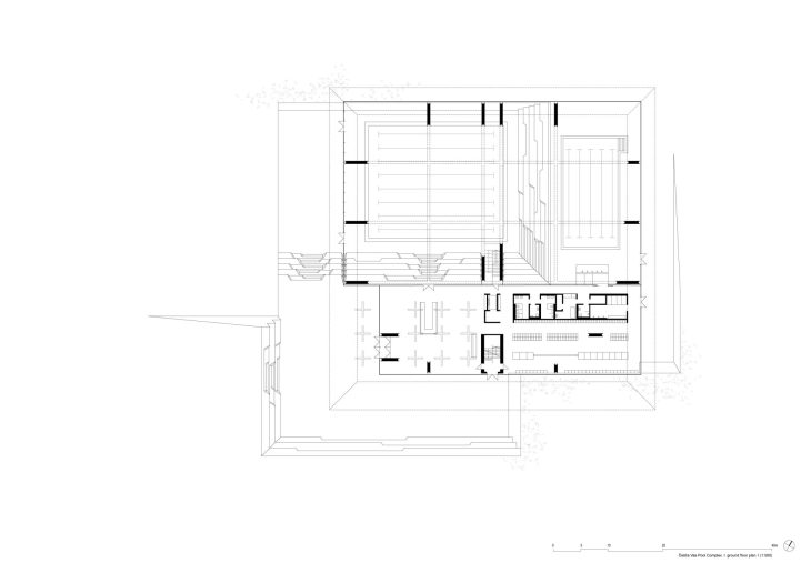
Koncept








Grafički prilozi
Foto-galerija





















Faktografija
Češča Vas bazenski kompleks
Enota
2020.
2023.
4.770 m2
13.370 m2
7.000.000 evra
Opština Novo Mesto
Dean Lah, Milan Tomac, Jurij Ličen, Nuša Završnik Šilec, Polona Ruparčič, Sara Ambruš, Eva Tomac, Eva Javornik, Urška Malič, Rasmus Skov, Sara Mežik, Jakob Kajzer, Peter Sovinc, Carlos Cuenca Solana, Goran Djokić
Ivan Ramšak (konstrukcija), Nom biro (mašinske i elektro instalacije), Krajinaris (pejzažno uređenje), Controlmatik ABW (tehnologija bazena)
Miran Kambič




