Fruškogorska kuća za odmor: Tri tipska projekta
Ako planirate da pravite kuću na Fruškoj gori pogledajte ove kuće do 100, 150 i 300 kvadratnih metara.
Opština Irig, u saradnji sa Društvom arhitekata Novog Sada (DaNS), organizovala je konkurs za tipsku fruškogorsku kuću za odmor na području opštine Irig.
Zadatak konkursa bio je da se kreira funkcionalno i estetski kvalitetna ponuda idejnih rešenja kuća za odmor u specifičnom ambijentu Fruške Gore i podrazumeva 3 različita tipa objekta: do 100, do 150 i od 200 do 300 kvadratnih metara.
Žiri sastavu Miljan Cvijetić, mr Vladimir Pihler i Oliver Ognjenović doneli su odluke o nagradama.
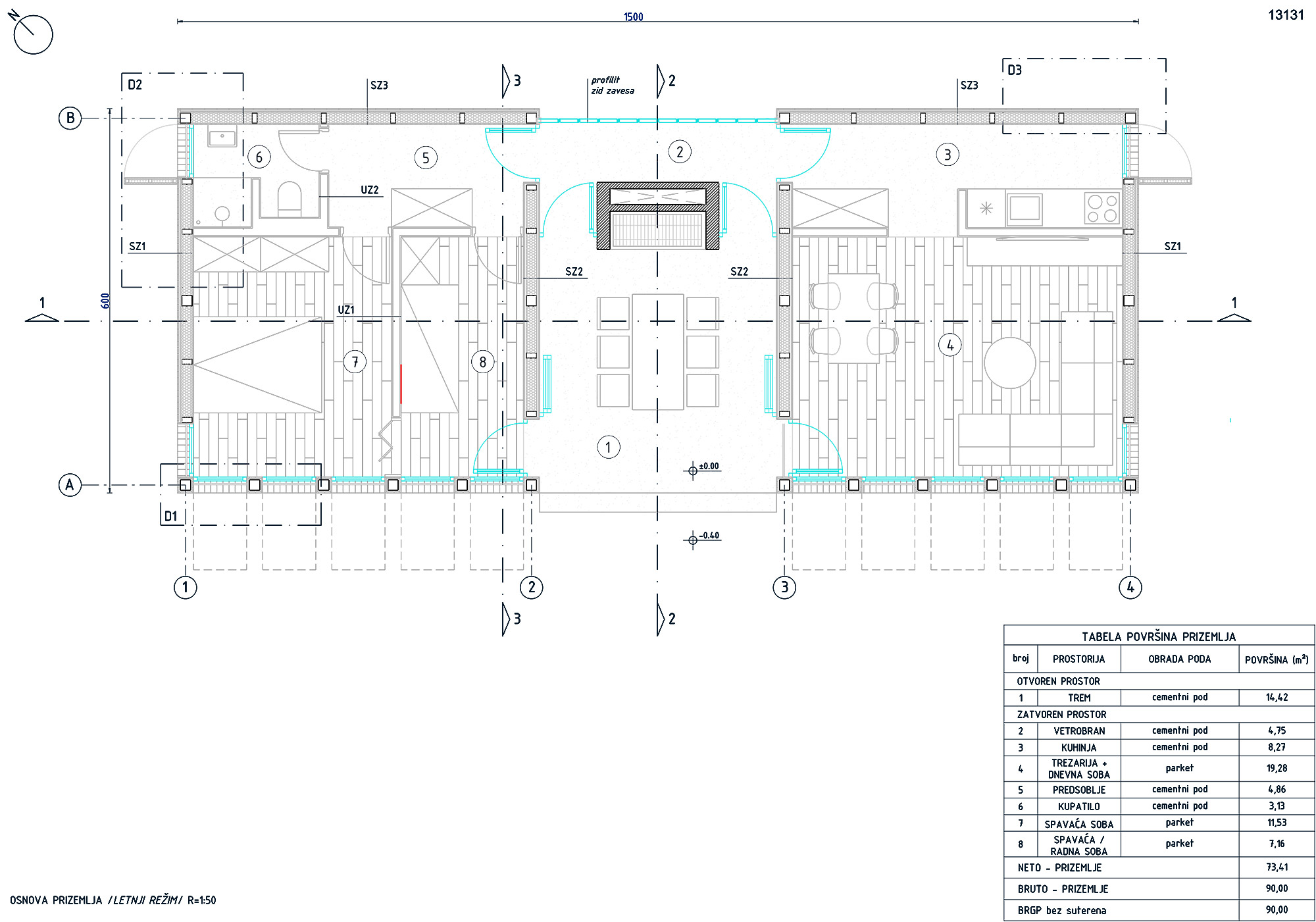
TIP 1 – kuća do 100m2 – Stefan Radošević, M. Arch.
Prostorna šema se oslanja na prepoznatljiv identitet „sremske kuće“ na kojoj se formira trem ili gonak.
Prostorna šema se oslanja na prepoznatljiv identitet sremske kuće na kojoj se formira trem ili gonak – uz dužu fasadu, u ovom slučaju okrenutu prema jugo-zapadu, kao i na centralni prostor ognjišta.
Formirana je promenljiva dnevna i sezonska dinamika fasade, gde se u zoni unutrašnjih prostorija dozira nivo otvorenosti prema spoljašnjosti, dok se u zoni centralnog trema formira otvoreni prostor za pripremu hrane i socijalizaciju u toplom periodu godine, odnosno zimska bašta u toku hladnog perioda.
Konstruktivni sklop je koncipiran kao montažni objekat na zidanoj bazi – suterenu, odnosno ploči prizemlja. Nadzemni deo objekta – spoljnji zidovi i krov projektovani su kao drvena konstrukcija o lameliranog drveta, ispunjena savremenim еnеrgetski-efikasnim termoizolacionim panelima, sa završnom spoljnom obradom u vidu drvene vetrene obloge fasade, cementnih krovno-fasadnih crepova, odnosno krečenih površina u zoni enterijera trema.
Pogledajte kompletan projekat ovde.
Tip 2 – kuća do 150m2 – Mirko Pavlović, dia
Pogledajte kompletan projekat ovde.
Tip 3 – kuća od 200 do 300 m2 – Enterijer Janković
Pogledajte kompletan projekat na ovoj adresi.
Kad ste već ovde…



















čoveče u prvoj kući samo što sam bacio pogled , već vidim rušenje zidova u najavi i sklanjanje tih ormančina iz uskih hodnika … dovoljno
Znači da ne koristiš vikendice duže od nedelju dana. Ne projektuje se sve logikom kao apartmani na Zlatiboru koji veze nemaju s prostorom za odmor u prirodi.
Prvo resenje nije uopste lose
sve sem prvog rešenja je potpuni promašaj
bolje da su raspisali pozivni konkurs
Očigledno da je žiri imao težak zadatak da izabere tri rešenja kao tipski model.
Drugi i treći nisu primereni da budu tipski, obzirom da su predizajnirani. Drugonagrađeni rad nema odnos prema okruženju. Treći, njglomazniji je pritom ima lošu osnovu, da ne pominjem da je kuhinja u zoni gde bi trebalo da je dnevni boravak.
Iz prakse u ovoj zemlji ti projekti da se gradi po tipskim modelima su nesupešni.
Sjajna rešenja, svako na svoj način
Da li je druga kuca zaista na Fruskoj Gori? Lepa je ali za neki Kopaonik
Samo da prvo kazem kako su konkursi kod nas obesmisljeni decenijskim namjestaljkama i simbolicnim nagradama.
Sto se tice ovih radova, prvi je dobar, ima dosta fleksibilnosti. Jasno se vide tri modula – dnevni, spavaci i terasa, mogu se kombinovati na razne nacine. Ako nekome ne odgovara bas ovakav raspored, lako se moze izrotirati, mirror-ovati, premjestiti prozori, rasiriti, nadograditi, spojiti, rastaviti, ima bas dosta otvorenih opcija. 7/10. A ova druga dva se ne isplati ni komentarisati, klasicna komercijala u grafickom, konceptualnom i svakom drugom smislu. Zakucani takvi kakvi su, sa nekom isiljenom formom, bez ikakve veze sa okruzenjem, mogu biti bilo gdje i nigdje. Nula bodova.
Lepo receno.
bolje da su organizovali pozivni konkurs – 15 biroa i da su svima dodelili po 50.000 dinara
ova ideje da šalješ dva projekta na konkurs je samo garancija raspisivaču da će stići veliki broj (loših) radova
arhitektura na kilo
Ovo su jako ruzni projekti koji totalno nepasuju u Vrdniku. Ovo je vise za Zlatibor i druga planinska mesta.
Ужасно ружни објекти. Да ли је ово пројектовао прави архитекта или дете? Ако су се деца игеала, може да прође.
Prvi projekat je za ovce, svaka ima svoj prozor da pomoli glavu 🙂 🙂 jos samo valog pa je kompletno.
Било би лепо да сви ви који острашћено коментаришете (у 21. смо веку) пошаљете фотографије домова у којим живите.
Kakve to veze ima?
Mislim ne komentarisem ali mi nije jasna konekcija ove dve stvari? Projekat je kuce , ne porodilista pa da kažeš ljudi ne razumeju funkciju objekta
Arhitektonska beton liga
Prvo resenje odgovara ambijentalnom kontekstu, druga dva treba diskvalifikovati jer ga nisu ni ispostovali
Mislim da je ta ideja da neko gradi kuću od 200 do 300 m2 na Fruškoj Gori potpuno neprimerena.
Ako je to samo jedan objekat – to je onda grdosija koja se ne može uklopiti u okruženje.
Meni se najvise dopada projekat Mirka Pavlovica. TIP 2 nadam se da cemo imati priliku jos koji njegov projekat da vidimo.
Pozdrav