Azuležos na savremeni način: Zgrada u Lisabonu koja spaja novo i staro
Izloženi sirovi beton dominira fasadama i plafonima, dok dodavanje zelenih ručno rađenih pločica i drveta dodatno doprinosi jedinstvenom karakteru objekta.
Nedavno završeni projekat, nazvan „Kuća u ulici Sao Francisco De Borja“, predstavlja svedočanstvo o dizajnerskom pristupu portugalskog arhitekte Rikarda „Baka“ Gordona, nominovanog za nagradu Mies van der Rohe 2009, 2011. i 2022. godine.
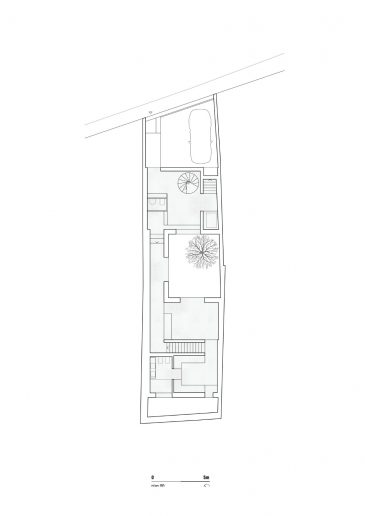
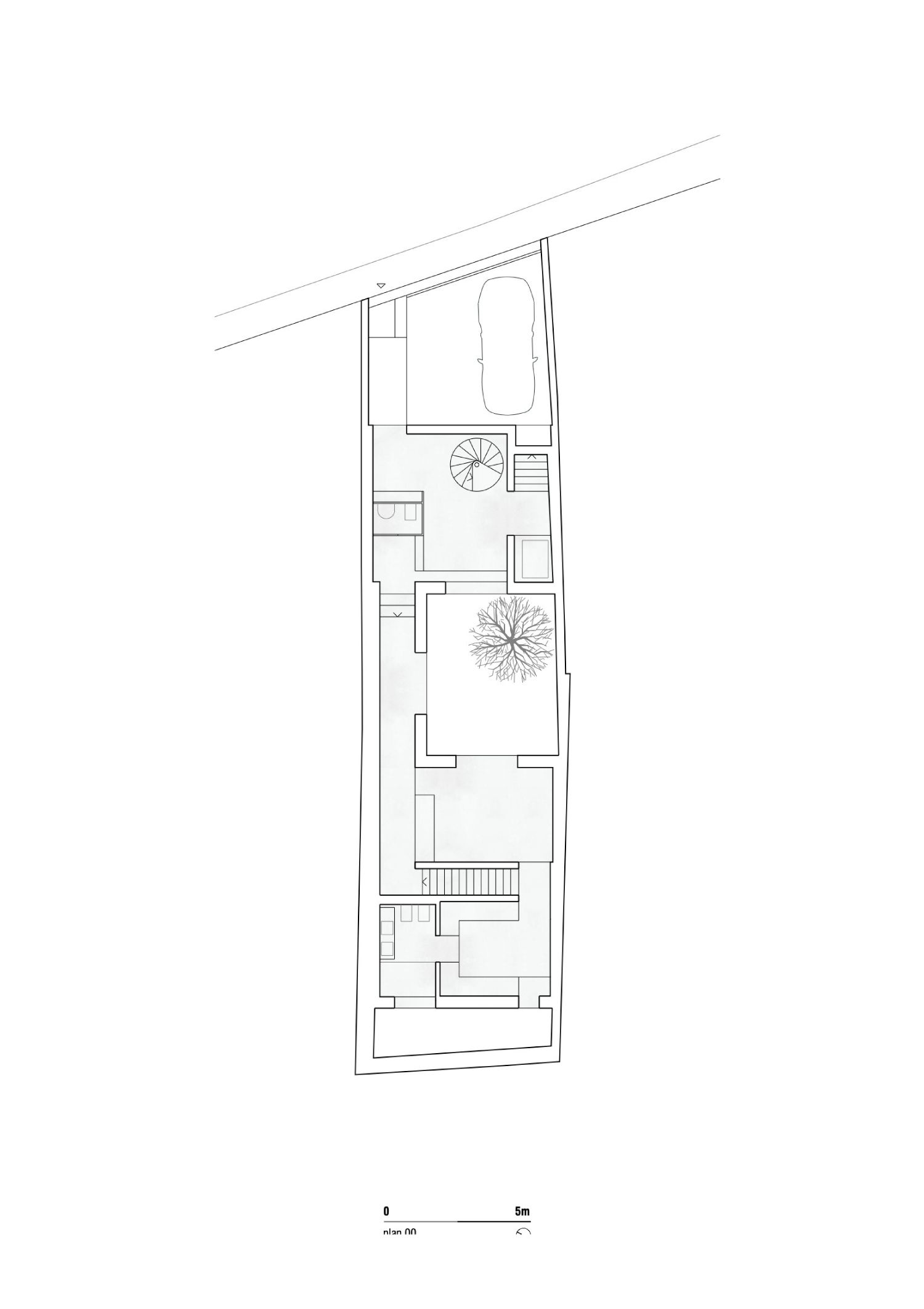
Ovaj rezidencijalni objekat od 439 m², smešten na uskoj i izduženoj parceli u šarmantnom lisabonskom kvartu Lapa, menja bivši industrijski paviljon, pokazujući posvećenost arhitekte da kreira stambeni prostor koji se neprimetno integriše u svoj kontekst.
Pročitajte još na Gradnja.rs:
- Azuležos: Kratka istorija portugalskih pločica i njihova savremena primena
- Lisabonski mozaik Ive Živković predstavljaće Srbiju na studentskom takmičenju u Portugaliji

Dijalog fasade sa unutrašnjim okruženjem
Osnovna filozofija arhitekte u izgradnji kuće, pa i dizajniranju fasade, bazira se na prilici da se kroz arhitekturu izrazi savremena era uz poštovanje svojstvenih postojećih kvaliteta ovog mesta.
„Fasada objekta ne samo da se bavi urbanim kontekstom, već i uspostavlja dijalog sa unutrašnjim okruženjem kuće“ – objasnio je Bak Gordon za Design Boom.

Drvena rešetka obuhvata garažna i pristupna vrata, stvarajući vizuelnu vezu između unutrašnjeg i spoljašnjeg prostora.
Prizemlje je posebno dobar primer ovog koncepta jer sadrži drvenu rešetku koja obuhvata garažna i pristupna vrata, stvarajući vizuelnu vezu između unutrašnjeg i spoljašnjeg prostora.
Osim toga, trpezarija sadrži fini singl prozor, a osnova dnevne sobe je u jednom delu „sankcionisana“ u korist male bašte/kutije sa cvećem, te se na ovaj način efikasno premošćuje jaz između unutrašnjeg i spoljašnjeg prostora.

Iste pločice na fasadi i unutar lođe
Protežući se parcelom, kuća se sastoji od dva međusobno povezana volumena, koji zatvaraju centralni vrt, do kojeg se dolazi preko natkrivene lođe koja je u potpunosti ukrašena ručno rađenim pločicama. Baš onim koje su korišćene i na uličnoj fasadi.

Društveni prostori uzdižu se vertikalno, kulminirajući u zoni krovne terase sa koje se pruža panoramski pogled na reku Tagus.
Može se reći da raspored ove rezidencije nudi zanimljivo iskustvo šetališta, otkrivajući se u različitim pravcima.
Privatne spavaće sobe i kancelarijski prostori se pružaju horizontalno, dok se društveni prostori uzdižu vertikalno, kulminirajući u zoni krovne terase sa koje se pruža panoramski pogled na reku Tagus.

Azuležos i drvo za jedinstven karakter
Pažljiv odabir materijala igra ključnu ulogu u oblikovanju karaktera i atmosfere ove kuće. Izloženi sirovi beton dominira fasadama i plafonima objekta, evocirajući savremenu estetiku.
Dodavanje zelenih, blistavih, ručno rađenih pločica i drveta dodatno doprinosi jedinstvenom karakteru objekta.
Ovi materijali ne samo da doprinose estetici kuće, već služe i za uspostavljanje osećaja mesta i identiteta u lokalnom kontekstu.
Grafički prilozi
Foto-galerija












Faktografija
House in Rua São Francisco de Borja
Lisabon, Portugalija
Ricardo Bak Gordon
2023.
439 m²




