Konkurs za proširenje depoa Narodne biblioteke Srbije
Narodna Biblioteka Srbije, u saradnji sa Društvom arhitekata Beograda, raspisuje javni otvoreni jednostepeni arhitektonski konkurs za idejno rešenje za izgradnju – proširenje postojećeg depoa Narodne biblioteke Srbije.
Povod za raspisivanje konkursaje nedostatak prostora za smeštaj bibliotečke građe. Kako je nedostatak prostora za navedene potrebe NBS prepoznat pre više decenija, planski osnov za predmetnu izgradnju sadržan je u Planu detaljne regulacije dela Vračarskog platoa („Službeni list Grada Beograda”, broj 1/06).
Cilj konkursa je da se, u skladu sa konkursnim zadatkom, programskim zahtevima, značajem i potencijalima lokacije, izabere najkvalitetnije arhitektonsko-urbanističko rešenje za izgradnju – proširenje postojećeg depoa Narodne biblioteke Srbije, koje korespondira sa okruženjem i prilagođeno je vrednostima ambijenta, te budućim izgledom Svetosavskog platoa.
Izabrana rešenja predstavljaće osnov za izradu projektne dokumentacije za potrebe realizacije, uređenja i izgradnje.

Izabrana rešenja predstavljaće osnov za izradu projektne dokumentacije za potrebe realizacije, uređenja i izgradnje.
Predmet konkursa je:
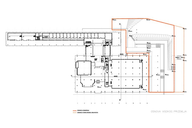
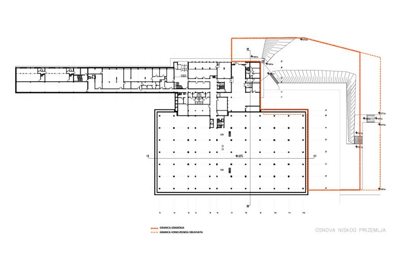
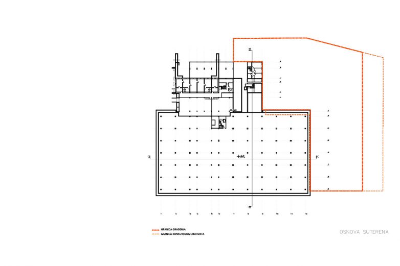
- projektantsko rešenje izgradnje – proširenje depoa Narodne biblioteke Srbije čiji sadržaj osim skladišnog prostora – depoa, uključuje i kancelarijski prostor i multifinkcionalni izložbeni prostor namenjen fundusu Narodne biblioteke i književnoj delatnosti uopšte, kao i potrebne prateće i tehničke prostore. Objekat projektovati kao „podzemni“ u okviru definisane morfologije postojećeg terena, na način da krovne i pristupne površine novih sadržaja, zadrže namenu javnog, pešačkog i ozelenjenog prostora.
- projektantsko i programsko rešenje parternog uređenja slobodnih, pešačkih i zelenih površina što uključuje krovne i pristupne površina planirane i postojeće izgradnje kao i neizgrađene površine sve u okviru celine konkursnog obuhvata.
Rokovi
Početak konkursnog roka / datum oglašavanja je – 01.12.2020.
Rok za postavljanje pitanja je do 24.12.2020.
Rok za predaju radova konkursa je do 19.02.2021.
Objavljivanje rezltata konkursa 01.03.2021.

Vrsta i visina nagrada
Ukoliko do utvrđenog roka pristigne najmanje 5 radova i ukoliko isti zadovoljavaju propozicije konkursa, dodeliće se sledeće nagrade u ukupnom iznosu neto nagradnog fonda od (svega) 900.000 dinara prema sledećem sledećoj raspodeli:
- nagrada – 500.000 dinara
- nagrada – 250.000 dinara
- nagrada – 150. 000 dinara
Sastav žirija
Laslo Blašković, književnik i upravnik Narodne biblioteke Srbije, predstavnik Naručioca
Miroslav Vulović, načelnik tehničko bezbednosne službe, predstavnik Naručioca
dr Igor Marić, arhitekta, predstavnik Društva arhitekata Beograda
dr Nađa Kurtović Folić, arhitekta, predstavnik Društva arhitekata Beograda
dr Milena Kordić, arhitekta, predstavnik Društva arhitekata Beograda

Grafička dokumentacija
Program konkursa i prateću dokumentaciju moguće je preuzeti sa sajta Društva Arhitekata Beograda.
Kad ste već ovde…






