Drvena kuća sa bazenom suptilno uklopljena u okruženje
Objekat od 350 kvadrata otvara se ka pejzažu sa velikim prozorom u dnevnom boravku, koji obezbeđuje kontinuitet između unutrašnjeg i spoljašnjeg prostora.
Ova stambena zgrada sa svojim izrazito modernim karakterom suptilno se uklapa u poljoprivredni pejzaž među brdima nedaleko od istorijskog centra grada Basano del Grapa, opštinskog sedišta u podnožju italijanske regije Veneto.
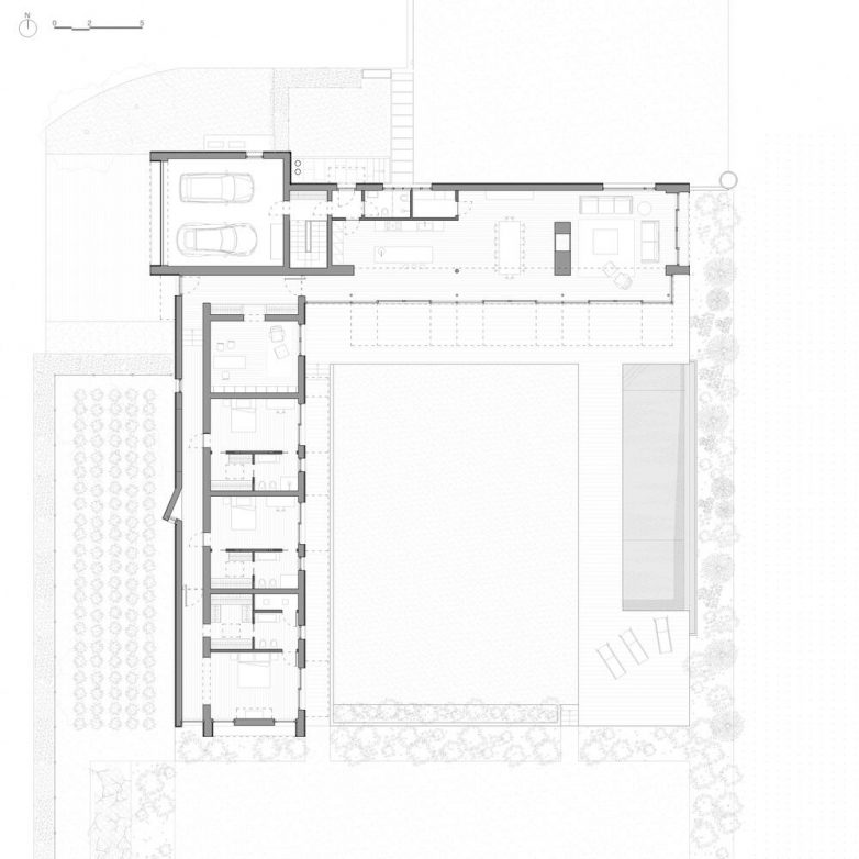
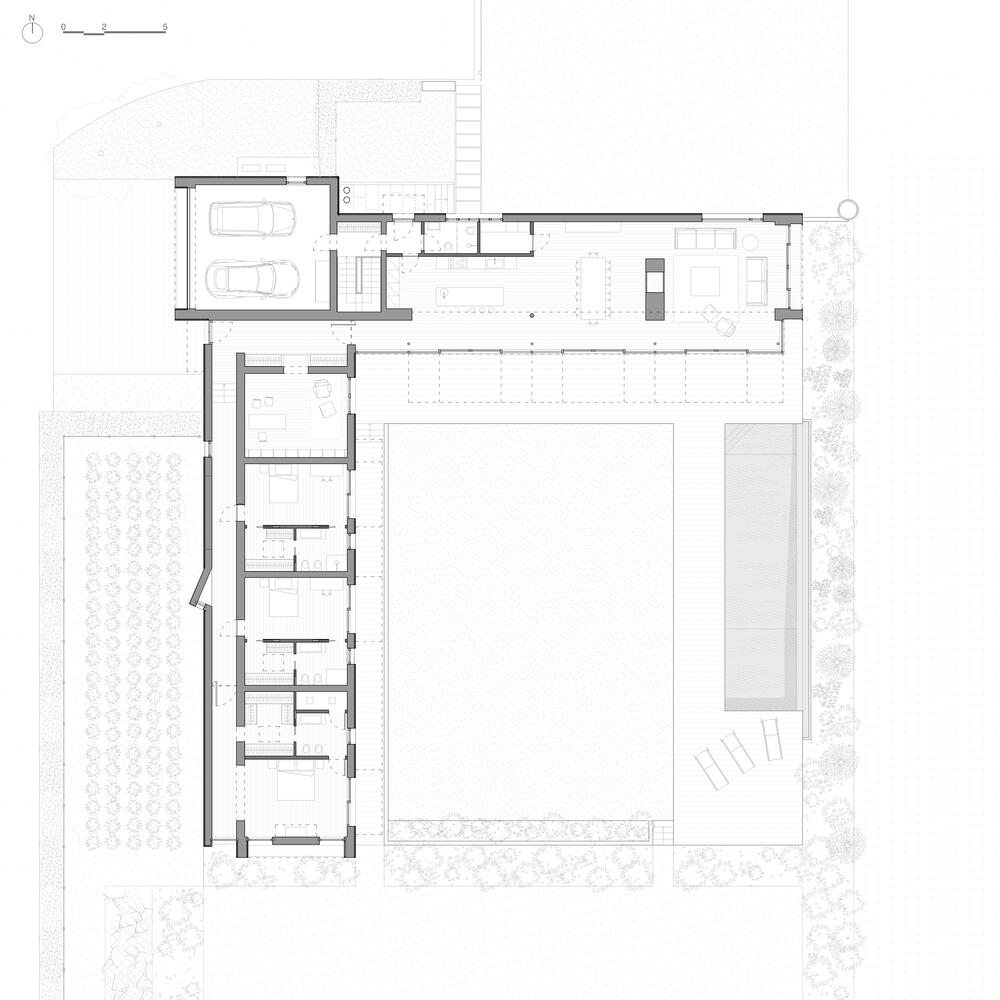
Objekat se sastoji od dva jednoslojna volumena i bazena raspoređenih u obliku slova U da bi se stvorilo privatno dvorište podignuto iznad nivoa zemlje sa kojeg se može uživati u pogledu na okolni pejzaž.
Pročitajte još na Gradnja.rs:
- Dijagonalna kuća: Letnjikovac koji poštuje specifičnosti topografije i pejzaža
- Letnjikovac jednostavne zabatne forme kao nežan dodatak prirodnom okruženju

Kontinuitet između unutrašnjeg i spoljašnjeg prostora
Dva volumena su razdvojena ravnim krovnim elementom koji im daje formalno jedinstvo i razvijeni su na dva blago raspoređena nivoa, sa dnevnim prostorom u severnom i spavaćim prostorom u zapadnom volumenu.
Glavna orijentacija zgrade je ka jugoistoku, otvarajući se ka pejzažu sa velikim prozorom u dnevnom boravku, koji obezbeđuje kontinuitet između unutrašnjeg i spoljašnjeg prostora, jačajući vezu zgrade sa baštom.

Noseći zidovi se sastoje od masivnog drvenog okvira sa sistemom greda ispunjenih celuloznim vlaknima.
Introspektivnije severne i zapadne fasade imaju male prozore na različitim visinama kako bi omogućili prirodno svetlo u prostorijama, istovremeno obezbeđujući privatnost sa ulice i štiteći dom od preovlađujućih vetrova na severu i pregrevanja leti na zapadu.
Posebna pažnja posvećena je konstruktivnim aspektima. Noseći zidovi se sastoje od masivnog drvenog okvira u bonduk sistemu ispunjenog celuloznim vlaknima i učvršćenim pločama od gipsanih vlakana, objasnili su iz studija Dario Scanavacca Architetto za ArchDaily.

Ventilacioni zidovi od punog ariša
Spoljna fasada koristi sistem ventilacionih zidova od punog ariša, koji garantuje značajnu uštedu energije, poboljšanje akustike i zaštitu od vremenskih uticaja.
Grejanje i hlađenje kuće se dobija toplotnom pumpom vazduh-vazduh koja koristi horizontalnu geotermalnu energiju, značajno smanjujući tekuće troškove, u kombinaciji sa fotonaponskim i solarnim termalnim sistemom.

Veliki prozor napravljen je od veoma tankog aluminijumskog profila i stakla sa niskim emisijama.
Posebna pažnja je posvećena velikom prozoru okrenutom prema jugu napravljenom od veoma tankog aluminijumskog profila i stakla sa niskim koefcijentom prolaska toplote.
Sunčeva svetlost sa prozora zimi obezbeđuje udobnost stambenog prostora, dok leti sistem spoljnih filterskih zavesa štiti kuću od sunčeve svetlosti.

Grafički prilozi
Foto-galerija















Faktografija
Country House
Basano Del Grapa, Italija
Dario Scanavacca Architetto
Dario Scanavacca
350 m²
2019.
dsA_architettura, Tommy Ilai







sjajno! svaka čast
Nema ničeg suptilnog u kući od neto 350m2. Zaista…