Kuća PennHill u Banjaluci kao kontrapunkt u odnosu na okruženje
Ova kuća od 840 kvadrata uspostavlja potpuno otvoreni odnos sa placem, dok je skoro u potpunosti zatvorena prema susednim objektima.
Porodični stambeni objekat PennHill, izgrađen na brdu Krčmarice sa pogledom na Banjaluku, svedenog je savremenog arhitektonskog izraza, a autorski ga potpisuju Saša i Malina Čvoro iz biroa 4+arhitekti.
Jednostavna, na tek nekoliko oblikovnih elemenata redukovana kuća, ima ulogu kontrapunkta u odnosu na postojeće okruženje.
Prostorni gabariti, odnos prema susednim parcelama, potreba za dvostranim saobraćajnim pristupom, fizičkom i vizuelnom orijentacijom objekta ka gradu uslovili su njenu jedinstvenu arhitektonsku formu.
Pročitajte još na Gradnja.rs:

Postavljanje novih vrednosti i načina ponašanja u arhitekturi
Rukovodeći principi tokom projektovanja i izgradnje objekta bili su kako učiniti kuću razumljivom i pristupačnom korisnicima i posetiocima, ostvariti socio-kulturni doprinos atmosferi suburbanog prostora i težnja prema održivosti.
Lokacija na kojoj je izgrađena kuća PennHill zauzima površinu od 16.000 metara kvadratnih. Pozicionirana je na obodu grada, gde od izgrađenih struktura dominiraju pojedinačne porodične kuće, a od prirodnih struktura bogate šume hrasta i graba.
Pre početka izgradnje ovog, kao i nekolicine objekata u okruženju, ovo je bio prostor koji je karakterističan za ruralna naselja u okruženju Banjaluke.
U tom smislu, osnovni zadatak prilikom izgradnje kuće predstavljalo je postavljanje novih vrednosti i načina ponašanja, a u skladu sa kontekstom i potrebama rezidencijalnog naselja u nastajanju.

Inkorporiranje novog objekta u postojeći prostor bazirano je na principu kontrasta u odnosu na okruženje.
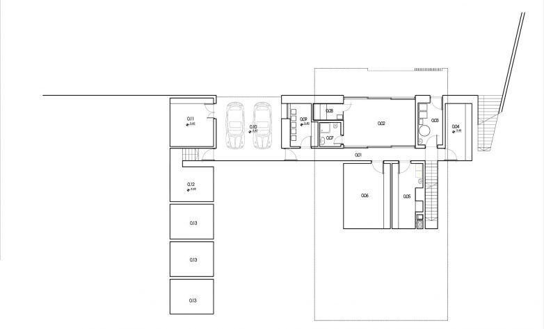
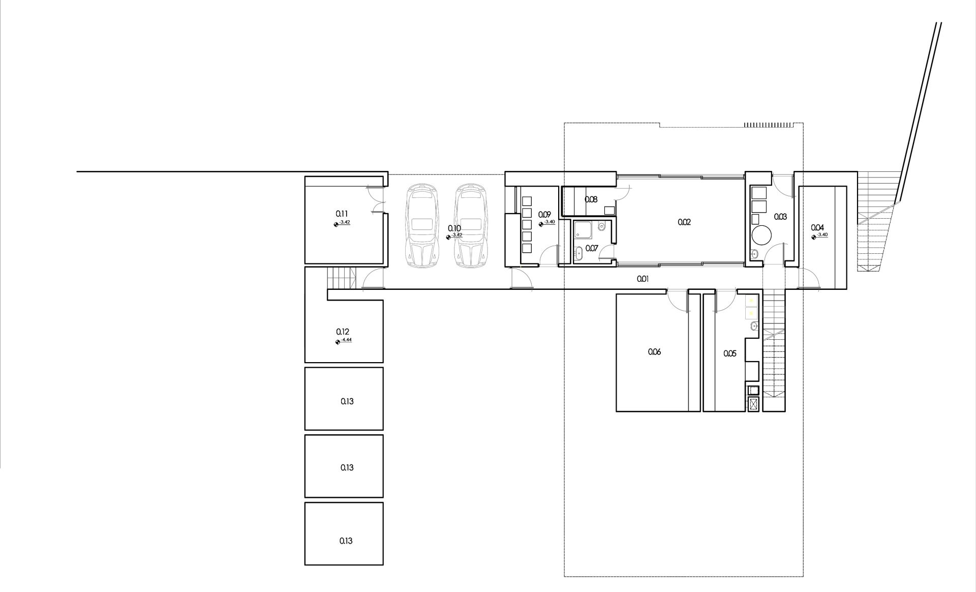
Funkcionalna organizacija objekta od 840 m2 izvedena je kroz tri nivoa, prilagođena potrebama korisnika i zahtevima relativno nagnutnog terena i neposrednog okruženja.
Inkorporiranje novog objekta u postojeći prostor bazirano je na principu kontrasta u odnosu na okruženje, a kuća svedena na čistu formu ambalaže uspostavlja potpuno „otvoreni“ odnos sa okućnicom i širim prirodnim okruženjem, dok je skoro u potpunosti zatvorena prema susednim objektima.
“Kuća PennHill pretenduje da bude simbol savremenog i element identifikacije, pri čemu kombinacija inovativnih i tradicionalnih materijala treba da ponudi odgovor za opšte prihvatanje”, kažu za naš portal Saša i Malina Čvoro.

Fasadni front okrenut samom sebi
Osnovni oblikovni element kuće njena je potpuno transparentna strana koja se otvara prema zapadnom suncu, bazenu i gradu u daljini. Ovim je, navode autori, postignut suštinski kvalitet prostora unutar kuće, bez jasno određene granice između unutrašnjeg prostora i spoljašnjeg sveta.
Kuća PennHill je u najvećoj meri fokusirana i otvorena na zapad, odnosno na grad. Svojom se zapadnom stranom potpuno otvara ka prirodi i uvlači je u sebe, negirajući granicu između unutrašnjeg i spoljašnjeg prostora.
S druge strane je gotovo potpuno zatvorena ka istoku i neposrednom okruženju, tvoreći tako fasadni front koji je okrenut samom sebi.
Kući se pristupa sa južne (gornje) strane parcele na visinskoj razlici od 5 metara u odnosu na severnu (donju) stranu.
Visinska razlika od cca 250 metara u odnosu na centar Banjaluke i dolinu Vrbasa omogućava sagledavanje kompletne panorame grada i vrhova planina Kozare, Grmeča i Papuka u drugom planu.

Potpuno objedinjeni sadržaji dnevne zone u prizemlju nižu se jedan za drugim unutar pravilne geometrije konstruktivnih elemenata.
Koncept objekta sveden je na dve celine – pravilan beli kubus kuće koji dominira okruženjem i suterensku etažu koja je ugrađena u teren i nevidljiva prolaznicima.
Potpuno objedinjeni sadržaji dnevne zone u prizemlju kuće nižu se jedan za drugim unutar pravilne geometrije konstruktivnih elemenata.
Kontiunitet prekidaju jedino stepenice od čelika sa drvenim gazištima koje vode na gornju etažu i posebno su oblikovane kao težište kompozicije.

Oaza za uživanje u suterenu
U otvorenom planu, dnevni boravak sa trpezarijom i kuhinjom, kao i radna soba, su na nivou prizemlja i zauzimaju površinu od oko 250 m2.
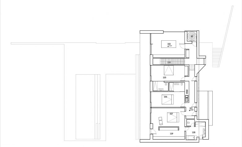
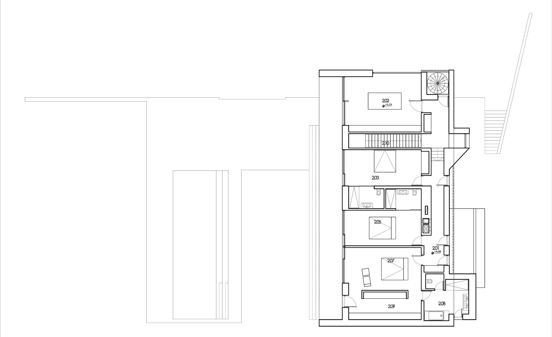
Iz dnevne zone kuće niz nekoliko stepenika silazi se na veliku popločanu terasu sa bazenom i mediteranski vrt. Kao i u prizemlju, sve prostorije na prvom spratu imaju orijentaciju prema gradu, a atelje dodatno i prema šumi.
Na ovoj etaži, koja ima površinu od 185 m2, smeštene su tri spavaće sobe od kojih svaka ima svoje kupatilo, zatim je tu prostrani modni atelje, pored kojeg nas stepenišna vertikala vodi na krov kuće za posebno organizovane foto-sesije.
Na najnižoj, suterenskoj etaži u direktnom kontaktu sa terenom i neposrednim okruženjem izdvaja se prostorija za slobodno vreme i rekreaciju sa pripadajućom saunom.
Zajedno sa malom natkrivenom terasom i posebno osmišljenim intimnim vrtom na koji direktno izlazi, ovaj deo kuće predstavlja mirnu oazu za uživanje.

Pretežna orijentacija objekta ka zapadu uslovljava minimalne troškove za zagrejavanje objekta u zimskom periodu.
Ostali programski sadržaji suterena su vinski podrum, servisne prostorije i tehničke prostorije gde su smeštene toplotne pumpe za grejanje i hlađenje, te centralni bojler koji snabdeva celu kuću toplom vodom.
Ukupna površina suterenske etaže iznosi 225 metara kvadratnih, a tu su još natkrivena parking mesta i poseban blok rezervisan za bazensku tehniku.
Objekat je izveden kao niskoenergetski, sa centralnim zagrejavanjem prostora i pripremom sanitarne tople vode toplotnim pumpama.
Pretežna orijentacija objekta ka zapadu uslovljava minimalne troškove za zagrejavanje objekta u zimskom periodu, dok pozicija objekta na vrhu brda omogućava maksimalno iskorišćenje strujanja dominantnih vetrova u letnjem periodu u cilju prirodnog hlađenja.

Padavine za održavanje zelenih površina
Kako napominju autori, poseban izazov u projektu je bilo je rešenje prikupljanja padavina sa arhitektonski materijalizovanih površina i njihovo skladištenje u komore (cca 65 m3) koje su formirane u armiranobetonskoj temeljnoj konstrukciji bazena. Ova količina vode se koristi za održavanje ozelenjenih površina oko objekta.
Jednostavno i svedeno arhitektonsko oblikovanje čita se kroz formu belog kubusa uz savremenu upotrebu drveta kao lokalnog tradicionalnog materijala na zapadnoj fasadi kuće.
Materijalizacija istočne fasade, oblikovane poput savremene skulpture od keramičkih ploča sa teksturom kortena, kontrapunkt je osnovnom kubusu kuće i predstavlja ono nešto više u njenom oblikovanju, navode autori.
Za arhitektonske elemente u parteru i suterenske vertikalne elemente korišćen je ogoljeni beton sa vidnom strukturom oplate čineći tako neutralni postament za osnovni beli kubus objekta.

Arhitektonska ideja dosledno je sprovedena kroz prostorne odnose osnovnih elemenata kuće.
Unutrašnjost je svedena i u skladu sa spoljšanjim oblikovnim izrazom, jednostavnih i neutralnih podova, belih zidnih i stropnih površina.
Enterijer kuće se, prema rečima autora, svodi na ono neophodno i nužno, arhitektura se povlači u drugi plan pred budućim stanarima, puštajući ih da prostor ispune životom i stvore sebi dom kakav su zamišljali.
Velika pažnja poklonjena je konstrukciji i materijalizaciji, a arhitektonska ideja dosledno je sprovedena kroz prostorne odnose osnovnih elemenata kuće.
Pozicija objekta na parceli i njegova prostorna organizacija su uslovili izbor armiranobetonskog livenog konstruktivnog sklopa na istočnoj strani objekta, te čelični konstruktivni skelet na njegovoj zapadnoj strani.

Konstruktivni sklop definisan arhitektonskim konceptom
Međuspratne konstrukcije su izvedene sa čeličnim podvlakama, rebrima i spregnutim armirano betonskim tavanicama, a ovakav izbor je omogućio maksimalno otvaranje objekta prema bazenu i pogled ka gradu. U tom smislu konstruktivni sklop je definisan arhitektonskim konceptom.
„Dimenzije i položaj konstruktivnih elemenata su proizašle iz arhitektonskog dizajna i predstavljaju njegov integrativni deo“, kažu za Gradnja.rs Saša i Malina Čvoro.
Stoga je, dodaju banjalučki arhitekti, i sasvim opravdano da se čelični i armiranobetonski konstruktivni elementi u najvećem delu ne sakrivaju, već su ostavljeni u potpunosti ogoljeni i vidni u skladu sa celokupnim konceptom kuće PennHill.
Grafički prilozi
Foto-galerija


Faktografija
- naziv objekta: Kuća PennHill
- lokacija: Krčmarice, Banjaluka
- investitor: Privatno lice
- projektant: 4+arhitekti
- autori: Saša i Malina Čvoro
- godina projektovanja: 2018.
- godina realizacije: 2018–2020.
- površina: 840 m2
- autorka fotografija: Anida Krečo









citiram: „sa arhitektonski materijalizovanih povrsina“ – e svasta cu jos procitati i saznati 🙁
stepenice fantasticne, ostalo … prenaglasen prazan prostor, punoca i imtima porodicnog okruzenja, gde nestade dom ovde?! galerijski prostor ipak? a fasada je, paaa…jeste
glupost neopevana
Gledao nedavno emisiju gdje se bave gradnjom, objekat skoro pa isti samo sto su vanjski dio ugrađenje kao čelične mreže…