Projekat fontane na Slaviji čija će izgradnja koštati 2 miliona evra
Mesec dana nakon raspisivanja tendera za rekonstrukciju trga Slavija počelo prijavljivanje za izgradnju fontane u okviru centralnog ostrva kružnog toka.
Direkcija za izgradnju Beograda raspisala je ove nedelje tender za izvođača koji će biti otvoren do 27. maja. Centralna fontana imaće veliki kružni bazen prečnika 32 metara, a vizuelni doživljaj stvaraće 261 mlaznica postavljena u 6 koncentričnih krugova unutar bazena. Moderan sistem pumpi omogućavaće pravljenje većeg broja različitih vodenih figura, piše Beobuild.
Centralna mlaznica u bazenu fontane biće u mogućnosti da u maksimumu kapaciteta dosegne visinu od čak 16 metara.
Bazen fontane biće prelivnog karaktera, izgrađen od armiranog betona i presvučen granitnim pločama svetlo sive boje. Unutar bazena će se nalaziti velika centralna mlaznica okružena sa šest koncentričnih krugova vertikalnih mlazova različite veličine. Visina mlazova raste od oboda ka centru, pa će maksimalna visina mlaza na obodu biti 6 metara, dok će centralna mlaznica biti u mogućnosti da u maksimumu kapaciteta dosegne čak 16 metara. Pored toga, mesingane mlaznice imaće podesive zglobove što pruža razne mogućnosti u oblikovanju vodene atrakcije.
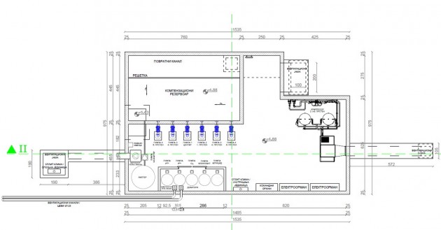
Voda iz velikog bazena prelivaće se u obodni kanal, a oko fontane je planiran ozelenjen kružni prostor sa cvetnim aranžmanima (Lavandula angustifolia i Veronica spicata Heidekind). Ispod bazena fontane planirana je mašinska soba, sa složenim sistemom rezervoara i pumpi, kao i sistem flitera za tretman vode.
Radovi na izgradnji fontane izvodiće se paralelno sa rekonstrukcijom trga u dve faze, od 1. do 60. dana i od 126. do 155. dana.
Vrednost fontane je procenjena na oko 2 miliona evra.
Pročitajte i ovaj zanimljivi članak:
http://www.gradnja.rs/kako-su-nekad-izgledali-gradovi-jugoslavije/








