Novo lice Šilerove: U Zemunu planirana stambena zgrada u opeci
Monte Invest Group iz Beograda planira izgradnju objekta u kome je projektovan 61 stan, dva lokala u prizemlju i 84 parking mesta u podzemnoj garaži.
Čuvena Šilerova ulica u Zemunu dobija potpuno novo izgled jer se na ovoj lokaciji veliki broj kuća ruši i pretvara u stambeno-poslovne objekte.
Naime, Grad Beograda oglasio je javnu prezentaciju urbanističkog projekta za izgradnju objekta na uglu Šilerove (97) i Ugrinovačke.
Nosilac izrade projekta je „DALMAK” iz Beograda, investitor je beogradski „Monte Invest Group”, a kao odgovorni projektant idejnog rešenja potpisana je Nataša Žugić, dia.
Pročitajte još na Gradnja.rs:
- Stambeno-poslovna četvorospratnica od 2.100 kvadrata planirana u Zemunu
- U Zemunu u planu stambeno-poslovna zgrada sa 122 stana

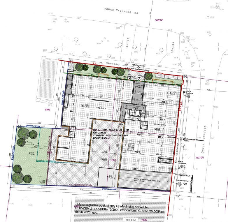
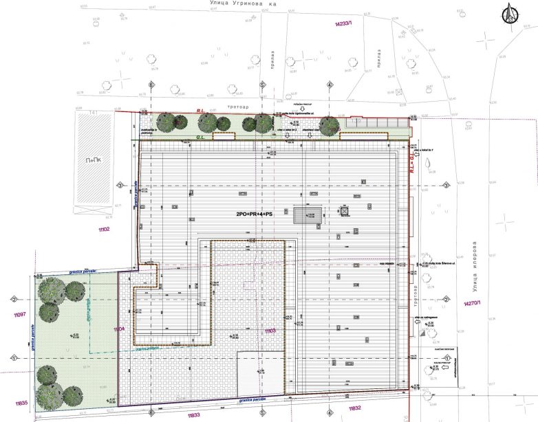
Parcela od 1.681 kvadrat
Građevinska parcela na kojij se planira izgradnja stambeno-poslovnog objekta, obuhvata 4 katastarske parcele ukupne površine od 1.681 m2.
Parcela ima pristup dvema javnim saobraćajnim površinama – Ulici Ugrinovačkoj sa severne strane i Ulici Šilerovoj sa istočne strane parcele.

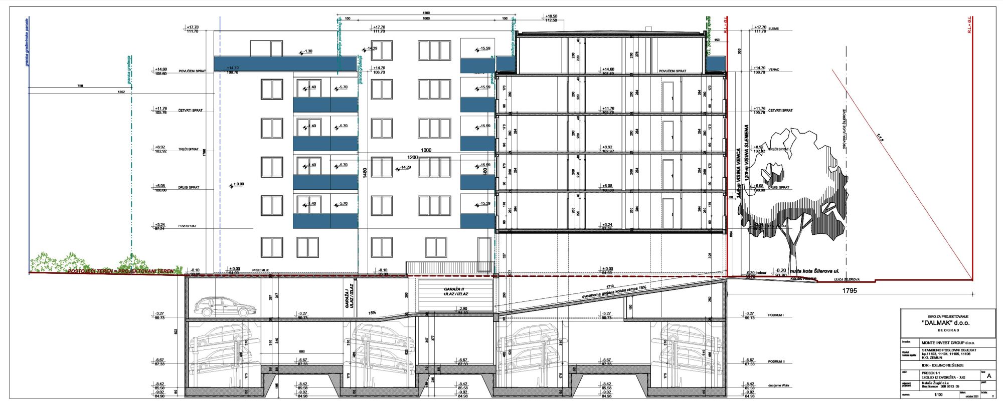
Kolski pristup na parcelu je projektovan iz Ulice Šilerove, sa južne strane parcele.
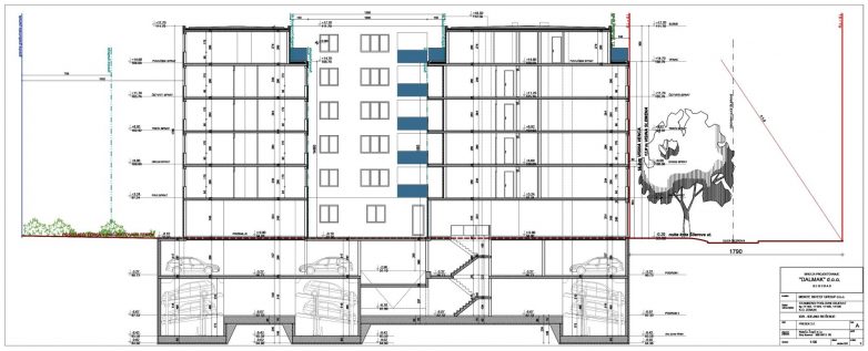
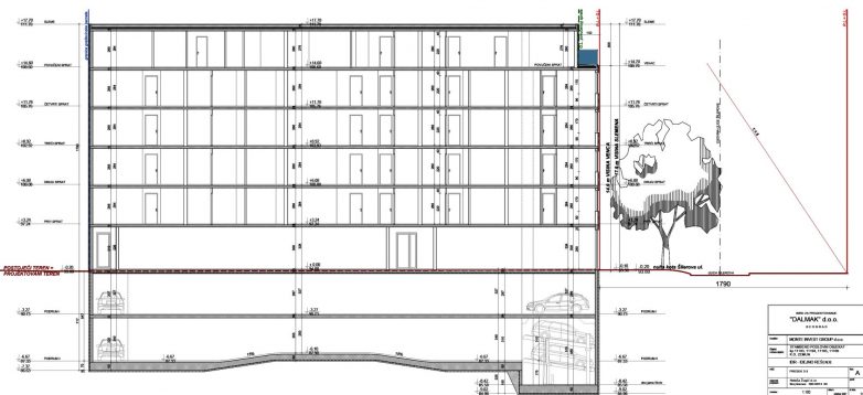
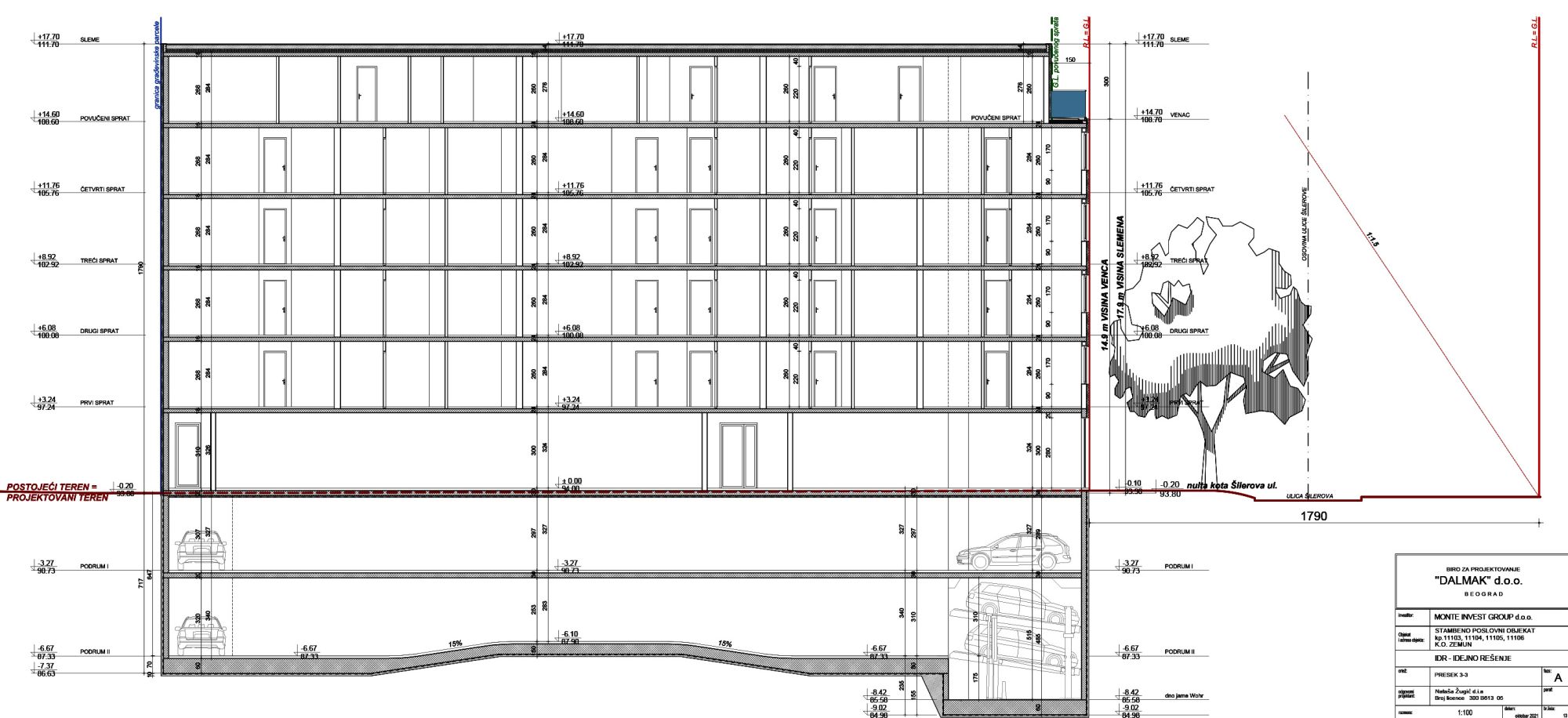
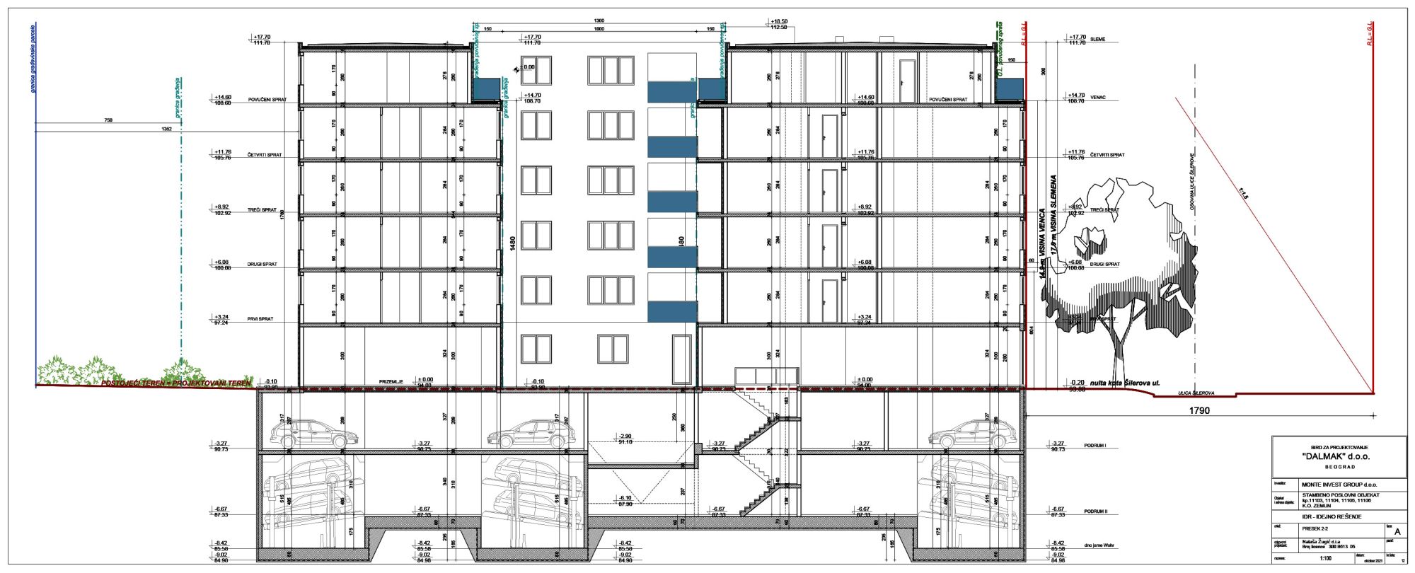
Na građevinskoj parceli se projektuje stambeno-poslovni objekat spratnosti 2Po+Pr+4+Ps, postavljen na građevinske linije i projektovan u okviru zone građenja.
Objekat je dvostrano uzidan (dubina uziđivanja = 17 m), a po formi je poluatrijumskog tipa.
Kolski pristup na parcelu je projektovan iz Ulice Šilerove, sa južne strane parcele.

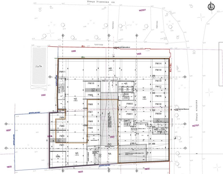
Projektovana 84 parking mesta
U Garaži 1 projektovano je 23 parking mesta, od kojih su 4 namenjena za lica sa posebnim potrebama. Osim Garaže 1, u Podrumu 1 projektovane su vertikalne komunikacije (stepeništa i liftovi), magacin Lokala 1 i toplotna podstanica.
U Garaži 2 projektovano je 61 parking mesto, kao i vertikalne komunikacije i magacin Lokala 1. Ukupno je projektovano 84 parking mesta, od kojih su 4 namenjena za lica sa posebnim potrebama.

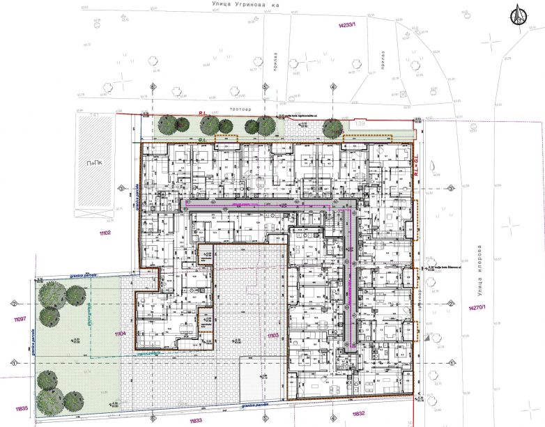
Osim dva lokala, u prizemlju su projektovani stambeni ulaz i stambene komunikacije.
U prizemlju su projektovana dva lokala. Na prvom spratu predviđeno je ukupno 13 stanova, dok su drugi, treći i četvrti sprat projektovani su kao „tipski“, sa po 13 stanova na svakoj etaži.
Na povučenom spratu projektovano je još 9 stanova, te tako dolazimo do ukupne cifre od 61 stana.
Ukupna neto površina objekta iznosi 7.336 m2, dok ukupna bruto površina zahvata 8.659 m2 (nadzemno 6.008 m2 i podzemno 2.651 m2).
Stanovanje zauzima ukupnu površinu od 3.914 m² (79.85%) a ukupna površina poslovanja iznosi 988 m2 (20.15%).

Primedbe i sugestije do 13. aprila
Zainteresovani mogu tokom javne prezentacije da izvrše uvid u urbanistički projekat, kao i da svoje primedbe i sugestije na planirana rešenja u pisanoj formi dostave Sekretarijatu za urbanizam i građevinske poslov, najkasnije do 13. aprila 2023. godine.
Grafički prilozi













Sigurno neće stavljati opeku i listele na dvorišnim fasadama…
A o parking mestima nema ni reči..
Bar 70% stanara neće kupiti garažno mesto!
A onda uzas!
da li se zna da li ce ovaj projekat otpoceti u te kuce uselile su se beskucnici koji zive vec dve godine tako?