Vojna zgrada u Balkanskoj ulici dobija novu funkciju – raspisan tender
Zgrada iz 1960, koja je napuštena 2010. godine, dobiće novi fasadni omotač, spoljašnje stepenište i potpuno novi enterijer.
Ministarstvo finansija Republike Srbije raspisalo je tender za izradu projektno-tehničke dokumentacije za rekonstrukciju i dogradnju zgrade državnih organa u Balkanskoj ulici broj 53 u Beogradu.
U pitanju je zidana zgrada izgrađena 1960. godine na Savskom vencu ukupne površine 2.124 m2, koja je potom adaptirana početkom osamdesetih, a napuštena 2010. godine.
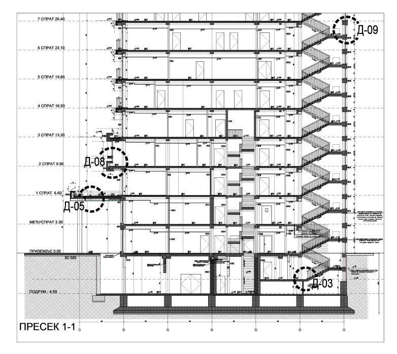
Objekat je spratnosti Po+Pr+Ms+14, ukupne neto površine 8.741 m², ukupne bruto nadzemne površine 9.613 i bruto izgrađene površine 10.590 kvadratna metra.
Pročitajte još na Gradnja.rs:
- Na Vračaru planirana podzemna garaža od 11.660 kvadrata
- Kako će izgledati filmski studio City Media Park u Krnjači

Prostorno jedinstvene funkcionalne celine
Projektom rekonstrukcije i dogradnje, koji arhitektonski potpisuje Mašinoprojekt Kopring iz Beograda, predviđeno je da u objektu budu smešteni Uprava carina, CFCU, Sektor za drugostepeni carinski i poreski postupak, Uprava za javni dug, Uprava za igre na sreću, Uprava za duvan i Uprava za slobodne zone.
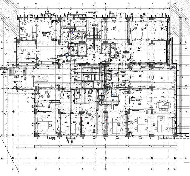
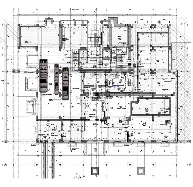
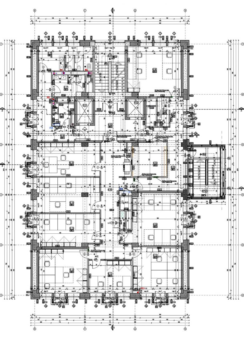
Kako se navodi u dokumentaciji, rekonstrukcijom i dogradnjom zadržan je osnovni oblik i gabarit objekta uz racionalizaciju prostora, objedinjujući pojedine organizacione jedinice u prostorno jedinstvene funkcionalne celine.
Spoljašnje stepenište spaja četrnaesti i treći sprat objekta i služi isključivo za evakuaciju u slučaju požara.
Osnovne spoljašnje intervencije na objektu odnose se na formiranje novog spoljnog stepeništa, proisteklog iz protivpožarnih zahteva, i zamena fasadnog omotača novim, termoizolovanim, u skladu sa zahtevima energetske efikasnosti.
U cilju uspostavljanja jedinstvenog sistema protivpožarne zaštite na nivou celog objekta, rekonstrukcijom i dogradnjom je angažovano stepenište koje je nekada bilo stepenište za biblioteku kao evakuaciono.
Za potrebe zaposlenih projektovane su prostorije čajnih kuhinja na svakom spratu.
Funkcionalna organizacija prostora definisana je u odnosu na planiranu namenu koja podrazumeva formiranje novih unutrašnjih prostora uz najveći stepen poštovanja postojeće koncepcije i strukture.
Ovo se naročito odnosi na funkcionalnost prostora, kretanje korisnika, efikasnost u radu, bezbednosne zahteve, materijalizaciju, nivo estetike i ukupan režim rada.
Sa aspekta tehnologije sve postojeće instalacije i sistemi u objektu će biti zamenjeni novim i izvršiće se priključenje na gradsku infrastrukturu.

Sanacija i trajna zaštita konstrukcije
Sva vidljiva oštećenja fizičke deformacije na konstrukciji biće sanirane i trajno zaštićene, a na nivou celog objekta i okruženja povećaće se nivo fizičke i tehničke bezbednosti i kontrole prostora svih perimetara zgrade.
Noseća konstrukcija i zidovi će podleći samo sanaciji i trajnoj zaštiti, uz eventualno otvaranje otvora za vrata gde je to funkcijom neophodno.
Fasada se u celosti zamenjuje novom termoizolacijom spolja i fasadnom oblogom na podkonstrukciji.
Rekonstrukcijom i dogradnjom objekta u svemu je zadržan postojeći spoljnji karakter objekta i elementi oblikovanja, osim dogradnje spoljnog stepeništa i uvećanja omotača zgrad maks. 15 cm zbog energetske efikasnosti.
Fasada se u celosti zamenjuje novom termoizolacijom spolja i fasadnom oblogom na potkonstrukciji, u svemu oblikovno i estetski prateći postojeći objekat.
U tom smislu gabarit se minimalno uvećava za potrebe energetske efikasnosti i dodavanjem spoljašnjeg stepeništa koje je locirano uz jugoistočnu fasadu kule, izlazi na terasu trećeg sprata i time se ne povećava gabarit objekta odnosno zauzetost parcele.
Svi prilazi objektu, kolski i pešački su zadržani iz postojećih ulica i pravaca, a prilikom projektovanja vodilo se računa o dostupnosti prilaza zgradi tako što je ukinuta mogućnost parkiranja pod nadstrešnicom oko prilaza.

Prijem ponuda do 28. aprila
Predviđeno je da svi planirani radovi na radovi na rekonstrukciji i dogradnji traju 14 meseci od dana uvođenja izabranog ponuđača u posao, a rok za prijem ponuda je 28. april 2022. godine.








