Divčibar: Multifunkcionalni objekat sa savršenim pogledom na ski-stazu
Čista i savremena interpretacija tradicionalnog uz zadržavanje lokalnog duha bila je ideja vodilja pri projektovanju ovog objekta na Divčibarama.
Projektni biro GPD Kej iz Valjeva aktivno radi na osmišljavanju atraktivnih sadržaja na Divčibarama, poznatom planinsko-turističkom odmaralištu na planini Maljen. Ovom prilikom, predstavljamo vam njihov objekat pod nazivom „Divčibar“, koji je izgrađen kao upravna zgrada javnog skijališta sa pratećim uslužno-ugostiteljskim sadržajima u okviru „Divčibare Ski Resorta“.
Kako je uklapanje u kontekst bilo jedna od ključnih smernica u procesu projektovanja, težilo se čistoj i savremenoj interpretaciji tradicionalnog uz zadržavanje lokalnog karaktera, navode autori projekta.
Pročitajte još na Gradnja.rs:
- Planinska kuća od betona suptilno utopljena u okruženje
- Montažna kuća na Staroj planini oblikovana šarom pirotskog ćilima

Pročišćena forma se bazira na primeni konstruktivnih i tesarskih elemenata naglašene jednostavnosti.
Pročišćena forma se bazira na primeni konstruktivnih i tesarskih elemenata naglašene jednostavnosti. Raster objekta i čista forma, podržali su jednostavnu i slobodnu organizaciju prostora sa akcentovanjem otvaranja ka stazi u vidu velikih staklenih površina.
Na fasadi objekta korišćen je lokalni divčibarski kamen sakupljen oko ski staze. Strm krov kao odlika planinskog objekta, svojom „kontra“ jednovodnom orijentacijom otvara ceo objekat ka stazi, tako da komunicira sa njom i njenim korisnicima na način da ih „poziva“ na ulazak, a ujedno naglašava završetak staze.

Objekat i staza kao gledalište i scena
Velike staklene površine dopuštaju da se staza i objekat prožimaju tokom celog dana, stvarajući dinamiku transparentnog prostora i odnos između objekta i staze, kao odnos između gledališta i scene.
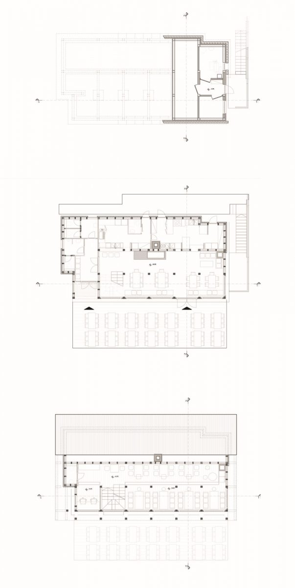
Glavni ulaz u objekat organizovan je sa južne strane preko restoranske terase. Uz ulaznu zonu sa vetrobranom i garderobom su smešteni toaleti za korisnike skijališta.

Velike staklene površine dopuštaju da se staza i objekat prožimaju tokom celog dana.
Iz ulazne zone se pristupa restoranskom delu objekta, koji je oganizovan u prizemlju i na galeriji. Deo prizemlja se sastoji iz servisnog dela, koji uključuje kuhinju, magacin kuhinje, garderobu i toalet za zaposlene, magacin dnevnih potreba i šank, sa zasebnim ulazom na severnoj strani.
U okviru suterena su organizovane tehničke prostorije, kotlarnica, ostava za ogrev i magacin. Potkrovlje je najvećim delom organizovano kao restoranski prostor, sa kancelarijom uprave skijališta i toaletom.

Faktografija
- Godina projektovanja: 2016–2019.
- Godina realizacije: 2019.
- Površina objekta: 260 m2
- Spratnost: Su+P+Pk.
- Projektant: Projektni biro GPD Kej d.o.o. Valjevo
- Autor i odgovorni projektant: Milan Jakić, dipl.inž.arh.
- Koautorka: Andrijana Maksimović, dipl.inž.arh.
- Autor i projektant enterijera: Predrag Petković, dipl.inž.arh.
- Saradnik za arhitekturu: Miodrag Maksimović, dipl.inž.arh.
- Saradnik za arhitekturu: Lazar Ćirić, dipl.inž.arh.
- Izvođač: GPD Kej d.o.o. Valjevo
- Odgovorni izvođač: David Maksimović, dipl.inž.arh.
- Saradnik: Slavoljub Marković, dipl.inž.građ.
- Fotografije: Đorđe Đoković
Grafički prilozi
Kad ste već tu…



Kao da je Trijumfalna kapija napravljena, na Divčibarama baš….. Ništa posebno.