Kraj Banje Koviljače projektovano naselje otporno na poplave
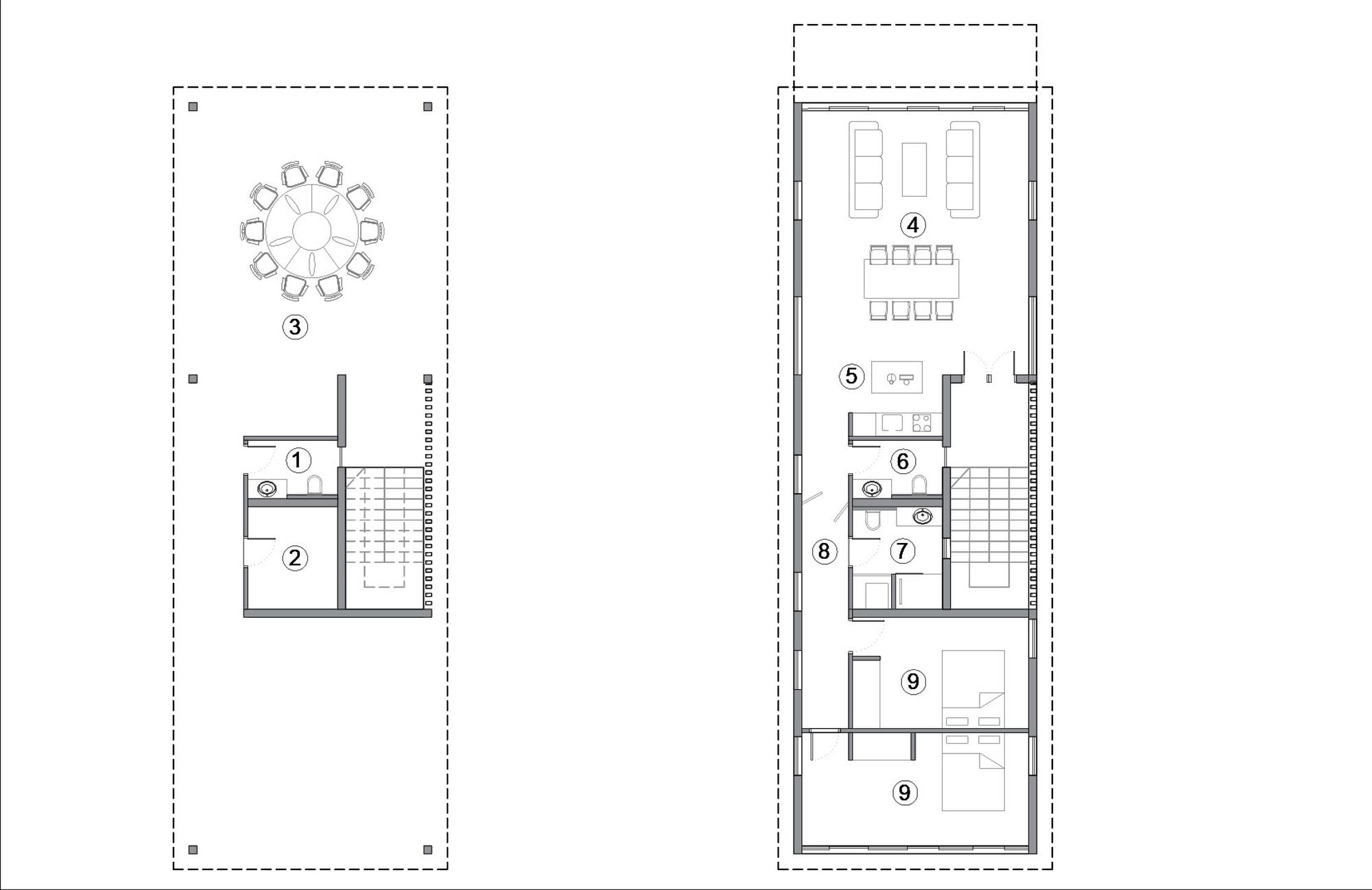
Pored montažnog objekta za smeštaj i rad pored reke, projekat na Drini uključuje i stambeni kompleks sastavljen od 25 jedinica, kao i mini-luku.
Autorka ovog zanimljivog projekta je Nataša Ilić, diplomirani inženjer arhitekture (M. Arch) Arhitektonskog fakulteta Univerziteta u Beogradu, takođe i slikarka, koja je iskustvo u arhitektonskoj struci stekla radeći kao projektant, ali i kao izvođač.
Sticajem okolnosti, najveći projekti na kojima je radila bili su pored vode te je, prirodno, i njeno interesovanje upravo obala, a koncept koji će nam ovom prilikom predstaviti posledica je entuzijazma koji nosi u sebi čitavu deceniju.
Sve je počelo 2014. godine, nakon poplava koje su zadesile Zapadnu Srbiju, a od tog vremena do danas njen rad motivisan je željom da najlepši delovi naše zemlje budu prilagođeni i približeni korisnicima, ali i stavljeni u okvire struke.
„Takvim pristupom bi osim inovativnog urbanističko-arhitektonskog pravca, koji bi postao mesto prepoznavanja različitosti, prilagodili bilo kakvu eventualnu buduću urbanističko-arhitektonsku aktivnost pojedincu, sačuvali obale od eventualne gradnje koja nema predznanje o kompleksnosti i osetljivosti ove i sličnih lokacija“ – kaže za Gradnju Nataša Ilić.
Pročitajte još na Gradnja.rs:

Minimalne intervencije u smislu klasičnog graditeljstva
Iako u ovom momentu za ovo konceptualno-urbanističkog rešenje ne postoji investitor, njegov cilj je vizuelizacija potencijala obrađene lokacije, udaljene oko dva kilometra od Banje Koviljače, kao i poziv na dalju razradu.
„Projekat D_WEST je pilot Arhitekture reke i njime možemo dati smernice za buduće master planove reka, pa tako i tipizirati oblike eventualne buduće gradnje bila ona montažna, privremena ili u obliku splava gde obala pripada svima“ – ističe arhitektkinja.
Projekat u svojoj površini zadržava zeleni karakter lokacije, koja zauzima površinu od 766.969 m², sa minimalnim intervencijama u smislu klasičnog graditeljstva. Akcenat projekta je na parkovskom rešenju sa ambicijom stvaranja Nacionalnog parka Srbije.
„Ipak, ovo su samo smernice jednog novog, atraktivnog rešenja koji će se novim identitetom, atmosferom i načinom korišćenja razlikovati od tradicionalnijih oblika, pa samim tim postati mesto prepoznavanja jednog lokaliteta prezasićenog etno-naseljima, kao jedne ponuđene opcije turizma ovog dela Srbije“, navodi se u opisu projekta.

Na ulazu u lokalitet predviđen je objekat na stubovima, izrađen u montažnoj gradnji, koji koristi solarnu energiju i rečnu vodu u infrastrukturi.
Naša sagovornica ističe da su ključni delovi masterplana nivelacija tla, uvođenje kanala kojim se olakšava korito Drine, pešačka traka duž obale, te povećanje iskorišćenosti zone kroz parkove i sanacija dosadašnje aktivnosti.
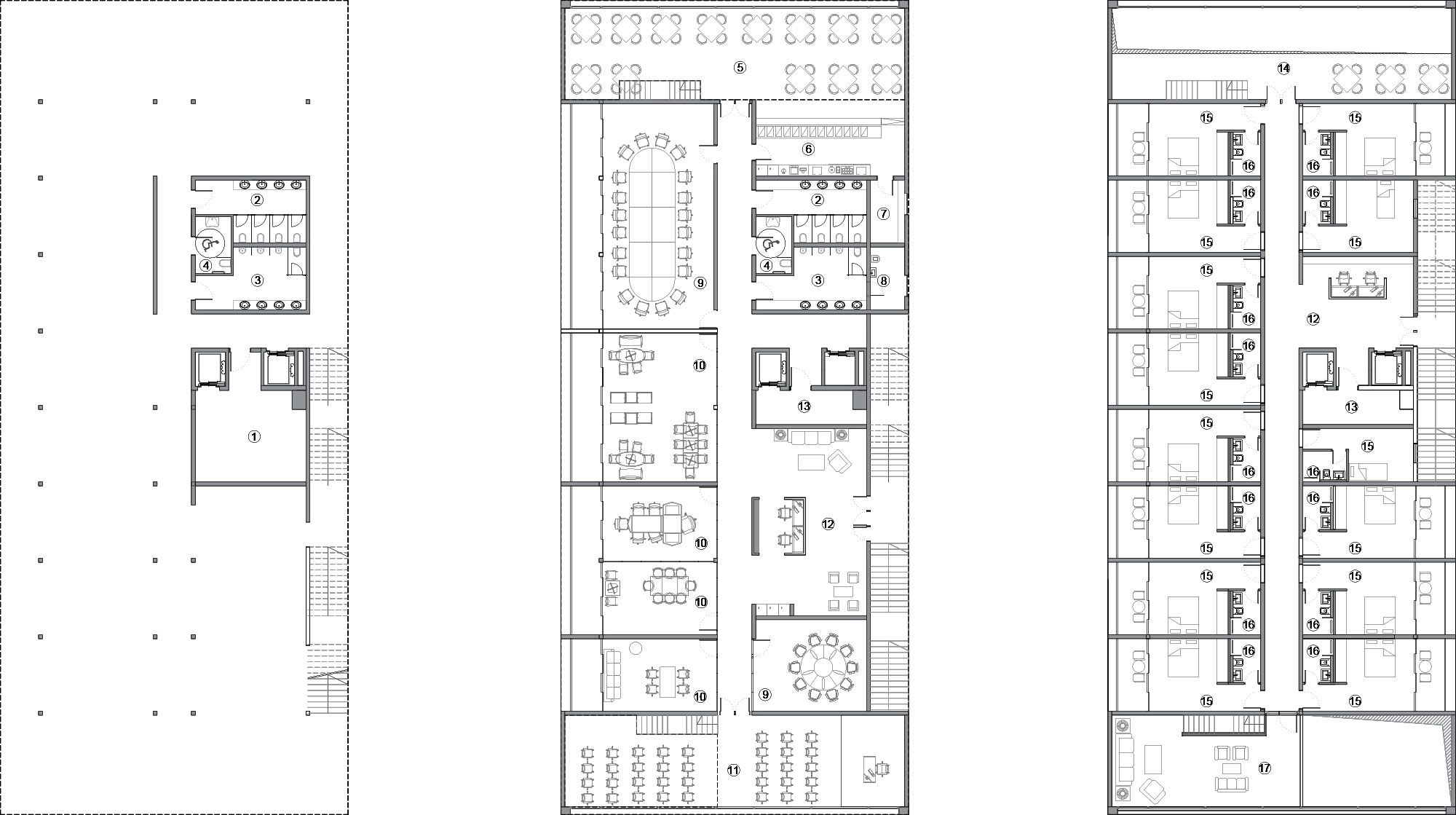
Na ulazu u lokalitet, sa jugozapadne strane, planiran je jedinstven kompleks koji objedinjuje dve funkcije, prilagođen savremenim potrebama korisnika.
Prema planu, predviđen je objekat na stubovima, izrađen u montažnoj gradnji, koji koristi solarnu energiju i rečnu vodu u infrastrukturi. Ovaj prostor je namenjen radu i smeštaju, predstavljajući fuziju različitih funkcija za ljude koji svoj posao obavljaju uz reku.

Smešten duž veštački stvorenog kanala reke, objekat koristi prefabrikovane elemente kako bi se nosio sa čestim poplavama.
S obzirom na rastući broj profesionalaca koji rade od kuće, ovaj novi koncept pruža udobno okruženje sa 20 smeštajnih jedinica, kao i prostor za sastanke, grupni ili individualni rad, daleko od gradske gužve. Smeštajne jedinice mogu biti dostupne kako na kratkoročno, tako i na dugoročno iznajmljivanje.
„Smešten duž veštački stvorenog kanala reke, objekat koristi prefabrikovane elemente kako bi se nosio sa čestim poplavama, pružajući brzu montažu i povećanu otpornost na vodene štete. Kombinujući moderne arhitektonske tehnike sa materijalima otpornim na poplave, ova struktura predstavlja napredan pristup održivom razvoju u područjima podložnim poplavama” – navodi se u projektu.

Dinamične fasade sa podesivim panelima
Osim toga, ova zgrada ima prizemlje sa osnovnim sadržajima, kao što su letnja kuhinja, vešeraj, tehnička soba i kupatila. Gornji nivoi sadrže hostel i coworking prostore, sa dinamičnim fasadama sa podesivim panelima koji služe kao senke za prozore. Ove senke omogućavaju prilagodljivo osvetljenje i kontrolu temperature, poboljšavajući udobnost i energetsku efikasnost zgrade.
„Ovaj promišljeni dizajn ne samo da prioritetizuje funkcionalnost i bezbednost, već stvara i živo, prilagodljivo mesto za rad i odmor. Plažni, kaskadiran prostor sa ogromnim parkom nije rezervisan samo za korisnike objekta, već je otvoren za sve vrste posetilaca“, kaže se u projektu.

Ovaj dizajn, koji naglašava otpornost na poplave, predstavlja spoj savremene tehnologije i efikasnosti.
Dok je površina javnog kupališta Žićina plaža proširena i obogaćena sadržajima koji ne samo da doprinose očuvanju, već i pružaju ugodnije iskustvo korišćenja plažnog prostora, duž glavne putne trase pojavljuje se arhitektonski projekat koji elegantno kombinuje otpornost, održivost i funkcionalnost.
„Dizajniran da se izbori s izazovima poplava, ovaj stambeni kompleks pojedinačnih jedinica ističe se svojom sposobnošću da se izdigne iznad nepogoda prirode, pružajući svojim stanovnicima siguran dom. Ovaj dizajn, koji naglašava otpornost na poplave, predstavlja spoj savremene tehnologije i efikasnosti” – objašnjava se u idejnom rešenju i dodaje:
„Svaka stambena jedinica u ovom projektu pažljivo je izrađena od prefabrikovanih materijala kako bi se anticipiralo izbijanje poplava, obezbeđujući brzu montažu i postavljanje. Ove kuće, podignute na čvrstim stubovima, uspešno odolevaju rastućim vodama, nudeći svojim stanovnicima siguran zaklon usred nepredvidljivih prirodnih sila”.

Tri osnovne kategorije stambenih jedinica
Pružajući raznovrsne opcije stanovanja koje se prilagođavaju različitim potrebama i životnim stilovima, ovaj kompleks nudi tri osnovne kategorije stambenih jedinica.
Stanovanje tipa 1 predstavlja jednosobni prostor unutar prostrane otvorene dnevne zone, dok se jedinice tipa 2 proširuju na dve spavaće sobe radi dodatne udobnosti i prilagodljivosti.
Sa svojim impresivnim prostorom na dva sprata, stambene jedinice tipa 3 nude četiri spavaće sobe, zadovoljavajući potrebe većih porodica ili pojedinaca koji zahtevaju više prostora.
„Ova zajednica, sa ukupno 25 jedinica, promoviše osećaj zajedništva dok istovremeno slavi individualnost. Iako samo četiri kuće imaju ekskluzivan pristup mirnoj obali reke, cela zona projekta ostaje dostupna svim stanovnicima” – ističe se u projektu.

Osim svoje primarne funkcije kao pristaništa za plovila, mini-luka je i prostor koji pruža mogućnost za različite aktivnosti i društvena okupljanja.
Mini-luka je zona je koncipirana kao prirodno utočište za čamce i male privatne barke, namenjene lokalnom stanovništvu. Osim svoje primarne funkcije kao pristaništa za plovila, ova oblast je takođe osmišljena kao prostor koji pruža mogućnost za različite aktivnosti i društvena okupljanja.
„Uz estetski dizajniranu obalu i blizinu rekreacionih sadržaja, ovaj deo prostora poziva na opuštajuće trenutke na vodi, stvarajući harmoničan spoj između funkcionalnosti i estetike” – kaže se u objašnjenju projekta D_WEST.
Kako na kraju navodi Nataša Ilić, sledeći koraci su prepoznavanje vrednosti i potencijala projekta od strane institucija nadležnih za donošenje odluka po pitanju Zakonske regulative, plan investicija, a zatim i uključivanje rečnih inženjera i stručnjaka iz oblasti poznavanja rečnih korita, pa i razvoj projekta koji je ovde u fazi koncepta i na nivou idejnog arhitektonsko-urbanističkog rešenja.
Grafički prilozi




3D vizuelizacija















