Jezero kao glavni element enterijera bele vikendice
Suština dizajna ove porodične vikendice jeste obližnje jezero, pa je i sama kuća nazvana Prozor jezera.
Nova vikendica izgrađena je na mestu stare porodične kuće koja je pozicionirana na samo nekoliko koraka od obale živopisnog kanadskog jezera Lac Plaisant u Kvebeku.
Zahvaljujući jednostavnom ali prefinjenom dizajnu, arhitekte firme Yh2 uspele su da naprave atmosferu koja je karakteristična za vikendice, a to je ušuškani drveni dom koji svojim enterijerskim rešenjima omogućava prijatan odmor i istinsku komunikaciju s prirodom.
Beli kedar nalazi se na krovu kao i na svim fasadama osim na onoj ka jezeru koja je potpuno urađena u staklu.
Krov i fasada objekta izvedeni su od belog kedrovog drveta, dok fasadu sa strane okrenute jezeru čine tri velika staklena panela koji omogućavajući prisnu povezanost unutrašnjosti objekta s okruženjem.
Transparencija ka jezeru
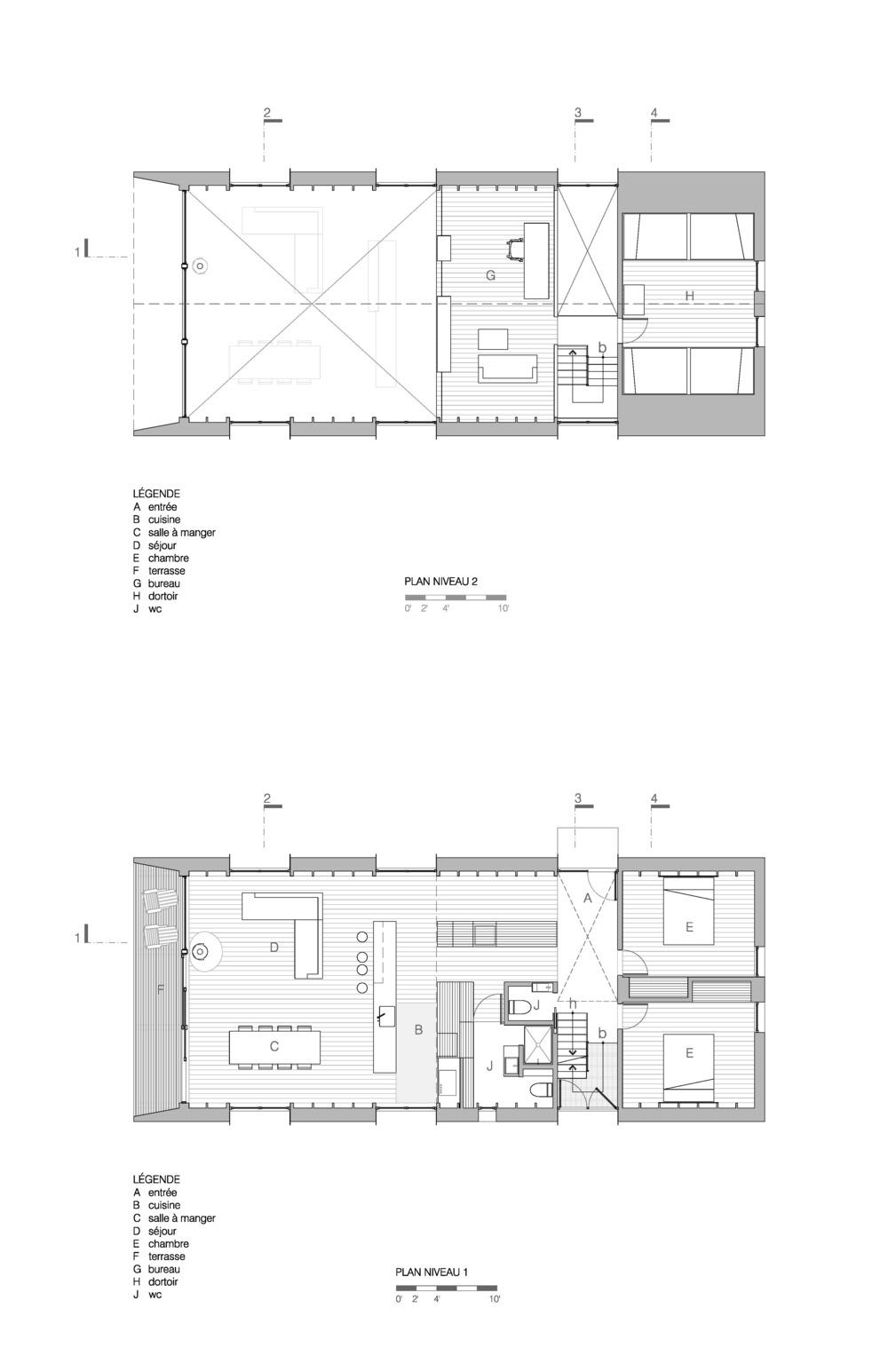
Kuća od 140 kvadratnih metara, koja je izvedena u potpunosti od drveta u jasnoj i čistoj formi, ima ogroman dnevni boravak sa trpezarijom i kuhinjom kao i spavaći blok sa svim pratećim prostorijama.
Potpuna transparentnost južne fasade tokom jeseni i zime omogućava dovoljan prodor sunčeve svetlosti u unutrašnjost, dok gusta okolna stabla drveća štite kuću od jakog letnjeg sunca i pružaju privatnost kada je količina čamaca na jezeru znatno povećana.
Podržavajući nežan, jednostavan i opušten način života, unutrašnjost vikendice pruža sav potreban komfor koji je ukućanima potreban tokom odmora.
Iako nije malog gabarita, u poređenju s okolnim prirodnim prostranstvom i jezerom, vikendica deluje skromno i nenametljivo – što je i bila ideja investitora.
Iako nije malog gabarita, u poređenju s okolnim prirodnim prostranstvom i jezerom, vikendica deluje skromno i nenametljivo.
Osnova kuće
Galerija fotografija
Foto: Francis Pelletier via V2com





















