Klinč istorijskog karaktera zgrade i savremenog dizajna dao enterijeru pravi štimung
Izložena originalna opeka stare zgrade u Kijevu primarni je element u oblikovanju enterijera.
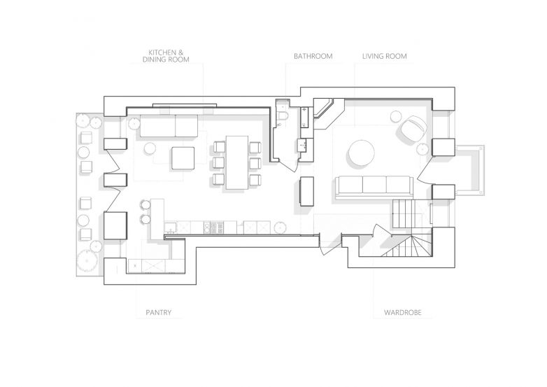
Arhitektonska firma B2.group dobila je zadatak da dupleks površine 80 kvadratnih metara preoblikuje u prostor adekvatan za život mlade, sofisticirane osobe koja će u njemu moći da uživa sama ali i sa svojim partnerom. Inicijalna ideja arhitekti bila je da se u što većoj meri očuva, vrati i iskoristi originalni karakter objekta. Arhitekte su smatrale da autentična pozadina, koju čini zid od opeke, pravi preko potreban kontrast ali istovremeno naglašava čistoću modernih oblika. Bile su više nego u pravu!
Prvi izazov za arhitekte bio je da se pronađe pravi balans između starog i modernog i da se ujedno očuva integritet prostora. Ideja je bila da se ova zamisao postigne kroz izbegavanje veće upotrebe svetlih tonova i da se različiti arhitektonski elementi ujedine kroz monohromatsku paletu.
Prvi korak bilo je adekvatno izlaganje i obnova zidova od cigle, plafona i metalnih greda. Drveni elementi su očišćeni i prelakirani, tako da je očuvano oko 90% originalnih greda.
Kako bi se obnovile postojeće nepravilnosti, poput nedostataka opeke u zidovima, tragalo se za materijalom koji je napravljen u sličnom periodu kao i zgrada. Rešenje je pronađeno u novoj opeci koja je otučena u čeličnim bubnjevima čime je dobila starinski izgled.
U prizemlju su pored dnevnog boravka, koji sadrži i filmski projektor, smešteni i kuhinja sa trpezarijom, hodnik i ostava.
U prizemlju je stvorena topla i prirodna atmosfera, gde autentični elementi, poput kamina u uglu dnevnog boravka, daju poseban karakter prostoru.
Drugi nivo kao kontra prvom
Beli zidni paneli na prizemlju uglavnom su korišćeni kako bi prostor postao svetliji i sjedinjeni, dok su na drugom nivou u funkciji ispravljanja nagnutih zidova.
Drugi nivo je oblikovan bez primene istorijskih karakteristika nekadašnjeg prostora, ali monohromatska paleta čini da se on prirodno nastavlja na prizemlje stana.
Jedan od zanimljivijih i složenijih elemenata bio je kupatilski boks, izveden kao potpuno zvučno izolovana jedinica u okviru prizemlja, koje je inače organizovano u otvorenom konceptu.
Sprat je podeljen na tri zone. U jednoj je glavna spavaća soba sa kupatilom, u drugoj je kancelarija sa velikim garderoberom, dok je u trećoj zoni gostinska spavaća soba, kupatilo i vešeraj.
U enterijeru je korišćena luksuzna rasveta Artemide i Luceplan koja enterijeru nije dala samo toplo svetlo već ga je i dekorisala na savremen način. Proizvode ove dve italijanske kompanije mogu se kupiti u salonu LSDesign.
Grafičke podloge:
Foto: Yevhenii Avramenko, Andrey Bezuglov, izvor: piše ArchDaily
Kad ste već ovde…













