Malo potkrovlje u Moskvi s drvetom u lebdećem atrijumu
Posred sobe postavljen je kubus koji prostoru daje više različitih funkcionalnih zona.
Rad ruskog dizajnerskog dvojca pod imenom Ruetemple nam je više nego poznat. Od stana sa drvenom strukturom u centru prostorije preko apartmana s modularnim nameštajem, pa sve do stana koji je ujedno i igraonica, njihovi enterijeri su uvek atraktivni za posmatranje a verujemo i za život. Ni njihov novi projekat u Moskvi nije ništa manje interesantan!
Ideja je bila da se u jednom malom prostoru napravi više zona koje će omogućiti da se on koristi i kao dnevni boravak, i kao spavaća soba ali i kao deo za osamu.
Suština ovog sjajnog potkrovlja ogleda se u centralno postavljenom volumenu koji je zapravo multifunkcionalni komad nameštaja sa brojnim neočekivanim rešenjima. Ideja je bila da se u jednom malom prostoru od 50 kvadrata napravi više zona koje će omogućiti da se on koristi i kao dnevni boravak, i kao spavaća soba ali i kao deo za osamu. I sve to uz jedno drvo koje raste usred atrijuma!
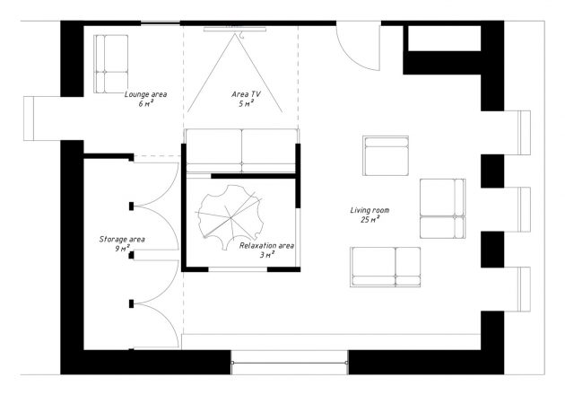
Kako su za ArchDaily rekle arhitekte Aleksander Kudimov i Daria Butahina, atrijum u vidu bele kocke od gips-kartonskih ploča osmiljen je tako da, usred prostora, deli sobu u pet zona: prostor za hobi, prostor za gledanje TV-a, prostor za presvlačenje, prostor za osamljivanje i prostor za relaksaciju.
Ispod kubusa smešteni su pomerljivi dušeci, a unutar njega našlo se mesta i za drvo koje svetlo dobija preko krovnih prozora. To je pravo mesto za osamu i relaksaciju! S druge strane, razmeštanjem dušeka po podu mogu se kreirati različite zone za društvene igre, razgovor ili za kaficu ispod drveta.
Biljka posađena u saksiju ispod atrijuma dobija dovoljnu količinu prirodnog svetla preko krovnih prozora.
Različitom postavljanjem dušeka dobijaju se različite organizacije prostora.
Dušeci se mogu organizovati i tako da budu garnitura sa trosedom i dve fotelje.
Crteži potkrovlja

Pogledajte i kako izgleda ova kuća u Topoli koja u dnevnom boravku ima drvo.
Dizajn i foto: Ruetemple












