Za beg iz grada: Vikendica kraj Skoplja u estetskoj interakciji s okruženjem
Sidanski kamen, crno-beli abrib, drvena fasada od jasena i kestena i beli talasasti lim čine ovu kuću pravim arhitektonskim draguljem.
CHP House je samostojeća, porodična kuća od 243 kvadrata, smeštena na južnoj strani podnožja planine Vodno u Severnoj Makedoniji, a nastala je kao plod saradnje dva skopska studija – Volart i Attika arhitekti.
Sa adresom u selu Dolno Sonje, udaljenom pola sata vožnje od centra grada Skoplja, projektovana je da služi korisnicima kao vikendica, ali i kao sadržaj nadohvat ruke odmah nakon obaveza tokom radne nedelje.
Pročitajte još na Gradnja.rs:
- Vikendica koja spaja život sa zemljom i spavanje sa nebom
- Vikendica na Kosmaju sa dnevnim boravkom u prirodi

Koncept arhitekture kreće se između „prigradske kuće“ i ideje koja bolje funkcioniše u međunarodnim terminima – „country house“.
Kako saznajemo od skopskih arhitekata, za kompletnu izgradnju ove porodične kuće, na predstavljenom nivou, od parcele bez struje i vode bilo je potrebno tri i po godine.
Koncept arhitekture zgrade se kreće između „prigradske kuće“ i ideje koja, po rečima autora, bolje funkcioniše u međunarodnim terminima – „country house“.
Inače, estetika i performanse kuće u interakciji su sa okruženjem u koje je integrisana, kao i etika gradnje u 21. veku, odnosno upotreba savremenih materijala, lokalnih materijala i savremene tehnologije.

Programska podela na pozadinu i lice
Prema rečima arhitekata iz Skoplja, geneza zapremine i arhitekture reaguje na okruženje u kojem je kuća smeštena.
Prizemni blok, koji se proteže skoro celom širinom parcele, čini programsku podelu – pozadinu (parking, prilaz, ulaz) i lice (dvorište, terasa, bazen).
Lice je orijentisano na jugoistok sa panoramskim pogledom na najviši planinski masiv u centralnom delu Severne Makedonije, odnosno Jakupicu, Golešnicu, Karadžicu.

Volumetrijski pod je trouglasta prizma, koja savršeno referencira planinske vrhove sa kojima je vizuelno u interakciji.
Pod se razvija upravno na osu zapremine tla. Izbacujući ga iz gabarita prizemlja, on formira neophodne natkrivene spoljne prostore programa, odnosno uvučen ulaz prema pozadini i natkrivenu terasu prema licu.
Volumetrijski pod je trouglasta prizma, koja se samo probija kroz tlo i horizontalnu notu zgrade i savršeno referencira planinske vrhove sa kojima je vizuelno u interakciji.
Pozadina objekta je okrenuta ka severozapadu, prema planini Vodno.

Uokvirivanje najlepšeg pogleda
Kuća programski sadrži pristup automobilima, parking za šest vozila, kao i mali košarkaški teren. Omogućena je direktna komunikacija između pozadine i lica programa, uz prolaz između dnevnih sadržaja kuće i mašinske sobe.
CP House uokviruje najlepši pogled sa lokacije i dovodi pešaka-gosta direktno u doživljaj dvorišta i bazena.

Multifuncionalni prostori
U prizemlju se nalaze i ulazni hol, ostava, trpezarija, dnevni boravak, kuhinja (u direktnoj vezi sa trpezarijom i terasom), komunalije, gostinski toalet (sa pristupom iz prolaza, služi kao mokra prostorija prilikom korišćenja bazena), kao i jedna spavaća soba sa sopstvenim kupatilom.
Kroz prolaz je omogućena komunikacija sa mašinskom sobom objekta, koja sadrži sve programirane mehaničke elemente za opsluživanje kuće toplom vodom, grejanje i prečišćenu vodu za piće.
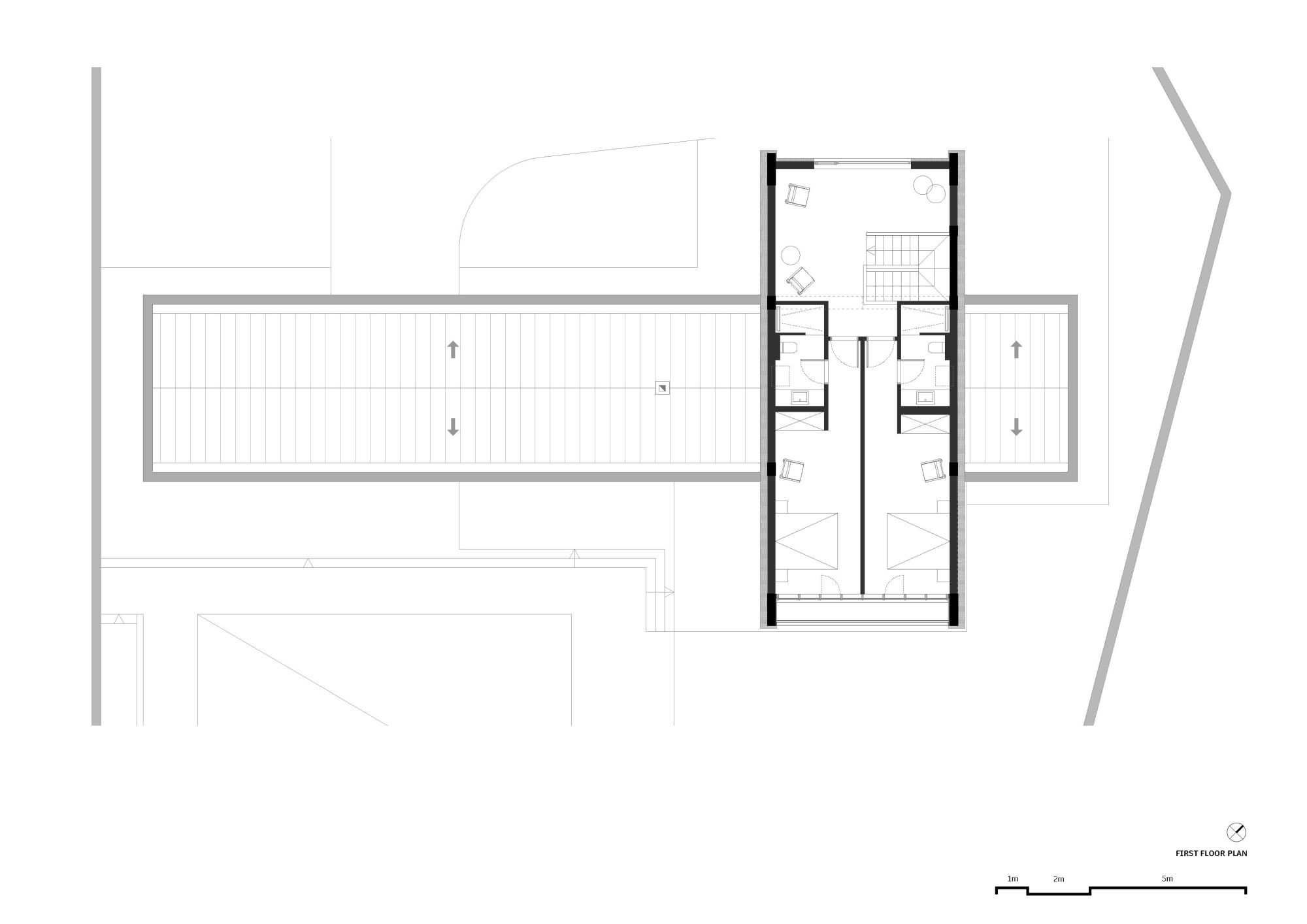
Na prvom spratu dolazite u slobodan multifunkcionalni predprostor koji vodi do dve identične spavaće sobe, sa odvojenim kupatilima, međusobno preslikanim kao u ogledalu.
Estetika fasade kao odgovor na program i koncept
Konstruktivno, kuća je izrađena od armirano-betonskih elemenata (pojedinačni temelji, ploče, stubovi i grede). Estetika fasade zgrade kao i materijali u unutrašnjosti su odgovor na program i koncept zgrade.
Sidanski kamen (lokalni kamenolom Govrlevo), crno-beli abrib, drvena fasada od jasena i kestena i beli talasasti lim čine ovu kuću vizuelno atraktivnom i uklopljenom s okruženjem.

Sidanski kamen, crno-beli abrib, drvena fasada od jasena i kestena i beli talasasti lim čine ovu kuću vizuelno atraktivnom.
Celokupna spoljašnja popločana površina je obrađena svetlim granitnim pločicama, dok su na prilazu i parkingu primenjeni kameni blokovi (kaldrma) lučnim načinom slaganja.
Podovi unutar zgrade variraju od betonskih podova u dnevnim prostorijama, do troslojnog hrastovog parketa u spavaćim sobama i keramičkih pločica u kupatilima.

Kamen sa fasade i u enterijeru
Karakterističan kamen sa fasade ulazi u unutrašnjost kuće kroz centralno ognjište – kamin. Takođe, kamen igra i konstruktivnu ulogu u nošenju krova.
Personalizovani stolovi i komode od masiva bukve, vrata od gvozdenih profila i staklenih pregrada, drvena lamperija i ostava obložena prirodnim furnirom – hrastom, upotpunjuju estetiku na nivou dizajna.
Bogatstvo materijala, multifunkcionalnost prostora i pažljivo promišljanje svakog detalja čine ovu kuću pravim arhitektonskim biserom.
Grafički prilozi







Foto-galerija













Faktografija
CHP House
Volart, Attika arhitekti
Simon Papeš, Nikola Tomevski, Bojan Tasevski
2018.
2023.
Volart
1054 Dolno Sonje, Republika Severna Makedonija
Porodično stanovanje u privatnoj kući
154 m2
243 m2
1.600 m2
Vase Petrovski

Da li moze ovde da se nabavi kamen iz Govrleva? Lep projekat i izvodjenje.