Moderna imitacija seoskog domaćinstva u stanu od 60 kvadrata
Zakrivljene forme i prisustvo lukova čine da ovaj kombinovani radni i životni studio dobije na fluidnosti, odnosno da se stvori topla atmosfera poput one na selu.
U prethodnoj organizaciji stana radna soba bila je u potpunosti izolovana od ostatka stana, a pritom nije imala dnevne svetlosti. S obzirom na to da je klijent IT honorarac, i radi od kuće, smetalo mu je što je u prethodnoj organizaciji stana bio dosta izolovan od ostatka prostora pa samim tim i od svojih ukućana. Imajući ovo u vidu, arhitektonski studio Sim-Plex, koji potpisuje projekat enterijera, klijentu je svojim projektom obećao „fluidnost, otvorenost, osvetljenost i urednost“ piše ArchDaily.
Kroz koncept lukova i zaobljenih formi stvoren je svetao, fluidan i poetičan dom.
Zaobljene forme bi trebalo da obezbede prostoru fluidnost i glatkoću, čineći ambijent između radnog prostora i dnevnog boravka harmoničnim.
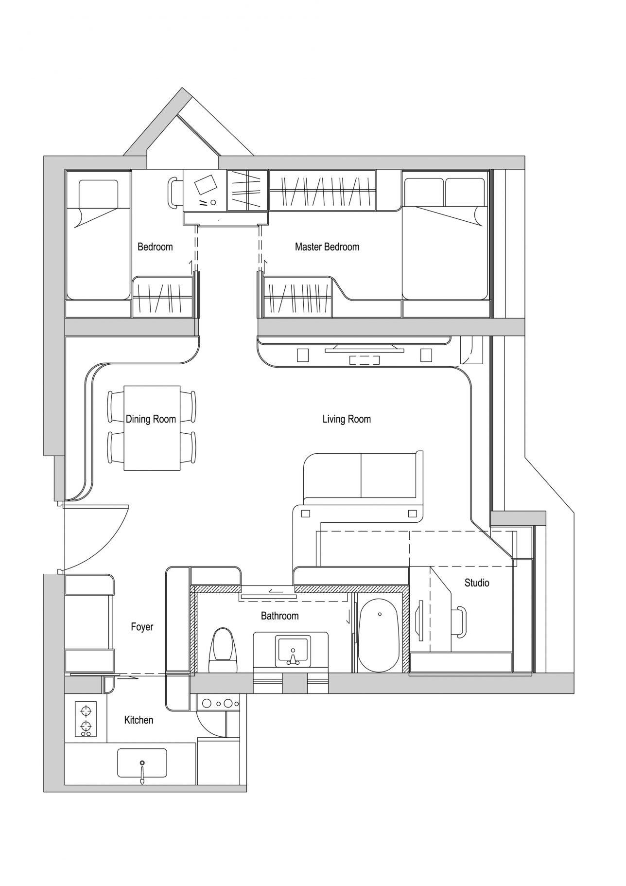
Pogledajte novoprojektovanu osnovu stana:

Većina postojećih zidova od opeke je srušena tako da novi usvojeni otvoreni koncept omogućava veći prodor dnevnog osvetljenja.
Pritom, posebna pažnja posvećena je rasveti koja naglašava pojedine elemente u enterijeru.

Kućica, potok i senke
„Selo je grupisano u formi naselja u kojem žive ljudi. U našem umu imamo jednostavnu i poetičnu sliku sela sa nekoliko kuća, okruženih malim potokom, a pun mesec na nebu ih obasjava, stvarajući senke koje izgledaju kao da drveće pleše.“, objašnjavaju svoju viziju iz studia Sim-Plex.
Nameštaj zaobljene forme
Veliki barski pult postavljen je u centralnom delu stana i vešto daje dovoljnu količinu privatnosti radnom prostoru, iz kog ujedno i dalje postoji omogućen pogled na televizor i dnevni boravak.
Složen sistem komoda i ormara zakrivljene forme suptilno i vešto skriva sve potrebne stvari i sitnice, koje porodica u stanu ovakve kvadrature često veoma teško može uredno da skloni.
Bakar i mermer
Bakarnim detaljima kao i mermernim pločama, poput one koja predstavlja klizna vrata kupatila, dat je karakter prostoru.
Kroz koncept lukova, karakterističan za sela u blizini Hong Konga, stvoren je svetao, fluidan i poetičan dom, a što je najbitnije omogućena je bolja komunikacija među članovima porodice.
Foto: Patrick Lam










